夜间模式
  • 73644阅读
  • 26回复

[昆山要闻]刚批了!昆山4区8镇全新规划 [复制链接]

上一主题 下一主题
发帖
2890
昆币
96164 枚
只看楼主 使用道具 电梯直达
楼主  发表于: 2024-12-19 , 来自:江苏省0==

大发展!

刚刚!

昆山官方最新文件发布

包含4区8镇

总面积931.5平方公里

全新规划!


刚批了!昆山全新商业规划


近日

《昆山市商业网点布局规划(2035)》

正式得到批复





规划项目名称:《昆山市商业网点布局规划(2035)》

批复时间:2024年12月2日(昆政复〔2024〕92号批复文件)




图片


此次批复规划范围

针对的是昆山市全域

总面积931.5平方公里

也就是931500000平方米

包含四区八镇





本次规划范围为昆山市全域,总面积931.5平方公里,包含四区(昆山经济技术开发区、昆山高新技术产业开发区、昆山花桥经济开发区、昆山旅游度假区)、八镇(张浦镇、周市镇、陆家镇、巴城镇、千灯镇、淀山湖镇、周庄镇、锦溪镇)。





规划期限与

《昆山市国土空间总体规划(2021-2035年)》

保持一致

规划期限至2035年

也就是说

这是一个可以影响昆山

未来十几年的规划


规划对象为




依托商业空间开展的各类商业活动(包括零售、餐饮、居民服务等商业功能业态)、一刻钟便民生活圈、特色商业街区、商品交易市场、商贸物流园区等多方面。





昆山全新商业网点布局规划

将以“发展+特色+便民”为切入点

优化昆山商业消费空间等级体系

将昆山市建设成

“江南潮、昆韵味、烟火气”共融共生的

昆嘉一体“临沪商业桥头堡”、

活力四射“县域商业样板区”、

商旅融合“江南昆式宜居城”


构建四级商业消费中心体系


此规划在全市构建

四级商业消费中心体系:
包括1个城市商业中心

3个副市级商业中心

14个乡镇(片区)级商贸中心

……

具体网点如下

👇




构建“1+3+14+N”四级商业消费中心体系:


1个城市商业中心:青阳港商圈和人民路—亭林路商圈集聚形成


3个副市级商业中心:位于昆山开发区、昆山高新区、旅游度假区


14个乡镇(片区)级商贸中心:位于乡镇中心、重要地段


以及为满足全市居民日常消费活动的N个一刻钟便民生活圈




图片


值得注意的是

唯一规划的1个城市商业中心

由青阳港商圈和人民路—亭林路商圈

集聚形成!

两大商圈强强联合

前景不可限量!


近期

青阳港城市客厅也传来新消息

片区内的30多年大厂嘉宇服饰有限公司

马上就要拆除

随着拆除工作有序进行

青阳港城市客厅的规划落地又进一步!


图片

图片青阳港城市客厅效果图


另外

人民路—亭林路商圈

也将得到升级!

重新焕发新的活力和生机

就在今年8月

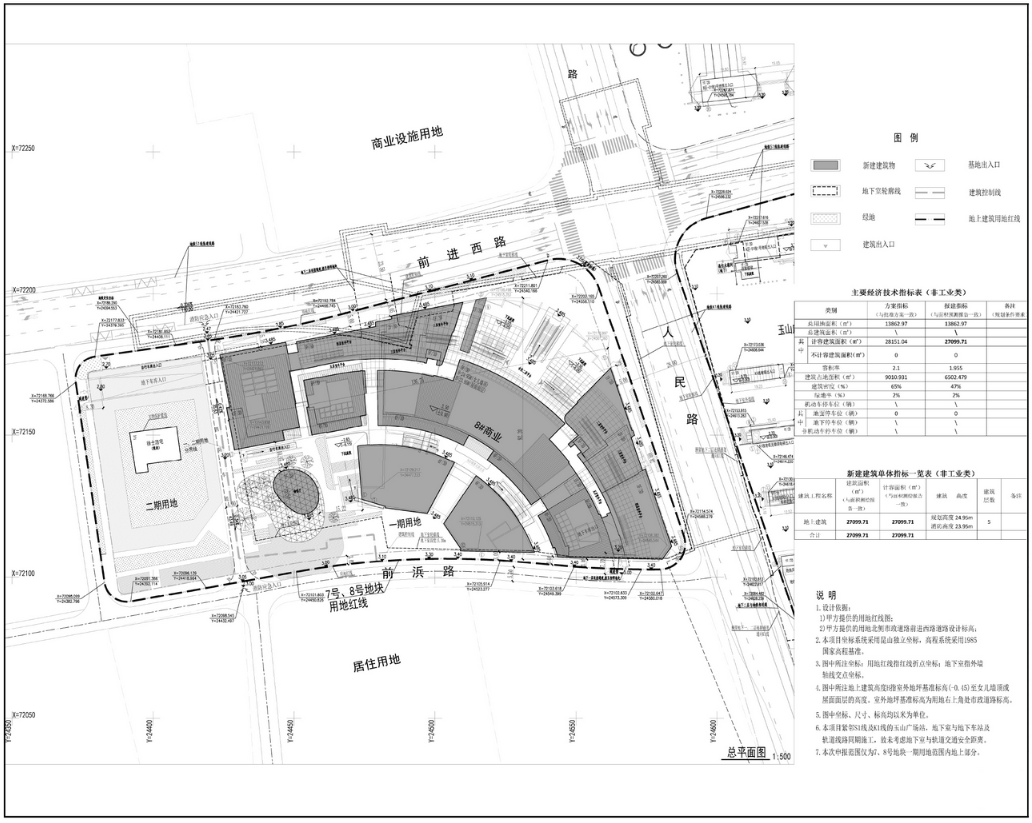
中国昆山上公布了

玉山广场站TOD站城一体化开发项目

7+8号地块地上工程

建设规模:27099.71平方米

土地用途:商业用地


图片

图片


再结合如今刚批复的这份规划

将带动昆山人民路、亭林路

乃至老城区全域活力

为城市细胞注入新希望!


图片


规划特色商业街区23处


将充分利用昆山独特的

地域文化、昆曲文化、美食文化等资源载体

赋能昆山商业街区的空间布局和网点建设

全市规划特色商业街区23处





全市规划特色商业街区23处,打造“新江南闲雅风情类街区”“新江南潮酷活力类街区”“新江南古镇文化类街区”“新江南美食文化类街区”四类特色商业街区品牌。




图片


规划商品交易市场37个


文件中提到

中环内、外的大型商品交易市场

都将进行重整规划

对于已不适宜发展的市场

将引导外迁或腾退





综合各方面因素,采取“控制、整合、迁建”的方式进行引导。全市规划商品交易市场37个,中环内原则上不再新建大型商品交易市场,对于现状已不适宜在中环内发展的市场,逐步引导外迁或腾退;中环外鼓励撤销或合并效益欠佳、发展前景不良的市场,促进市场业态转型和布局优化。




图片


规划商贸物流园区4个





推动区域商贸物流一体化发展,构建城乡高效配送体系,推进商贸物流标准化建设。规划商贸物流园区4个,打造三级商贸物流网络体系,保障空间合理供给。




图片


服务半径约1000米的
一刻钟便民生活圈


未来昆山将大力建设

“宜居、宜养、宜业”的“一刻钟便民生活圈”

将党群服务、为老服务、儿童服务等功能

进行整合、融合和提升

满足周边小伙伴的生活基本需求!





以社区居民为服务对象,服务半径约1000米、服务人口3万-5万人,满足居民日常生活基本消费和品质消费。其中社区商业中心规划形成集聚式、街坊式、分布式三种空间类型




图片


01
集聚式


通过一个大型零售商业网点
或多个小型商业网点
集聚形成社区商业中心
周边沿街商业作为补充


图片


02
街坊式


以沿街商业作为主导的社区商业载体
通常在集聚式条件不足地段
依托沿街商业进行配置


图片

03
分布式

受客观条件限制
单处集聚式或街坊式商业设施
无法覆盖整个社区范围
利用分散的社区商业设施
建设便民网点


图片


近年来

昆山不断优化营商环境

加大基础设施建设力度

吸引了众多企业投资

为商业发展注入了新的活力

图片

昆山未来全新商业蓝图呼之欲出

生活将更便利

幸福感UP UP UP!

请放到圈子

告诉更多人这个好消息


本帖评分记录
金金必辉煌 昆币 +1 -来自昆山论坛APP 2024-12-22
昆山是我家乡 昆币 +1 -来自昆山论坛APP 2024-12-21
白马寺 昆币 +1 -来自昆山论坛APP 2024-12-20
tsenlll 昆币 +1 -来自昆山论坛APP 2024-12-20
wujun101 昆币 +1 -来自昆山论坛APP 2024-12-19
初婚有刺 昆币 +1 -来自昆山论坛APP 2024-12-19
helubo027 昆币 +1 -来自昆山论坛APP 2024-12-19
幽若剑心 昆币 +1 -来自昆山论坛APP 2024-12-19
8条评分昆币+8
爆料有奖!关注昆山论坛抖音号,抖音搜索“昆山论坛”,或搜索抖音号:ksbbs
 
帅哥在线123abc交通
级别: 昆山名人
发帖
70615
昆币
109245 枚
沙发  发表于: 2024-12-19 , 来自:江苏省0==
路过看看
爆料有奖!关注昆山论坛抖音号,抖音搜索“昆山论坛”,或搜索抖音号:ksbbs
 
离线缝缝补补
发帖
7122
昆币
1142 枚
板凳  发表于: 2024-12-19 , 来自:江苏省0==
看地图,高新区的商业中心应该在森林公园东侧格蒂名门那里
爆料有奖!关注昆山论坛抖音号,抖音搜索“昆山论坛”,或搜索抖音号:ksbbs
 
离线萧煜
发帖
532
昆币
736 枚
地板  发表于: 2024-12-19 , 来自:江苏省0==
    
爆料有奖!关注昆山论坛抖音号,抖音搜索“昆山论坛”,或搜索抖音号:ksbbs
 
离线蓝石

发帖
5139
昆币
481 枚
4楼 发表于: 2024-12-19 , 来自:江苏省0==
蛮好的
爆料有奖!关注昆山论坛抖音号,抖音搜索“昆山论坛”,或搜索抖音号:ksbbs
 
发帖
1966
昆币
2956 枚
5楼 发表于: 2024-12-19 , 来自:江苏省0==
            
爆料有奖!关注昆山论坛抖音号,抖音搜索“昆山论坛”,或搜索抖音号:ksbbs
 
离线小芹菜
发帖
1016
昆币
1622 枚
6楼 发表于: 2024-12-19 , 来自:江苏省0==
一脸懵逼
爆料有奖!关注昆山论坛抖音号,抖音搜索“昆山论坛”,或搜索抖音号:ksbbs
 
帅哥离线新时代养蜂人
发帖
10293
昆币
12222 枚
7楼 发表于: 2024-12-19 , 来自:江苏省0==
说什么也是陆家没商业!
爆料有奖!关注昆山论坛抖音号,抖音搜索“昆山论坛”,或搜索抖音号:ksbbs
 
帅哥离线25xiaoli
发帖
8725
昆币
18679 枚
8楼 发表于: 2024-12-19 , 来自:江苏省0==
  
爆料有奖!关注昆山论坛抖音号,抖音搜索“昆山论坛”,或搜索抖音号:ksbbs
 
离线zhuhenry
发帖
519
昆币
889 枚
9楼 发表于: 2024-12-19 , 来自:上海市0==
这是要摊大饼了?人就那多人,商业中心越多越半死不活!人民路亭林路还能救活?再救也回不到零几年!
本帖评分记录
张浦群众 昆币 +1 -来自昆山论坛APP 2024-12-22
别样年华 昆币 +1 -来自昆山论坛APP 2024-12-22
pzh780 昆币 +1 -来自昆山论坛APP 2024-12-20
凯文宇洋 昆币 +1 -来自昆山论坛APP 2024-12-19
4条评分昆币+4
爆料有奖!关注昆山论坛抖音号,抖音搜索“昆山论坛”,或搜索抖音号:ksbbs
 
快速回复
限76 字节
如果您提交过一次失败了,可以用”恢复数据”来恢复帖子内容
 
上一个 下一个