夜间模式
  • 20628阅读
  • 11回复

[城建规划]《昆山市C01规划编制单元控制性详细规划局部调整》征求利害关系人意见的公告 [复制链接]

上一主题 下一主题
帅哥离线lamarodom
级别: 昆山名人

发帖
178963
昆币
433561 枚
只看楼主 使用道具 电梯直达
楼主  发表于: 2024-02-02 , 来自:江苏省0==


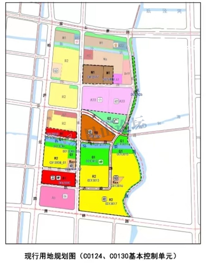
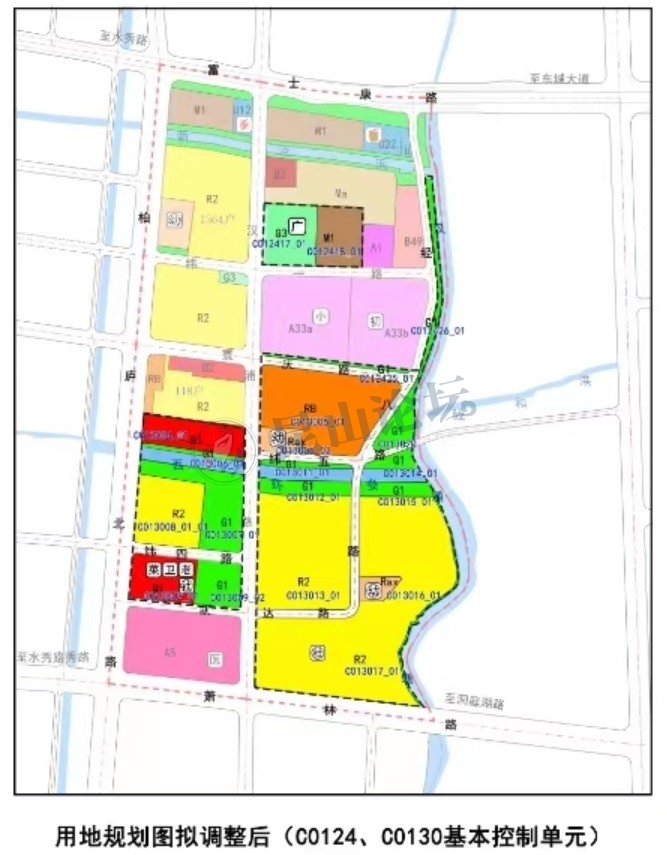
《昆山市C01规划编制单元控制性详细规划局部调整(C0124、C0130基本控制单元)》征求利害关系人意见的公告

本帖评分记录
樱桃小包子 昆币 +1 -来自昆山论坛APP 2024-02-02
wujun101 昆币 +1 -来自昆山论坛APP 2024-02-02
123abc交通 昆币 +1 -来自昆山论坛APP 2024-02-02
潘帅帅 昆币 +1 -来自昆山论坛APP 2024-02-02
4条评分昆币+4
爆料有奖!关注昆山论坛抖音号,抖音搜索“昆山论坛”,或搜索抖音号:ksbbs
 
帅哥离线fred1688
发帖
8557
昆币
15951 枚
沙发  发表于: 2024-02-02 , 来自:江苏省0==
鼎新电子那个块地方还修医院吗?粉红色地块。图例好像没有标识出来。
爆料有奖!关注昆山论坛抖音号,抖音搜索“昆山论坛”,或搜索抖音号:ksbbs
 
帅哥离线lamarodom
级别: 昆山名人

发帖
178963
昆币
433561 枚
板凳  发表于: 2024-02-02 , 来自:江苏省0==
回 fred1688 的帖子
fred1688:鼎新电子那个块地方还修医院吗?粉红色地块。图例好像没有标识出来。 (2024-02-02 10:22)

这是调整公示,没调整的那些不变,那里确定新三院的
本帖评分记录
九点四十五 昆币 +1 -来自昆山论坛APP 2024-02-02
1条评分昆币+1
爆料有奖!关注昆山论坛抖音号,抖音搜索“昆山论坛”,或搜索抖音号:ksbbs
 
离线seamanclp
级别: 昆山新人
发帖
339
昆币
711 枚
地板  发表于: 2024-02-02 , 来自:江苏省0==
每年问一次A01
本帖评分记录
中飞 昆币 +1 -来自昆山论坛APP 2024-02-02
alice0709 昆币 +1 -来自昆山论坛APP 2024-02-02
2条评分昆币+2
爆料有奖!关注昆山论坛抖音号,抖音搜索“昆山论坛”,或搜索抖音号:ksbbs
 
离线davech
级别: 昆山新人
发帖
288
昆币
610 枚
4楼 发表于: 2024-02-02 , 来自:江苏省0==
这个区域内的厂除了研华科技研发中心其他全部要拆掉了
爆料有奖!关注昆山论坛抖音号,抖音搜索“昆山论坛”,或搜索抖音号:ksbbs
 
离线嘎三胡
发帖
1351
昆币
2355 枚
5楼 发表于: 2024-02-02 , 来自:江苏省0==
回 seamanclp 的帖子
seamanclp:每年问一次A01[表情] [表情] (2024-02-02 11:11)

叫太祖催一下吧,别让大家失望!
本帖评分记录
中飞 昆币 +1 -来自昆山论坛APP 2024-02-02
1条评分昆币+1
爆料有奖!关注昆山论坛抖音号,抖音搜索“昆山论坛”,或搜索抖音号:ksbbs
 
离线davech
级别: 昆山新人
发帖
288
昆币
610 枚
6楼 发表于: 2024-02-02 , 来自:江苏省0==
鼎鑫和圆裕电子不知道什么时候搬完,这个区域动工早着呢
爆料有奖!关注昆山论坛抖音号,抖音搜索“昆山论坛”,或搜索抖音号:ksbbs
 
发帖
1190
昆币
2046 枚
7楼 发表于: 2024-02-02 , 来自:江苏省0==
回 seamanclp 的帖子
seamanclp:每年问一次A01[表情] [表情] (2024-02-02 11:11)

每年问也没用,就是不出来,难产。
本帖评分记录
中飞 昆币 +1 -来自昆山论坛APP 2024-02-02
1条评分昆币+1
爆料有奖!关注昆山论坛抖音号,抖音搜索“昆山论坛”,或搜索抖音号:ksbbs
 
离线5sqing
级别: 昆山新人
发帖
307
昆币
749 枚
8楼 发表于: 2024-02-02 , 来自:江苏省0==
就不能弄个小公园吗,都拿去卖地了
爆料有奖!关注昆山论坛抖音号,抖音搜索“昆山论坛”,或搜索抖音号:ksbbs
 
离线fllfyj
发帖
1150
昆币
103 枚
9楼 发表于: 2024-02-02 , 来自:上海市0==
A01:昆山一大未解之谜
本帖评分记录
中飞 昆币 +1 -来自昆山论坛APP 2024-02-02
1条评分昆币+1
爆料有奖!关注昆山论坛抖音号,抖音搜索“昆山论坛”,或搜索抖音号:ksbbs
 
快速回复
限76 字节
如果您提交过一次失败了,可以用”恢复数据”来恢复帖子内容
 
上一个 下一个