|
|
楼主 发表于: 2021-03-30
, 来自:江苏省0==
家装日记
| 小区:
| 北城新境 |
| 套内面积: |
113 (平米) |
| 预算: |
25万 万 |
| 开工日期: |
2021-03-28 |
| 装修风格: |
简约 |
| 装修方式: |
半包 |
| 装修公司: |
印象水仙设计公司 |
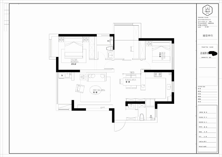
装修前:我在想,我到底要什么? 在决定装修的时候,我们要做的第一件事就是扒啦自己的小金库,经济基础决定上层建筑,小金库的饱满度决定我到底要折腾成什么样子,哈哈,有道理吧。我反正是这么觉着。 在确定自己的预算之后,我就开始思考第二个问题:我到底要装什么样的风格? 我期望的两种风格:北欧风和现代简约风,都是比较简单的,或者说,硬装偏简约一些吧,以可以提升生活品质的软装为主,好处呢,就是以后翻新的时候,不用有太复杂的砸墙之类的操作,预算基本可控,经过对比,我们还是pick了可塑性更高的现代风格,一是复杂。二是比较贵,哈哈,目前设计效果还在制作中。 关于装饰公司的选择,我们一开始就想好了,就找2-3家装修公司实地了解下,不想找太多,费时又花力气。现在外面的装修公司其实都挺透明了,价格相差都不太大,主要是售后跟设计师、项目经理这些靠谱就事半功倍;还有我跟我老公有个共同的朋友,他是整木定制设计师,也算这一行业的吧,他比较懂装修,给我们省去了很多跑腿的时间,他们公司也跟好几个装饰公司合作的,不过他诚心推荐给我的是印象水仙设计,后来我跟我老公就去了解了,然后就有了现在的进展,嘻嘻。【楼 盘】等了两年,刚拿房哦,北城新境5号楼,邻居们看过来 【户 型】两室,两房改三房,所以我们家需要好好设计改造一下【套内面积】113平多点不到114【装修公司】印象水仙设计,论坛也关注过,我朋友做【装修风格】舒适简约风【承包方式】全托设计+半包【装修总预算】25W左右,能少则少,没钱,哈哈、【半包周期】90天【设 计 师】印象水仙朱朱 还好这个户型格局还阔以,就是把,一房朝南我已经满足了,做人要知道知足确实会活的开心一些啦,比如有房总比没房的好,既然有房了,即使钱不多,我会尽自己所能装修出自己最满意的效果啦。 设计效果图在完善中,过两天发布哦。 前两天开工的,大吉大利呀,合作愉快。


哈哈,小伙蛮帅哦。

先写到这里。
|