夜间模式
  • 10538阅读
  • 2回复

[装修]149㎡摩登空间 | 精致有度,浪漫刚好 [复制链接]

上一主题 下一主题
帅哥离线印象水仙设计
级别: 家装商家
发帖
11356
昆币
19441 枚
只看楼主 使用道具 电梯直达
楼主  发表于: 2022-02-20 , 来自:江苏省0==


Nov.2022 / 蓝鸢

149㎡摩登空间
四室两厅两卫
设计单位:印象水仙
施工单位:印象水仙

“色彩,家居的解说者”。每一抹恰到好处的色彩表达,都是点亮空间的钥匙,更是生活里耀眼的记忆。可以借由一个暖调开启生活的热情,也可以借由一个冷调而陷入沉思冥想。


本案设计师在充分了解业主生活需求的基础上,将时尚摩登的美学概念与现代轻奢的高级质感相结合,极力为三口之家还原一个渗透着生活气息与艺术美感的生活场域。


原始结构图




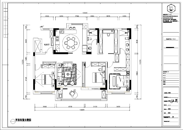
平面布置图




01 LOBBY「玄关」



打开家门,时光的发条仿佛被按下慢键,复古的灰色与深邃的墨蓝自玄关而始,将优雅精致的氛围渐入到平和温馨的生活节奏里。


一件件精巧的摆件与家具成为业主品味和个性的缩影,美好,从归家这一刻开启。

02 LIVING ROOM「客厅」


油画般质感的沙发背景,大面积带有纹理的灰色艺术漆拼接生而怀旧的石膏线条,让空间顿生一种穿越时光的美与迷离。




轻奢复古的蓝色丝绒布艺拉扣沙发,呈现出优雅而灵动的空间格调,两侧搭配一张米白色皮质单椅和两张千鸟格布艺单椅,将空间慵懒的气氛调动起来。


一盏造型不拘一格的落地灯,在沙发一旁缓缓亮起,单侧金属吊灯的烘托构成了一个小小的温柔角落,三寸暖光轻抚过墙面,明暗之间,理想生活静静上演。




将目光落于电视背景上,岩板爵士白的背景墙与两侧定制书柜拼接,下方留有黑色定制柜作为收纳,也可视为地台,凹凸起伏间,灯带亮起将精致感娓娓道来。


造型别致的茶几、地毯、灯饰、单人沙发在空间形成一条流畅而优雅的动线,把生活的舒适安逸完美勾勒了出来。在这里,生活里的每一个时刻都可以成为艺术的延伸。




热爱生活的人,从不辜负每一寸空间,而有趣的软装能给空间换张表情。




03 DINING ROOM & KITCHEN「餐厨」



就餐区紧邻开放式厨房,让厨食的乐趣在同一个功能区得到充分彰显。整洁的配色给人以一目了然的洁净,分隔不同的收纳柜,充分利用功能空间。



高级干练的灰色,往往自带硬冷的质感,配上大理石台面圆桌及六张蓝白拼色的餐椅,在餐厨空间演绎出一番别样的生活仪式感。




04 MASTER BEDROOM「主卧」




始于舒适,而不止于舒适,步入私密的卧室空间,纯粹的白色与光影交织,一片缱绻舒展的画面拨动着悠悠心弦。


莫兰迪色调的壁画被定格在床头上,而与之床头背景颜色相近的米色石膏线条的加入,予以墙面又一种复古俏皮的个性,斑马花色的布艺窗帘更是加分项,几种看似不和谐的美感在这里拉扯相拥,理想之歌与现实之舞悄然在眼前上演了一场华丽的表演。






05 KIDS ROOM「儿童房」



青春明亮的女儿房,白色空间是为女儿成长留出更多的思考空间,局部的粉色是对少女心的温柔呵护,加入复古的酒红色碰撞,让整个空间充满了活力和生机;简约纯碎的设计语言,承载着父母对女儿深厚浓烈的爱与关怀。




06 SECOND BEDROOM「次卧」



次卧则是留给家里爸妈居住,床头背景延续了公共区域的灰色元素,沉稳大方,柔和的莫兰迪色系与灰色在此温柔相遇,素雅而富有治愈感的空间应运而生。




07 CLOAKROOM「衣帽间」




衣帽间两侧定制了两排衣柜,高级柜体融合了透明的黑色玻璃,简约、高级;一张酒红色绒布单椅,让整个空间拥有了物归其位的秩序感与简练明朗的现代时尚感,让衣帽间不再是简单的收纳储物空间,更是一处蕴藏品味的私人领地。




08 WASH ROOM「内卫」




高级的质感是最直白的语言,墙地面上选择个性的纹理瓷砖,双台盆设计的加入,将居者的生活质感一展无遗。




本帖评分记录
123abc交通 昆币 +1 -来自昆山论坛APP 2022-02-20
15895653721 昆币 +1 -来自昆山论坛APP 2022-02-20
2条评分昆币+2
爆料有奖!关注昆山论坛抖音号,抖音搜索“昆山论坛”,或搜索抖音号:ksbbs
 
离线可惜尔
级别: 昆山新人
发帖
198
昆币
290 枚
沙发  发表于: 2022-02-20 , 来自:江苏省0==
衣帽间好看
爆料有奖!关注昆山论坛抖音号,抖音搜索“昆山论坛”,或搜索抖音号:ksbbs
 
帅哥离线123abc交通
级别: 昆山名人
发帖
70615
昆币
109244 枚
板凳  发表于: 2022-02-20 , 来自:江苏省0==
不错,不错
爆料有奖!关注昆山论坛抖音号,抖音搜索“昆山论坛”,或搜索抖音号:ksbbs
 
快速回复
限76 字节
如果您提交过一次失败了,可以用”恢复数据”来恢复帖子内容
 
上一个 下一个