夜间模式
  • 427775阅读
  • 331回复

【薇薇家居全案软装】记录第二次装修的历程-[蛮好德装饰]-多层顶楼复式的变形记 [复制链接]

上一主题 下一主题
美女离线twelcember

发帖
12813
昆币
26392 枚
139楼 发表于: 2020-12-18 , 来自:江苏省0==
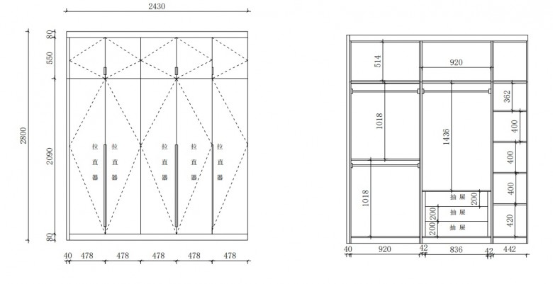
2楼的衣柜

次卧
爆料有奖!关注昆山论坛抖音号,抖音搜索“昆山论坛”,或搜索抖音号:ksbbs
 
美女离线twelcember

发帖
12813
昆币
26392 枚
140楼 发表于: 2020-12-18 , 来自:江苏省0==
2楼的衣柜

主卧

爆料有奖!关注昆山论坛抖音号,抖音搜索“昆山论坛”,或搜索抖音号:ksbbs
 
美女离线twelcember

发帖
12813
昆币
26392 枚
141楼 发表于: 2020-12-18 , 来自:江苏省0==
书房
爆料有奖!关注昆山论坛抖音号,抖音搜索“昆山论坛”,或搜索抖音号:ksbbs
 
美女离线twelcember

发帖
12813
昆币
26392 枚
142楼 发表于: 2020-12-18 , 来自:江苏省0==
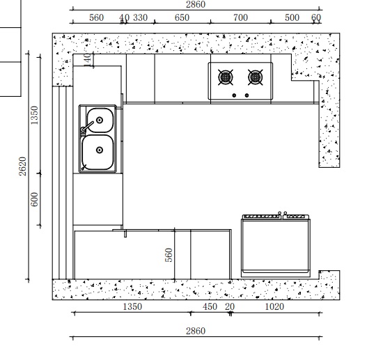
厨房平面图,贴砖前的尺寸,现在都稍微缩小了一点点




[ 此帖被twelcember在2020-12-18 14:19重新编辑 ]
爆料有奖!关注昆山论坛抖音号,抖音搜索“昆山论坛”,或搜索抖音号:ksbbs
 
美女离线twelcember

发帖
12813
昆币
26392 枚
143楼 发表于: 2020-12-18 , 来自:江苏省0==
1楼还少阳台柜,洗衣机吊柜,卫生间干区柜,
2楼还少通道的个1680宽,2800高的储物柜。

所有加起来估计超过40个平方,

橱柜在5.6米左右

满屏幕都是钱啊。。。
爆料有奖!关注昆山论坛抖音号,抖音搜索“昆山论坛”,或搜索抖音号:ksbbs
 
美女离线twelcember

发帖
12813
昆币
26392 枚
144楼 发表于: 2020-12-18 , 来自:江苏省0==
橱柜布局图,
水电改造之后没包管子少了很多,所以烟机灶具那里就好摆放多了。


[ 此帖被twelcember在2020-12-18 14:21重新编辑 ]
爆料有奖!关注昆山论坛抖音号,抖音搜索“昆山论坛”,或搜索抖音号:ksbbs
 
离线Edwin9903
发帖
1332
昆币
1485 枚
145楼 发表于: 2020-12-23 , 来自:江苏省0==
虽然有点复杂,但是也很期待
爆料有奖!关注昆山论坛抖音号,抖音搜索“昆山论坛”,或搜索抖音号:ksbbs
 
级别: 昆山新人
发帖
170
昆币
178 枚
146楼 发表于: 2020-12-24 , 来自:江苏省0==
楼主,你能不能多上点照片呀
爆料有奖!关注昆山论坛抖音号,抖音搜索“昆山论坛”,或搜索抖音号:ksbbs
 
美女离线twelcember

发帖
12813
昆币
26392 枚
147楼 发表于: 2020-12-28 , 来自:江苏省0==
木马小圆子:楼主,你能不能多上点照片呀[表情]  (2020-12-24 14:57) 

这照片还不多吗?
爆料有奖!关注昆山论坛抖音号,抖音搜索“昆山论坛”,或搜索抖音号:ksbbs
 
美女离线李灰灰
级别: 昆山新人
发帖
249
昆币
270 枚
148楼 发表于: 2020-12-29 , 来自:江苏省0==
房子的照片多一点,我喜欢复式,虽然现在没有复式不能参考,但是能过过瘾
本帖评分记录
twelcember 昆币 +1 我很赞同 2020-12-31
1条评分昆币+1
爆料有奖!关注昆山论坛抖音号,抖音搜索“昆山论坛”,或搜索抖音号:ksbbs
 
快速回复
限76 字节
批量上传需要先选择文件,再选择上传
 
上一个 下一个