夜间模式
  • 427747阅读
  • 331回复

【薇薇家居全案软装】记录第二次装修的历程-[蛮好德装饰]-多层顶楼复式的变形记 [复制链接]

上一主题 下一主题
离线西域姑娘
级别: 昆山新人
发帖
123
昆币
134 枚
129楼 发表于: 2020-12-17 , 来自:江苏省0==
大体还是可以的,帮楼主监督
爆料有奖!关注昆山论坛抖音号,抖音搜索“昆山论坛”,或搜索抖音号:ksbbs
 
美女离线twelcember

发帖
12813
昆币
26392 枚
130楼 发表于: 2020-12-18 , 来自:江苏省0==
楼梯间的砖也铺好了。
爆料有奖!关注昆山论坛抖音号,抖音搜索“昆山论坛”,或搜索抖音号:ksbbs
 
美女离线twelcember

发帖
12813
昆币
26392 枚
131楼 发表于: 2020-12-18 , 来自:江苏省0==
瓷砖马上就要结束了。
要准备做美缝,之后木工进场

下午要去下工地看下到底缺多少砖,周末去港龙仓库补货。
爆料有奖!关注昆山论坛抖音号,抖音搜索“昆山论坛”,或搜索抖音号:ksbbs
 
美女离线twelcember

发帖
12813
昆币
26392 枚
132楼 发表于: 2020-12-18 , 来自:江苏省0==
接下来要准备的东西有:

1. 卫生间三件套,浴室柜,马桶,花洒
2. 定制衣柜橱柜的设计
3. 室内门测量
4. 强化地板厂家来检查找平层和测量面积用量。
爆料有奖!关注昆山论坛抖音号,抖音搜索“昆山论坛”,或搜索抖音号:ksbbs
 
美女离线twelcember

发帖
12813
昆币
26392 枚
133楼 发表于: 2020-12-18 , 来自:江苏省0==
对了,还要买厨房的水槽。
阳台的洗衣机柜
爆料有奖!关注昆山论坛抖音号,抖音搜索“昆山论坛”,或搜索抖音号:ksbbs
 
美女离线twelcember

发帖
12813
昆币
26392 枚
134楼 发表于: 2020-12-18 , 来自:江苏省0==
看看衣柜橱柜的设计
爆料有奖!关注昆山论坛抖音号,抖音搜索“昆山论坛”,或搜索抖音号:ksbbs
 
美女离线twelcember

发帖
12813
昆币
26392 枚
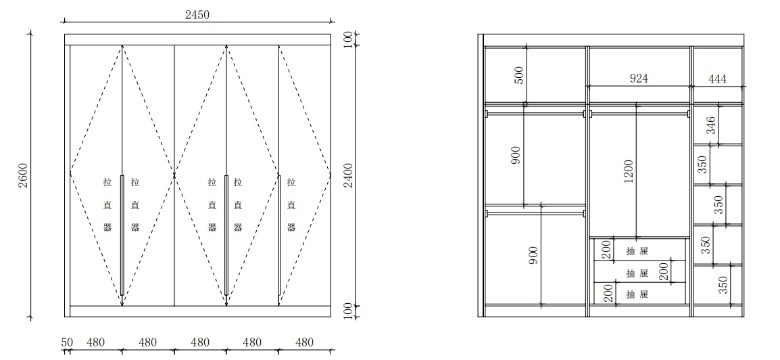
135楼 发表于: 2020-12-18 , 来自:江苏省0==
看看衣柜橱柜的设计
1F的卧室衣柜、



基本上挂衣区占了大半部分,叠衣区隔板是活动板,可以拆掉的。
爆料有奖!关注昆山论坛抖音号,抖音搜索“昆山论坛”,或搜索抖音号:ksbbs
 
美女离线twelcember

发帖
12813
昆币
26392 枚
136楼 发表于: 2020-12-18 , 来自:江苏省0==
餐边柜,其实一整堵墙是3.42米

因为没有玄关,所以不知道怎么安排鞋柜,就在进门的墙体和餐边柜连接起来做了一个730mm宽的鞋柜。
爆料有奖!关注昆山论坛抖音号,抖音搜索“昆山论坛”,或搜索抖音号:ksbbs
 
美女离线twelcember

发帖
12813
昆币
26392 枚
137楼 发表于: 2020-12-18 , 来自:江苏省0==
餐边柜是3.4米左右。

分成2段了,左右各1.2米,地柜+吊柜设计,中间镂空区域没有背板

左右两个柜体中间是1m宽的台面,地柜的宽度是450mm,吊柜是350mm。

中间1m的镂空区域,上边到时候要么是装饰画,要么是自己加些层板。
下边的空间把餐桌插进去,餐桌买了1.6米的,有点长,这样子和餐边柜有机结合,省空间。
爆料有奖!关注昆山论坛抖音号,抖音搜索“昆山论坛”,或搜索抖音号:ksbbs
 
美女离线twelcember

发帖
12813
昆币
26392 枚
138楼 发表于: 2020-12-18 , 来自:江苏省0==
鞋柜只有730mm总宽,减掉两侧的立板,只有690左右,估计一排能放三双鞋子吧。
门口的鞋柜估计只能放些常穿的鞋子, 其他统统放阳台柜里。
爆料有奖!关注昆山论坛抖音号,抖音搜索“昆山论坛”,或搜索抖音号:ksbbs
 
快速回复
限76 字节
如果您提交过一次失败了,可以用”恢复数据”来恢复帖子内容
 
上一个 下一个