夜间模式
  • 6383504阅读
  • 4105回复

《公益开帖八年专注户型解析》★★上传您的户型图★★为您的户型做深度解析★ [复制链接]

上一主题 下一主题
级别: 昆山新人
发帖
128
昆币
233 枚
3600楼 发表于: 2021-07-28 , 来自:上海市0==
你们有微信或者APP平台啥的吗?
在考虑要不要装修
爆料有奖!关注昆山论坛抖音号,抖音搜索“昆山论坛”,或搜索抖音号:ksbbs
 
离线朗通装饰
级别: 家装商家

发帖
17081
昆币
14390 枚
3601楼 发表于: 2021-07-29 , 来自:江苏省0==
回 老虎爱吹牛 的帖子
老虎爱吹牛:你们有微信或者APP平台啥的吗?
在考虑要不要装修 (2021-07-28 14:30)

您好,您可以加我微信雅丽13732666765,或者QQ:923095691.不断更新案例可以给您参考一下。
爆料有奖!关注昆山论坛抖音号,抖音搜索“昆山论坛”,或搜索抖音号:ksbbs
 
帅哥离线孤眠于此
级别: 昆山新人
发帖
185
昆币
198 枚
3602楼 发表于: 2021-07-30 , 来自:江苏省0==
小编,,你们周末都上班的吗
爆料有奖!关注昆山论坛抖音号,抖音搜索“昆山论坛”,或搜索抖音号:ksbbs
 
离线朗通装饰
级别: 家装商家

发帖
17081
昆币
14390 枚
3603楼 发表于: 2021-07-31 , 来自:江苏省0==
回 孤眠于此 的帖子
孤眠于此:小编,,你们周末都上班的吗[表情] (2021-07-30 10:35)

我们都正常上班的哦
爆料有奖!关注昆山论坛抖音号,抖音搜索“昆山论坛”,或搜索抖音号:ksbbs
 
帅哥离线心情yijiu
级别: 昆山新人
发帖
112
昆币
131 枚
3604楼 发表于: 2021-08-02 , 来自:江苏省0==
帮忙我一下这个户型

爆料有奖!关注昆山论坛抖音号,抖音搜索“昆山论坛”,或搜索抖音号:ksbbs
 
离线朗通装饰
级别: 家装商家

发帖
17081
昆币
14390 枚
3605楼 发表于: 2021-08-04 , 来自:江苏省0==
回 心情yijiu 的帖子
心情yijiu:帮忙我一下这个户型[表情][图片]
(2021-08-02 10:09)

您好,这个户型是标准的四房+1书房户型,入户玄关可以设计装饰一下。书房的墙不是承重墙可以拆掉,整体做一个三联动的玻璃移门,既不影响采光,平时打开状态通风效果也比较赞。整个空间的设计可以考虑后现代风格,根据家里居住需求多设计储物空间,方便后期整理。您可以加QQ:92309561把您的需求详细的说一下,设计师在线根据您的需求而设计。
爆料有奖!关注昆山论坛抖音号,抖音搜索“昆山论坛”,或搜索抖音号:ksbbs
 
离线朗通装饰
级别: 家装商家

发帖
17081
昆币
14390 枚
3606楼 发表于: 2021-08-05 , 来自:江苏省0==
天气炎热,大家出门记得防晒哦



爆料有奖!关注昆山论坛抖音号,抖音搜索“昆山论坛”,或搜索抖音号:ksbbs
 
离线朗通装饰
级别: 家装商家

发帖
17081
昆币
14390 枚
3607楼 发表于: 2021-08-06 , 来自:江苏省0==
感谢业主在大众点评给予好评

     感谢业主在大众点评给予好评,还记得业主初次来我们公司,也是了解过昆山几家知名的装修公司最终还是选择我们。!朗通装饰一直秉承着施工工艺精良,服务好每一位客户,用心做实事态度。就是这样保持初衷,十几年一路走下来建立了在昆山整个行业良性循环的好口碑!



爆料有奖!关注昆山论坛抖音号,抖音搜索“昆山论坛”,或搜索抖音号:ksbbs
 
离线朗通装饰
级别: 家装商家

发帖
17081
昆币
14390 枚
3608楼 发表于: 2021-08-07 , 来自:江苏省0==
欢迎大家上传户型图,设计师在线为您解析哦

爆料有奖!关注昆山论坛抖音号,抖音搜索“昆山论坛”,或搜索抖音号:ksbbs
 
离线朗通装饰
级别: 家装商家

发帖
17081
昆币
14390 枚
3609楼 发表于: 2021-08-08 , 来自:江苏省0==
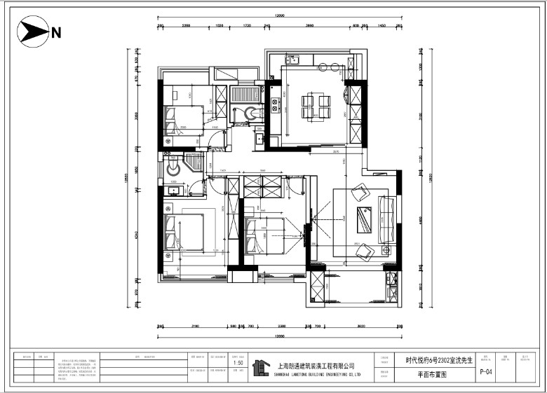
小编今天分析一套时代悦府143平米的设计方案,给大家参考一下哦




爆料有奖!关注昆山论坛抖音号,抖音搜索“昆山论坛”,或搜索抖音号:ksbbs
 
快速回复
限76 字节
如果您提交过一次失败了,可以用”恢复数据”来恢复帖子内容
 
上一个 下一个