夜间模式
  • 6383458阅读
  • 4105回复

《公益开帖八年专注户型解析》★★上传您的户型图★★为您的户型做深度解析★ [复制链接]

上一主题 下一主题
离线朗通装饰
级别: 家装商家

发帖
17081
昆币
14390 枚
3590楼 发表于: 2021-07-17 , 来自:江苏省0==
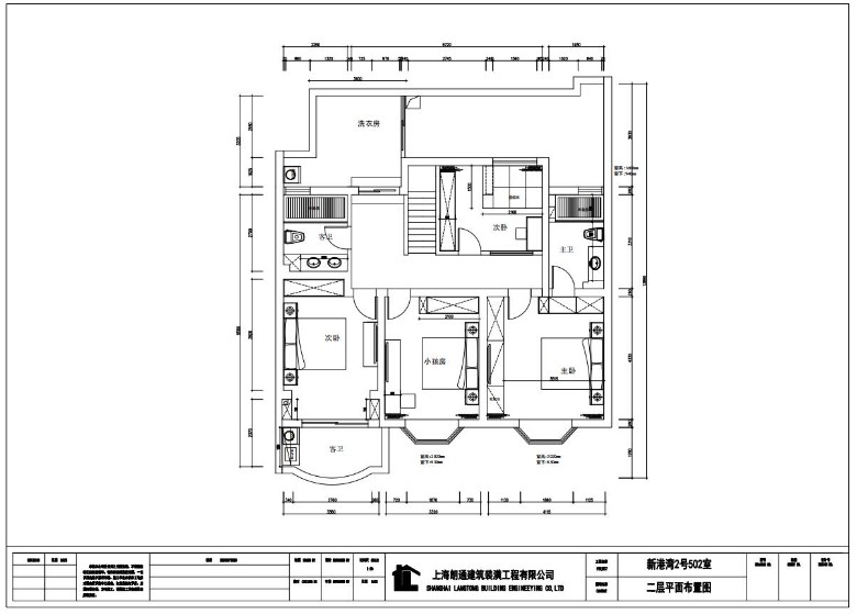
今天小编分享的是新港湾177平米的设计案例




爆料有奖!关注昆山论坛抖音号,抖音搜索“昆山论坛”,或搜索抖音号:ksbbs
 
级别: 昆山新人
发帖
484
昆币
527 枚
3591楼 发表于: 2021-07-18 , 来自:江苏省0==
回 朗通装饰 的帖子
朗通装饰:今天小编分享的是新港湾177平米的设计案例
[图片]
[图片]
....... (2021-07-17 10:25)

这个户型真挺不错的
爆料有奖!关注昆山论坛抖音号,抖音搜索“昆山论坛”,或搜索抖音号:ksbbs
 
离线朗通装饰
级别: 家装商家

发帖
17081
昆币
14390 枚
3592楼 发表于: 2021-07-19 , 来自:江苏省0==
回 秋天的枫叶2 的帖子
秋天的枫叶2:这个户型真挺不错的[表情] (2021-07-18 10:20)

是的,欢迎关注朗通装饰
爆料有奖!关注昆山论坛抖音号,抖音搜索“昆山论坛”,或搜索抖音号:ksbbs
 
离线朗通装饰
级别: 家装商家

发帖
17081
昆币
14390 枚
3593楼 发表于: 2021-07-21 , 来自:江苏省0==
现代风格,品味气质高雅的艺术格调


▽ 案例简介/Case Introduction
设计公司 / 朗通装饰
Design Agency / LTZS·CD
项目地址 /花桥裕园
Project Address /Fa Kiu Yue Garden
设计面积 /167平米
Design Area /167㎡
设计风格 / 现代风格
Design Style /Modern style







爆料有奖!关注昆山论坛抖音号,抖音搜索“昆山论坛”,或搜索抖音号:ksbbs
 
离线冷曦
级别: 昆山新人
发帖
189
昆币
226 枚
3594楼 发表于: 2021-07-22 , 来自:江苏省0==
帮忙看一下这个户型


爆料有奖!关注昆山论坛抖音号,抖音搜索“昆山论坛”,或搜索抖音号:ksbbs
 
离线朗通装饰
级别: 家装商家

发帖
17081
昆币
14390 枚
3595楼 发表于: 2021-07-23 , 来自:江苏省0==
回 冷曦 的帖子
冷曦:帮忙看一下这个户型[表情]
[图片]
(2021-07-22 09:45)

您好,这个户型方正,得房率挺高的,两房朝南。户型很不错的。
楼主家居住几人呢,房型布局可以不用大改,可以着重风格设计这块。
现在我们很多业主比较喜欢现代轻奢风格,您有比较倾向的风格吗?
爆料有奖!关注昆山论坛抖音号,抖音搜索“昆山论坛”,或搜索抖音号:ksbbs
 
离线朗通装饰
级别: 家装商家

发帖
17081
昆币
14390 枚
3596楼 发表于: 2021-07-24 , 来自:江苏省0==
最近天气有雨,大家出门记得带伞哦
爆料有奖!关注昆山论坛抖音号,抖音搜索“昆山论坛”,或搜索抖音号:ksbbs
 
离线朗通装饰
级别: 家装商家

发帖
17081
昆币
14390 枚
3597楼 发表于: 2021-07-25 , 来自:江苏省0==
今天天气暴雨大家出门要记得防范
爆料有奖!关注昆山论坛抖音号,抖音搜索“昆山论坛”,或搜索抖音号:ksbbs
 
离线朗通装饰
级别: 家装商家

发帖
17081
昆币
14390 枚
3598楼 发表于: 2021-07-27 , 来自:江苏省0==
现代,邂逅不落俗套的理想生活










爆料有奖!关注昆山论坛抖音号,抖音搜索“昆山论坛”,或搜索抖音号:ksbbs
 
离线朗通装饰
级别: 家装商家

发帖
17081
昆币
14390 枚
3599楼 发表于: 2021-07-28 , 来自:江苏省0==
欢迎大家上传户型图,设计师在线为您解析




爆料有奖!关注昆山论坛抖音号,抖音搜索“昆山论坛”,或搜索抖音号:ksbbs
 
快速回复
限76 字节
如果您提交过一次失败了,可以用”恢复数据”来恢复帖子内容
 
上一个 下一个