夜间模式
  • 800090阅读
  • 1916回复

昆山朗通装饰·专注家装13年 最强的海派设计团队 [复制链接]

上一主题 下一主题
在线朗通装饰
级别: 家装商家

发帖
17081
昆币
14390 枚
1300楼 发表于: 2017-04-09 , 来自:江苏省0==

公司网址:[url][urlend1]   (精彩案例邀您欣赏)
爆料有奖!关注昆山论坛抖音号,抖音搜索“昆山论坛”,或搜索抖音号:ksbbs
 
离线牧之
级别: 昆山新人
发帖
429
昆币
430 枚
1301楼 发表于: 2017-04-11 , 来自:江苏省0==
朗通的设计越来越棒 一直关注
爆料有奖!关注昆山论坛抖音号,抖音搜索“昆山论坛”,或搜索抖音号:ksbbs
 
在线朗通装饰
级别: 家装商家

发帖
17081
昆币
14390 枚
1302楼 发表于: 2017-04-12 , 来自:江苏省0==
回 牧之 的帖子
牧之:朗通的设计越来越棒 一直关注[表情] (2017-04-11 14:53)

感谢您对朗通装饰的关注与信任!
公司无论是施工品质还是整体服务以及合理的报价让公司的性价比之高,都是昆山众多业主选择我公司最实际的理由!
爆料有奖!关注昆山论坛抖音号,抖音搜索“昆山论坛”,或搜索抖音号:ksbbs
 
在线朗通装饰
级别: 家装商家

发帖
17081
昆币
14390 枚
1303楼 发表于: 2017-04-12 , 来自:江苏省0==
人民的名义:内幕爆料!
1.大老虎是前任省委书记赵立春。
2.暗杀陈海的是老学长公安厅厅长祁同伟。
3.李达康是清白的,最后都没倒台。
4.祁同伟和高小琴是真爱。
5.老师高育良书记也是被腐蚀堕落了。
6.主角侯亮平被政法系算计,险些被干掉。
7.沙瑞金书记是正义的后tai。
8.检察长老季看起来中庸,实际上是非常有立场的好人。在关键时刻保护了主角。
9.要想装修,就来朗通。完美!

爆料有奖!关注昆山论坛抖音号,抖音搜索“昆山论坛”,或搜索抖音号:ksbbs
 
在线朗通装饰
级别: 家装商家

发帖
17081
昆币
14390 枚
1304楼 发表于: 2017-04-13 , 来自:江苏省0==
设计背景:
    秋也许就藏在金灿灿的稻穗上,也许藏在火通通的柿子里,也许藏在绿油油的菜地间。秋,收获的季节!金黄的季节——同春一样可爱,同夏一样热情,冬一样迷人。设计这套作品恰巧在秋天,洋洋洒洒的秋日阳光,温暖的漫散在这屋子里,墙上极具温馨家庭气息父爱的暖男挂画,像极了这暖阳,笼罩着整间房子。
设计理念:
    沉稳的颜色,合理的储藏空间,成为设计的关键。鞋柜下采用悬空设计,方便临时存鞋,玄关灯光一键控制安全节能。
    客餐厅停留时间长,客人来访主要活动场所,注重整体档次及效果。现代简约,耐看实用。软装单纯而明快,明确而强烈。一体化吊顶,有细节感,同时方便施工,节省造价。不带雕花、纹饰的家具,简洁具功能化更贴近自然。从纹理到颜色都给人一种舒适的人情味,现代的记忆仿佛真实的印刻在每块木板上面,体现主人的个性及品味。
平面设计图:


实景图:






[ 此帖被朗通装饰在2017-04-16 16:41重新编辑 ]
爆料有奖!关注昆山论坛抖音号,抖音搜索“昆山论坛”,或搜索抖音号:ksbbs
 
帅哥离线唯独有秀
级别: 昆山新人
发帖
389
昆币
435 枚
1305楼 发表于: 2017-04-13 , 来自:江苏省0==
爆料有奖!关注昆山论坛抖音号,抖音搜索“昆山论坛”,或搜索抖音号:ksbbs
 
在线朗通装饰
级别: 家装商家

发帖
17081
昆币
14390 枚
1306楼 发表于: 2017-04-14 , 来自:江苏省0==


爆料有奖!关注昆山论坛抖音号,抖音搜索“昆山论坛”,或搜索抖音号:ksbbs
 
在线朗通装饰
级别: 家装商家

发帖
17081
昆币
14390 枚
1307楼 发表于: 2017-04-15 , 来自:江苏省0==
爆料有奖!关注昆山论坛抖音号,抖音搜索“昆山论坛”,或搜索抖音号:ksbbs
 
在线朗通装饰
级别: 家装商家

发帖
17081
昆币
14390 枚
1308楼 发表于: 2017-04-16 , 来自:江苏省0==
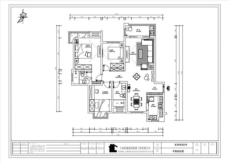
虹桥佳苑,现代简约风格案例赏析!

户型结构:三房两厅
施工单位:朗通装饰
项目地址:虹桥佳苑
设计单位:朗通设计团队
装修风格:现代简约风格
主要材料:实木线条、硅藻泥、大理石、壁纸、地砖、地板等等。
设计理念:
    现代简约风格是以简约为主的装修风格。简约主义源于20世纪初期的西方现代主义。西方现代主义源于包豪斯学派,包豪斯学派始创于1919年德国魏玛,创始人是瓦尔特·格罗皮乌斯(Walter Gropius),包豪斯学派提倡功能第一的原则,提出适合流水线生产的家具造型,在建筑装饰上提倡简约,简约风格的特色是将设计的元素、色彩、照明、原材料简化到最少的程度,但对色彩、材料的质感要求很高。因此,简约的空间设计通常非常含蓄,往往能达到以少胜多、以简胜繁的效果。
效果图:






户型结构图:




爆料有奖!关注昆山论坛抖音号,抖音搜索“昆山论坛”,或搜索抖音号:ksbbs
 
在线朗通装饰
级别: 家装商家

发帖
17081
昆币
14390 枚
1309楼 发表于: 2017-04-16 , 来自:江苏省0==
香堤湾实景,蜕变~创新生~

率性自由的个性+自由洒脱的陈设手法,让这个不走旧俗套路的空间自成一统。大块色彩如舞步般在室内游走飞旋,在家居空间中简单而自由的线条随处可见,从心出发,享受生活才能事半功倍。
很感谢香堤湾的张姐特意送来的锦旗,“精心的施工+优质的服务”,这是张姐对我们设计水平、施工质量及服务的最大肯定,朗通会一如既往一步一个脚印,用口碑与质量来服务更多的客户,也相信我们在未来的某一天定会重逢!相谈盛欢,随后小编还和设计师一同前往现场去拍摄,分享给大家!


爆料有奖!关注昆山论坛抖音号,抖音搜索“昆山论坛”,或搜索抖音号:ksbbs
 
快速回复
限76 字节
如果您提交过一次失败了,可以用”恢复数据”来恢复帖子内容
 
上一个 下一个