夜间模式
  • 777271阅读
  • 1916回复

昆山朗通装饰·专注家装13年 最强的海派设计团队 [复制链接]

上一主题 下一主题
离线朗通装饰
级别: 家装商家

发帖
17009
昆币
14265 枚
1280楼 发表于: 2017-03-24 , 来自:江苏省0==
天地华城,简欧风格案例赏析!

户型结构:三房两厅
施工单位:朗通装饰
项目地址:天地华城
设计单位:朗通设计团队
装修风格:简欧风格
主要材料:实木线条、石膏线、微晶石、壁纸、地砖、地板等等。
设计理念:
本案的设计风格为简约欧式,营造典雅、自然、高贵的气质、浪漫的情调是本案的主题。 简约、质朴的设计风格是众多人群所喜爱的,生活在繁杂多变的世界里已是烦扰不休,而简单、自然的生活空间却能让人身心舒畅,感到宁静和安逸;藉着室内空间的解构和重组,便可以满足我们对悠然自得的生活的向往和追求,让我们在纷扰的现实生活中找到平衡,缔造出一个令人心弛神往的写意空间。
效果图:




[ 此帖被朗通装饰在2017-03-24 14:10重新编辑 ]
爆料有奖!关注昆山论坛抖音号,抖音搜索“昆山论坛”,或搜索抖音号:ksbbs
 
离线朗通装饰
级别: 家装商家

发帖
17009
昆币
14265 枚
1281楼 发表于: 2017-03-26 , 来自:江苏省0==
爆料有奖!关注昆山论坛抖音号,抖音搜索“昆山论坛”,或搜索抖音号:ksbbs
 
离线朗通装饰
级别: 家装商家

发帖
17009
昆币
14265 枚
1282楼 发表于: 2017-03-26 , 来自:江苏省0==
金谷园,追寻古韵之风…

户型结构:两房两厅
施工单位:朗通装饰
项目地址:金谷园
设计单位:朗通设计团队
装修风格:新中式风格
主要材料:有色乳胶漆、硅藻泥、硬包、壁纸、地砖、地板等等。
设计理念:
在室内设计中,一贯追求照搬古代设计往往效果不尽如人意,更要注重加入现代元素。现代技术中有很多新型材料,就可以善加利用进去。另外在设计中也可以把主人的个人喜好、品味等也加入进去。既满足现代人居住的要求,迎合中式家具的设计风格。
效果图:






原始结构图:


[ 此帖被朗通装饰在2017-03-26 10:53重新编辑 ]
爆料有奖!关注昆山论坛抖音号,抖音搜索“昆山论坛”,或搜索抖音号:ksbbs
 
离线朗通装饰
级别: 家装商家

发帖
17009
昆币
14265 枚
1283楼 发表于: 2017-03-28 , 来自:江苏省0==
青城之恋,美式田园风格案例赏析!

户型结构:三室两厅
施工单位:朗通装饰
项目地址:青城之恋
设计单位:朗通设计团队
装修风格:田园美式风格
主要材料:有色乳胶漆、铁艺隔断、石膏线、硅藻泥、壁纸、地砖、地板等等。
设计理念:
美式田园风格又被称为美式乡村风格,属于自然风格的一支,倡导“回归自然”,田园风格在美学上推崇自然、结合自然,在室内环境中力求表现悠闲、舒畅、自然的田园生活情趣,也常运用天然木、石、藤、竹等材质质朴的纹理,并巧妙设置室内绿化,创造自然、简朴、高雅的氛围。
效果图:











爆料有奖!关注昆山论坛抖音号,抖音搜索“昆山论坛”,或搜索抖音号:ksbbs
 
离线朗通装饰
级别: 家装商家

发帖
17009
昆币
14265 枚
1284楼 发表于: 2017-03-29 , 来自:江苏省0==
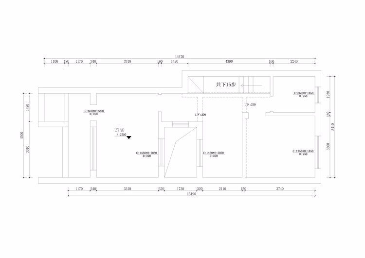
新城天地,新中式风格案例赏析!
户型结构:三室两厅

施工单位:朗通装饰
项目地址:新城天地
设计单位:朗通设计团队
装修风格:新中式风格
主要材料:有色乳胶漆、艺术雕花隔断、艺术烤漆玻璃、壁纸、地砖、地板等等。
设计理念:
  如何古为今用,推陈出新,将传统的“中国元素”完美地融入室内设计中是值得我们探索的,毕竟这是从我们文化之根上生长出来的,我们也最有可能在这方面获得创意优势。传统的中式设计,主要运用对称均衡的手法,四平八稳,中规中矩,色彩上多采用朴素稳重的颜色,材质上主要运用木材和石材。而今要有所突破,就要在布局中寻求变化,丰富其空间印象;在色彩上增加亮色,带来活泼生气,增添音乐的跳跃感;在材质上可以运用现代工艺,采用对比手法,如使用玻璃和不锈钢与岩石、实木等材质的对比,既能增强现代感又不失整体中式感。
效果图:







原始结构图:


[ 此帖被朗通装饰在2017-03-29 11:12重新编辑 ]
爆料有奖!关注昆山论坛抖音号,抖音搜索“昆山论坛”,或搜索抖音号:ksbbs
 
离线朗通装饰
级别: 家装商家

发帖
17009
昆币
14265 枚
1285楼 发表于: 2017-03-29 , 来自:江苏省0==
平面规划对于整个装修来说是非常重要的,即要体现整个格局的大气美观,又要满足其功能需求!
好设计!
爆料有奖!关注昆山论坛抖音号,抖音搜索“昆山论坛”,或搜索抖音号:ksbbs
 
离线朗通装饰
级别: 家装商家

发帖
17009
昆币
14265 枚
1286楼 发表于: 2017-03-30 , 来自:江苏省0==
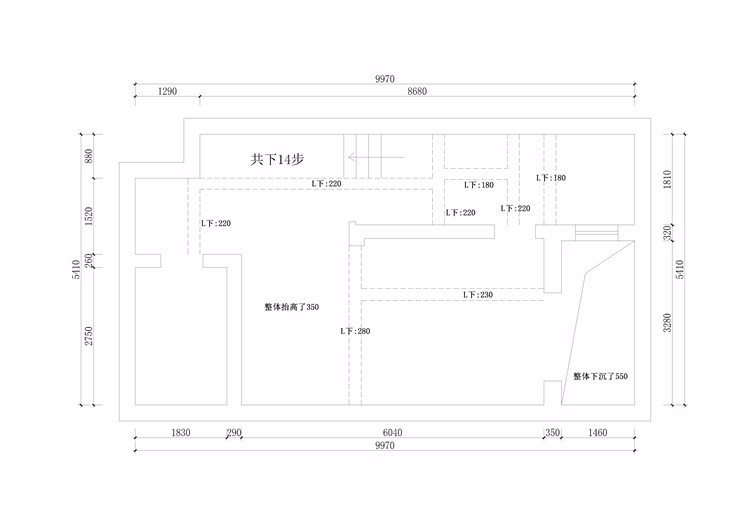
花桥绿地别墅,知道老司机们为何总选择朗通吗?!

户型结构:别墅
施工单位:朗通装饰
项目地址:花桥绿地
设计单位:朗通设计团队
装修风格:新中式风格
主要材料:有色乳胶漆、艺术雕花隔断、艺术烤漆玻璃、硅藻泥、硬包、壁纸、地砖、地板等等。
设计理念:
新中式风格,它的特点是将现代元素和传统元素进行了有机的结合,以现代人的审美需求去营造传统韵味。新中式风格大多数采用对称式的布局,用以营造清幽雅致的生活氛围,在装饰细节上崇尚自然情趣。在家具选配上,一般采用传统的圈椅,条案等中式家具去进行西式陈设,强调舒适性与实用性。在色彩上,通常以黑、白、灰色为基调,局部用红、黄、蓝、绿等进行点缀。在材质上,多采用榆木,橡木等硬质木材进行加工,用来表现东方文化的内敛气质。
效果图:










地下室结构:


一层结构:


二层结构:


三层结构:





[ 此帖被朗通装饰在2017-03-30 11:27重新编辑 ]
爆料有奖!关注昆山论坛抖音号,抖音搜索“昆山论坛”,或搜索抖音号:ksbbs
 
离线猜的米利
发帖
1041
昆币
1705 枚
1287楼 发表于: 2017-03-31 , 来自:江苏省0==
回 朗通装饰 的帖子
朗通装饰:感谢您的支持,有错别字哦[表情] (2017-02-27 09:40)

爆料有奖!关注昆山论坛抖音号,抖音搜索“昆山论坛”,或搜索抖音号:ksbbs
 
离线朗通装饰
级别: 家装商家

发帖
17009
昆币
14265 枚
1288楼 发表于: 2017-03-31 , 来自:江苏省0==
回 猜的米利 的帖子
猜的米利:[表情] (2017-03-31 13:18)

爆料有奖!关注昆山论坛抖音号,抖音搜索“昆山论坛”,或搜索抖音号:ksbbs
 
离线朗通装饰
级别: 家装商家

发帖
17009
昆币
14265 枚
1289楼 发表于: 2017-04-01 , 来自:江苏省0==
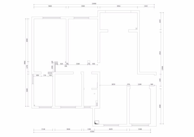
金鹰国际大平层,只有你想不到的,没有我们做不到的!

户型结构:大平层
施工单位:朗通装饰
项目地址:金鹰国际
设计单位:朗通设计团队
装修风格:现代风格
主要材料:有色乳胶漆、大理石、硬包、壁纸、地砖、地板等等。
设计理念:
    现代风格是比较流行的一种风格,追求时尚与潮流,非常注重居室空间的布局与使用功能的完美结合。现代主义也称功能主义,是工业社会的产物,其最早的代表是建于德国魏玛的包豪斯学校。其主题是:要创造一个能使艺术家接受现代生产最省力的环境---机械的环境。这种技术美学的思想是本世纪室内装饰最大的革命。
效果图:



原始结构图:


爆料有奖!关注昆山论坛抖音号,抖音搜索“昆山论坛”,或搜索抖音号:ksbbs
 
快速回复
限76 字节
如果您提交过一次失败了,可以用”恢复数据”来恢复帖子内容
 
上一个 下一个