夜间模式
打赏中心
每日签到
幸运转盘
论坛帮助
活动聚焦
手机客户端
道具中心
商家认证
勋章中心
诚信认证
快捷通道
关闭
您还没有登录,快捷通道只有在登录后才能使用。
立即登录
还没有帐号? 赶紧
注册一个
论坛首页
论坛导航
商家
招聘
装修
昆山优选
小红娘
分类信息
二手房
昆山视窗
登录
注册
找回密码
帖子
用户
版块
帖子
搜索
论坛首页
>
论坛导航
>
酸甜苦辣话装修
>
128平,和室友一起打造美家
发帖
回复
返回列表
上一页
1...
3
4
5
6
7
...49
下一页
到第
页
确认
新帖
229404
阅读
486
回复
128平,和室友一起打造美家
[复制链接]
扫描到手机
论坛小编教你如何扫二维码
上一主题
下一主题
离线
一夕意相左
UID:1309334
注册时间
2022-03-03
最后登录
2022-10-05
发帖
478
搜Ta的帖子
精华
0
昆币
547
访问TA的空间
加好友
用道具
级别:
昆山新人
发帖
478
昆币
547 枚
加关注
发消息
只看该作者
40楼
发表于: 2022-04-27
,
来自:江苏省
0==
本帖评分记录
共
条评分
爆料有奖!关注昆山论坛抖音号,抖音搜索“昆山论坛”,或搜索抖音号:ksbbs
引用
举报
离线
一夕意相左
UID:1309334
注册时间
2022-03-03
最后登录
2022-10-05
发帖
478
搜Ta的帖子
精华
0
昆币
547
访问TA的空间
加好友
用道具
级别:
昆山新人
发帖
478
昆币
547 枚
加关注
发消息
只看该作者
41楼
发表于: 2022-04-27
,
来自:江苏省
0==
本帖评分记录
共
条评分
爆料有奖!关注昆山论坛抖音号,抖音搜索“昆山论坛”,或搜索抖音号:ksbbs
引用
举报
离线
一夕意相左
UID:1309334
注册时间
2022-03-03
最后登录
2022-10-05
发帖
478
搜Ta的帖子
精华
0
昆币
547
访问TA的空间
加好友
用道具
级别:
昆山新人
发帖
478
昆币
547 枚
加关注
发消息
只看该作者
42楼
发表于: 2022-04-27
,
来自:江苏省
0==
那我们做了什么呢?
首先我家郑设计师和水电师傅对接,过了整屋的开关面板插座,发现了灯留的位置需要调整问题。
本帖评分记录
共
条评分
爆料有奖!关注昆山论坛抖音号,抖音搜索“昆山论坛”,或搜索抖音号:ksbbs
引用
举报
离线
一夕意相左
UID:1309334
注册时间
2022-03-03
最后登录
2022-10-05
发帖
478
搜Ta的帖子
精华
0
昆币
547
访问TA的空间
加好友
用道具
级别:
昆山新人
发帖
478
昆币
547 枚
加关注
发消息
只看该作者
43楼
发表于: 2022-04-27
,
来自:江苏省
0==
我老公则是对接投影仪电源线HDMI线需要装的问题,而我就是观察施工工艺问题。
本帖评分记录
共
条评分
爆料有奖!关注昆山论坛抖音号,抖音搜索“昆山论坛”,或搜索抖音号:ksbbs
引用
举报
离线
一夕意相左
UID:1309334
注册时间
2022-03-03
最后登录
2022-10-05
发帖
478
搜Ta的帖子
精华
0
昆币
547
访问TA的空间
加好友
用道具
级别:
昆山新人
发帖
478
昆币
547 枚
加关注
发消息
只看该作者
44楼
发表于: 2022-04-27
,
来自:江苏省
0==
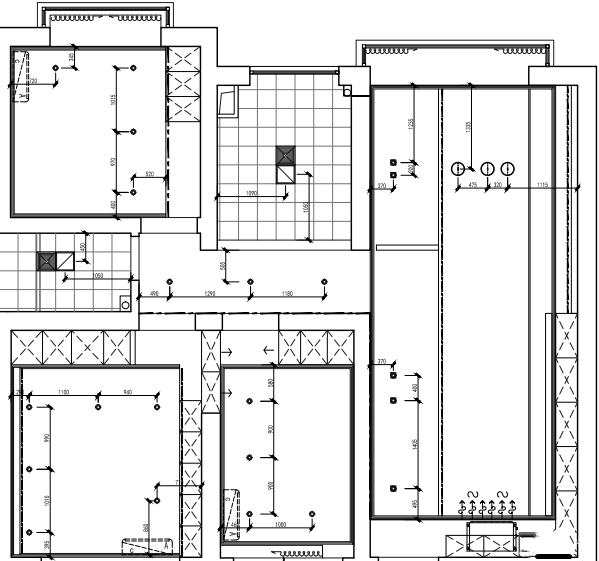
我先把原先设定的灯槽位置施工图给大家看一下。有了前期稿子的确认和施工前的水电定位时的沟通才能有现在的落地实现。想当时在做水电定位沟通的时候,这些个位置设计师和水电师傅他们两花了估计得有2小时以上,不容易啊他们两,估计当时他们口都干了
本帖评分记录
共
条评分
爆料有奖!关注昆山论坛抖音号,抖音搜索“昆山论坛”,或搜索抖音号:ksbbs
引用
举报
离线
一夕意相左
UID:1309334
注册时间
2022-03-03
最后登录
2022-10-05
发帖
478
搜Ta的帖子
精华
0
昆币
547
访问TA的空间
加好友
用道具
级别:
昆山新人
发帖
478
昆币
547 枚
加关注
发消息
只看该作者
45楼
发表于: 2022-04-27
,
来自:江苏省
0==
本帖评分记录
共
条评分
爆料有奖!关注昆山论坛抖音号,抖音搜索“昆山论坛”,或搜索抖音号:ksbbs
引用
举报
离线
一夕意相左
UID:1309334
注册时间
2022-03-03
最后登录
2022-10-05
发帖
478
搜Ta的帖子
精华
0
昆币
547
访问TA的空间
加好友
用道具
级别:
昆山新人
发帖
478
昆币
547 枚
加关注
发消息
只看该作者
46楼
发表于: 2022-04-27
,
来自:江苏省
0==
而我工艺的观察如下,给大家做个参考:
1 墙电箱高度1.6米以上,左零线右火线,强电箱的电线没有接头,水电师傅做的很漂亮。
本帖评分记录
共
条评分
爆料有奖!关注昆山论坛抖音号,抖音搜索“昆山论坛”,或搜索抖音号:ksbbs
引用
举报
离线
一夕意相左
UID:1309334
注册时间
2022-03-03
最后登录
2022-10-05
发帖
478
搜Ta的帖子
精华
0
昆币
547
访问TA的空间
加好友
用道具
级别:
昆山新人
发帖
478
昆币
547 枚
加关注
发消息
只看该作者
47楼
发表于: 2022-04-27
,
来自:江苏省
0==
[ 此帖被一夕意相左在2022-04-27 12:58重新编辑 ]
本帖评分记录
共
条评分
爆料有奖!关注昆山论坛抖音号,抖音搜索“昆山论坛”,或搜索抖音号:ksbbs
引用
举报
离线
一夕意相左
UID:1309334
注册时间
2022-03-03
最后登录
2022-10-05
发帖
478
搜Ta的帖子
精华
0
昆币
547
访问TA的空间
加好友
用道具
级别:
昆山新人
发帖
478
昆币
547 枚
加关注
发消息
只看该作者
48楼
发表于: 2022-04-27
,
来自:江苏省
0==
本帖评分记录
共
条评分
爆料有奖!关注昆山论坛抖音号,抖音搜索“昆山论坛”,或搜索抖音号:ksbbs
引用
举报
离线
一夕意相左
UID:1309334
注册时间
2022-03-03
最后登录
2022-10-05
发帖
478
搜Ta的帖子
精华
0
昆币
547
访问TA的空间
加好友
用道具
级别:
昆山新人
发帖
478
昆币
547 枚
加关注
发消息
只看该作者
49楼
发表于: 2022-04-27
,
来自:江苏省
0==
2 横平竖直,墙面没有横槽,都是竖槽。尽量避免横槽,因为超过50公分墙面横槽会影响墙的受力承重。这点很好。
本帖评分记录
共
条评分
爆料有奖!关注昆山论坛抖音号,抖音搜索“昆山论坛”,或搜索抖音号:ksbbs
引用
举报
发帖
回复
返回列表
上一页
1...
3
4
5
6
7
...49
下一页
到第
页
确认
https://bbs.kshot.com
访问内容超出本站范围,不能确定是否安全
继续访问
取消访问
快速回复
限76 字节
如果您在写长篇帖子又不马上发表,建议存为草稿
您目前还是游客,请
登录
或
注册
进入高级模式
文字颜色
发 布
回复后跳转到最后一页
上一个
下一个
隐藏
快速跳转
社会民生
聚焦昆山
立法直通车
昆山分类信息
昆山市教育局
昆山公交集团
昆山市交通运输局
消费维权
美丽昆山
昆山百事通
文明昆山
全民反诈
城市生活
玉山广场
昆友圈
走遍天下
昆山招聘
KBS车友会
昆山体育
房产装修
房产大家谈
房产租售
酸甜苦辣话装修
生活资讯
家有儿女
美食天地
花草宠物
交友婚恋
闲花文字
数码摄影
认证商家
论坛商家
昆山商情
社区站务
论坛事务
删帖声明
关闭
关闭
选中
1
篇
全选
喜欢就打赏个小红包吧
请选择打赏金额
1元
5元
10元
30元
100元
200元
您是游客,登陆后可以使用赏金钱包
赏金钱包支付
微信扫码支付
赏
我要提现
用微信扫描二维码完成支付
电话:0512-57993030
工作日 8:30-17:00在线
广告热线:18012662666
紧急联系:18888186330