夜间模式
  • 18172阅读
  • 1回复

自建别墅新中式风格 [复制链接]

上一主题 下一主题
美女离线大慈装饰
级别: 家装商家

发帖
20527
昆币
2358 枚
只看楼主 使用道具 电梯直达
楼主  发表于: 2022-03-13 , 来自:江苏省0==
/

本期案例

/


坐标│江苏·昆山
区域│太仓自建别墅
户型│三层别墅
面积│379㎡
风格│新中式
设计师丨张工


/

中式生活可成诗多则惑,少则得这样的新中式设计才叫顶级!繁杂的世界需要简单生活家,是一个身心放鬆的场所中式可以让身心愉悦————379㎡新中式用设计写意人生,愿我们都活在诗里,淡泊而惬意。

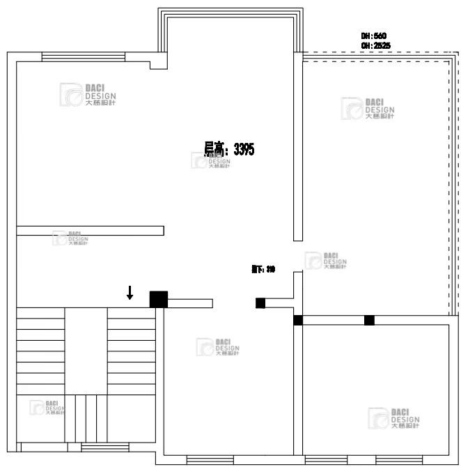
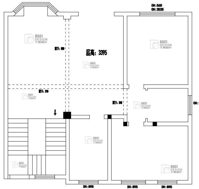
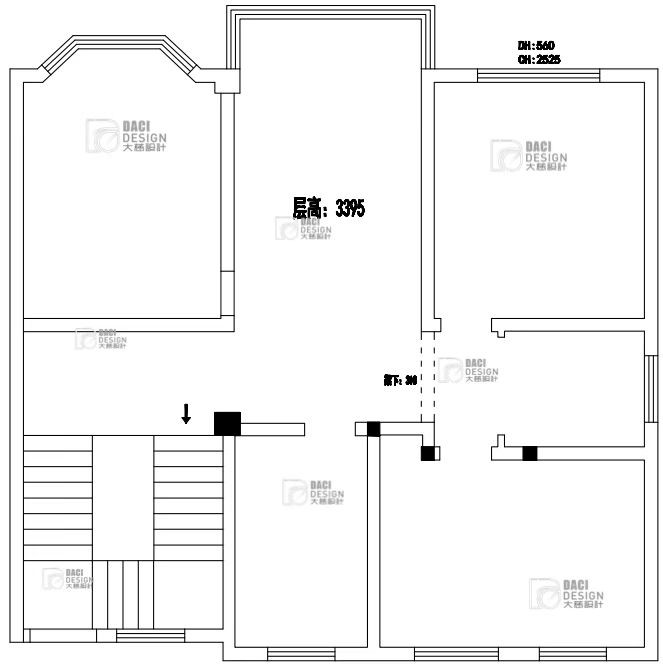
一层原图


二层原图



三层原图



一层布置图



二层布置图



三层布置图



▲设计图

/

设计理念



设计是一种追求完美的生活态度,设计是一种追求品味的生活概念。

只有既能体现中国传统神韵,又具备现代感的设计,才是真正的现代中式风格。

/

客厅



客厅的吊顶与地面相呼应,均采用了方形,圆形的多层吊灯在其中格外的引人注目。沙发后方的水墨画,有种层层叠叠的意境美,让人不由得想起“孤帆远影碧空尽”的诗句……空间流畅而舒适,虚实结合的山水元素巧妙的贯彻整个空间,同时也赋予空间自然气息。



主卧



卧室选用了素净淡雅的浅色调,小型的灯饰隐于墙面,达到了一种“见光不见灯”的效果。床头两盏灯饰自天花板坠下,弥补了床头两侧光源不充足的问题。当清晨第一缕阳光洒入房间,实景光与自然光交替存在,以简单的刻画造就独特的视觉印象,营造出错落有致的光影氛围。层叠渲染之中,给人一种梦幻的感觉及深邃宁静的感官体验。

衣帽间



衣帽间是女人的后花园,里面深藏女人的秘密与故事。那里面的每件衣服、每双鞋、每个包,都记录着女人不同时期的经历。女人的喜怒哀乐、生活品味和态度…都在衣帽间里,因此,一间完美的衣帽间是每个女人的梦想。

女孩房



温馨柔美的色调是为卧室本身增添了流光溢彩。置物格的设计是对空间最为合理化的利用。视觉观感下的传统配饰,无一不在诉说着古老东方文化的设计之美,从而塑造出一种“稳重静谧”的对称美。




    

扫下方二维码了更多装修方案!




中国-苏州-昆山
全案设计中心:昆山九方城8号楼1704--1710(5A写字楼)
展示体验中心:昆山九方城8号楼1706(5A写字楼)
工程管理中心:玉山镇柏庐北路156号(店面)
爆料有奖!关注昆山论坛抖音号,抖音搜索“昆山论坛”,或搜索抖音号:ksbbs
 
大慈装饰  昆山推荐率85%以上,口碑品牌  热线:0512-57779948/18551100758 地址:昆山市九方城保利地产大楼1704-1710
离线悠悠凡仔
级别: 初来乍到
发帖
8
昆币
10 枚
沙发  发表于: 2022-03-14 , 来自:江苏省0==
需要家装防护网的不
爆料有奖!关注昆山论坛抖音号,抖音搜索“昆山论坛”,或搜索抖音号:ksbbs
 
快速回复
限76 字节
如果您提交过一次失败了,可以用”恢复数据”来恢复帖子内容
 
上一个 下一个