夜间模式
  • 18042阅读
  • 0回复

龙辰雅居叠加别墅现代简约 [复制链接]

上一主题 下一主题
美女离线大慈装饰
级别: 家装商家

发帖
20527
昆币
2358 枚
只看楼主 使用道具 电梯直达
楼主  发表于: 2022-03-06 , 来自:江苏省0==
/

本期案例

/


坐标│江苏·昆山
区域│龙辰雅居8#**4室
户型│叠加别墅
面积│280㎡
风格│现代简约
设计师丨龚工

/

现代简约风格装修,简约个性的设计理念独得业主的喜爱。极简的家居摆设打造出时尚大气的现代家居空间,独到的细节设计营造出个性简约的家居氛围。

/

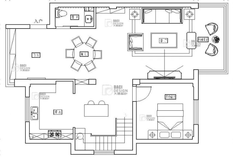
布置图









▲设计图

/

设计理念

现代简约风格强调简洁的外形和实用性能的高度统一。整体线条简约流畅干净利落,空间开阔自由呈现。追求删繁去简,在每个看似随心所欲的设计下隐藏的是别出心裁的设计理念。装饰手法上拒绝设计复杂、华而不实且实用性欠缺的家居用品,以质地纯净、工艺精致的配饰为主,营造出不受拘束、简洁大气、温馨舒适的生活氛围。

/

客餐厅全景




客厅空间非常简洁,在装修时更为讲究空间的色彩、布局与装修材料的选择、配搭。剔除了繁琐的装饰后,适当的留白更显空间的大气简约。



客厅空间色彩和谐统一,低饱和度的鹅黄色皮质沙发简约高档且质感十足。宽阔的落地窗设计为客厅带来很好的采光效果,室内更为明亮开朗。

餐厅



吧台



什么和厨房最配?当然是吧台啦,半开放式的厨房和吧台的设计,楼梯口空间充裕,打造吧台靠着窗子,阳光正好,喝杯咖啡、泯两口小酒都是灰常小资的。你也可以把吧台做成能收纳的样式,提升它的使用价值哦!

主卧



主卧:主卧整体色系以灰白色颜色为主题,少量点缀金色线型吊灯,青墨色的木质护墙,配搭浅灰色的床品,营造了比较好的睡眠空间,舒适且惬意,又有着浪漫的意境。


女儿房

厨房是家里不可缺少的部分,随着时代的发展和对生活的需求,厨房设计已经不再局限于某一个单独的空间,而是更讲究生活的仪式感。


次卧:女孩房在粉色调的延续中,增添了一抹灰调与白调作为点缀,于优雅的气息中加入充满活力的因子,更符合成长中的孩童的节奏感,活泼而灵动。




      

扫下方二维码了更多装修方案!




中国-苏州-昆山
全案设计中心:昆山九方城8号楼1704--1710(5A写字楼)
展示体验中心:昆山九方城8号楼1706(5A写字楼)
工程管理中心:玉山镇柏庐北路156号(店面)
本帖评分记录
lvbo 昆币 +1 -来自昆山论坛APP 2024-07-12
123abc交通 昆币 +1 -来自昆山论坛APP 2022-03-06
2条评分昆币+2
爆料有奖!关注昆山论坛抖音号,抖音搜索“昆山论坛”,或搜索抖音号:ksbbs
 
大慈装饰  昆山推荐率85%以上,口碑品牌  热线:0512-57779948/18551100758 地址:昆山市九方城保利地产大楼1704-1710
快速回复
限76 字节
如果您提交过一次失败了,可以用”恢复数据”来恢复帖子内容
 
上一个 下一个