夜间模式
  • 11580阅读
  • 0回复

217㎡复式天逸华庭|现代轻奢风 [复制链接]

上一主题 下一主题
美女离线大慈装饰
级别: 家装商家

发帖
20536
昆币
2376 枚
只看楼主 使用道具 电梯直达
楼主  发表于: 2022-01-02 , 来自:江苏省0==
/

本期案例

/


坐标│江苏·昆山
区域│天逸华庭18#**2室
户型│复式3室2厅1厨3卫
面积│217㎡
风格│现代轻奢


户主介绍

业主崇尚精简与品质,喜欢宽敞明亮的生活环境,对生活的舒适度与时尚感要求很高。

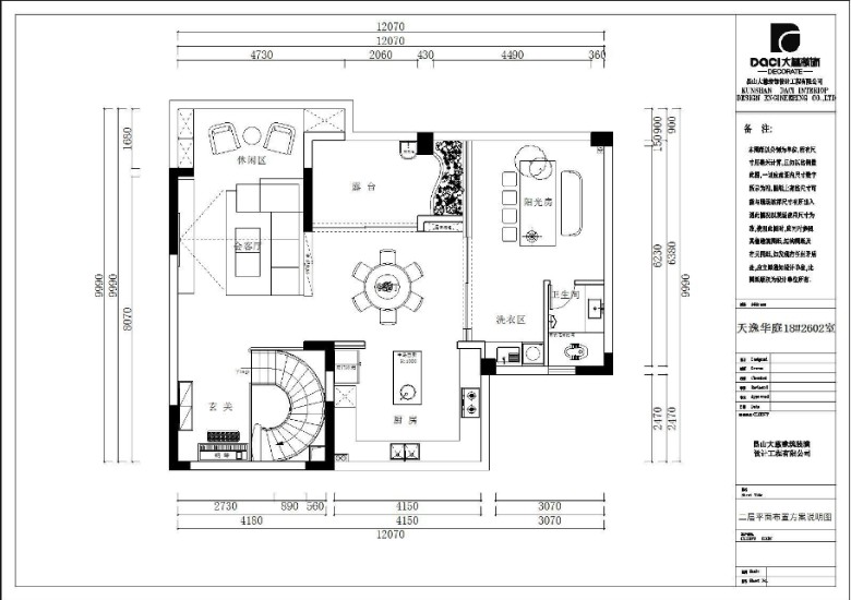
一楼布置图



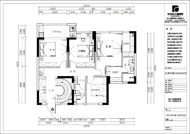
二楼布置图


▲设计图


/

设计师说

因为人口不多,一楼做了三居,极大保证了空间的开阔度;二楼客餐厨书房互通互联,采光满分的同时,更显通透与自由。

门 厅




理想中的高配生活,不必苛求物质的奢靡享受,而是向美好与舒适发力,准备一个刚刚好的休憩区。


客 厅

舒适体验从沙发开始


步入客厅,就被那几张柔软质地的沙发给吸引住了,忙碌了一天,各自瘫在沙发上好好放松,舒适体验从此刻拥有。

电视背景墙

白色大理石背景墙搭配黑色电视,金棕色的储物柜与搭配的造型,更显高级质感。
餐 厅

沐浴阳光,享受美食



餐厅也设计了落地窗,天气晴好时,拉开窗帘就能将阳光请入其中,让用餐时分更具仪式感。

主 卧

无主灯设计

主卧带着一股淡淡的恬静与文气。特意选择无主灯设计,留下了一个单纯静谧的睡眠空间。
  
扫二维码欣赏720全景

  
扫二维码了解更多装修方案!


爆料有奖!关注昆山论坛抖音号,抖音搜索“昆山论坛”,或搜索抖音号:ksbbs
 
大慈装饰  昆山推荐率85%以上,口碑品牌  热线:0512-57779948/18551100758 地址:昆山市九方城保利地产大楼1704-1710
快速回复
限76 字节
如果您提交过一次失败了,可以用”恢复数据”来恢复帖子内容
 
上一个 下一个