夜间模式
  • 12368阅读
  • 0回复

Re:★【大慈装饰】不能落地的全案设计不是好设计 ★ [复制链接]

上一主题 下一主题
美女离线大慈装饰
级别: 家装商家

发帖
20536
昆币
2376 枚
只看楼主 使用道具 电梯直达
楼主  发表于: 2021-12-04 , 来自:江苏省0==

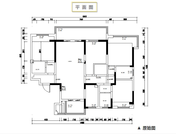
​案例信息丨Case Information

项目地点:江南境秀18#

项目类型:平层

项目性质:全案

项目面积:170㎡

项目风格:现代  

首席设计:高工

设计组:DACI全案组

设计理念
业主是一家三口,热爱健身,空间要求宽敞。所以我们在设计上摒弃繁琐,追求简约。整个空间尽可能满足业主需求,健身器材合理摆放,巧用自然光线。连接客餐厅和阳台,打造一个自由开放的空间,也增加了互动性空间设计上,尽可能选择舒适的材质,考究细节。

玄关
  
扫二维码欣赏720全景
  
想了解更多装修方案扫下方二维码

爆料有奖!关注昆山论坛抖音号,抖音搜索“昆山论坛”,或搜索抖音号:ksbbs
 
大慈装饰  昆山推荐率85%以上,口碑品牌  热线:0512-57779948/18551100758 地址:昆山市九方城保利地产大楼1704-1710
快速回复
限76 字节
如果您提交过一次失败了,可以用”恢复数据”来恢复帖子内容
 
上一个 下一个