夜间模式
  • 9143阅读
  • 2回复

[装修]北欧MUJI  有格调的无电视背景墙设计 [复制链接]

上一主题 下一主题
帅哥离线1918设计
级别: 禁止发声
发帖
9059
昆币
10185 枚
只看楼主 使用道具 电梯直达
楼主  发表于: 2021-03-05 , 来自:江苏省0==
90㎡北欧MUJI格调 打破传统的设计布局

案例信息
Case information

项目 | Project address:昆山#夏桥花园
面积 | Square Meters:90m2
风格 | Style:北欧MUJI无印良品

设计 | Designer:新锐设计师·陈悦
材料 | Material:大板、乳胶漆、免漆板
施工 | Construction unit:昆山壹玖壹捌装饰设计


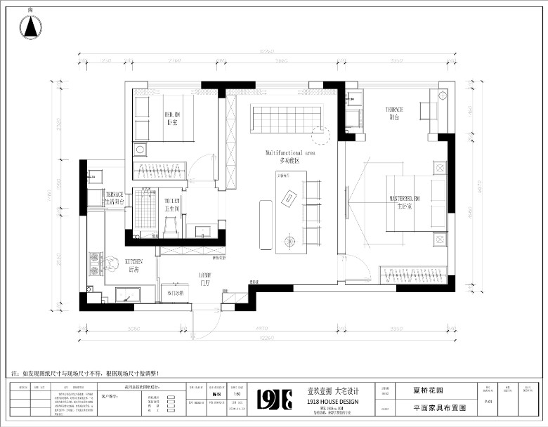
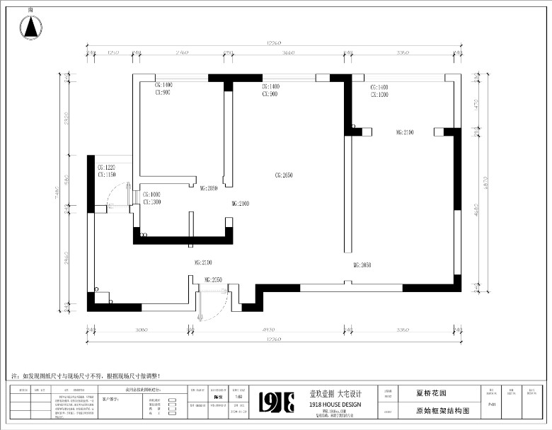
原始结构图&平面布置图
Original Structure Chart&Planar Scheme






房子主人目前一个人居住,父母偶尔会来居住,根据要求做无电视背景墙的北欧MUJI无印良品风;90㎡的空间做两房也不会觉得拥挤。


沙发厅
Sofa Hall




原本的客厅位置,其中一面墙用投影漆做的投影墙,代替传统的电视背景墙,撇去传统的客厅布局思想,原本拥挤的空间瞬间变得开阔!




沙发位置放置一张小茶桌作为茶几的替代,空间节约的同时功能也比较齐全


活动区
Activity area




撇去年轻人不需要的传统搭配,多出来的空间用来打造多功能区域,以MUJI风格进行设计。可以恰好地放入各种收纳用品的壁面收纳。不仅对物品,对收纳空间也实现了模数化,帮助实现更加舒适的家居生活。




多功能区域平时作为工作区域使用,来客人时可作为餐桌使用,用大板打造的实木长桌,不仅逼格十足,位置采光也是十分充足,生活办公两不误!




卧室
Master bedroom



从房间地面的设计精度开始,构成了精确的模数化单元组装方式,由此得以实现整然整洁的空间设计。




阳台采光充足,作为生活办公区再合适不过了。作为现代化的年轻人,这个区域可能就是每天长待的区域。


▲扫码观看全景▼
[attachment=5911123]

本帖评分记录
荣盛门窗 昆币 +1 -来自昆山论坛APP 2021-03-05
1条评分昆币+1
爆料有奖!关注昆山论坛抖音号,抖音搜索“昆山论坛”,或搜索抖音号:ksbbs
 
美女离线荣盛门窗
级别: 禁止发言

发帖
7737
昆币
8552 枚
沙发  发表于: 2021-03-05 , 来自:江苏省0==
用户被禁言,该主题自动屏蔽!
爆料有奖!关注昆山论坛抖音号,抖音搜索“昆山论坛”,或搜索抖音号:ksbbs
 
帅哥离线1918设计
级别: 禁止发声
发帖
9059
昆币
10185 枚
板凳  发表于: 2021-03-06 , 来自:江苏省0==
爆料有奖!关注昆山论坛抖音号,抖音搜索“昆山论坛”,或搜索抖音号:ksbbs
 
快速回复
限76 字节
如果您提交过一次失败了,可以用”恢复数据”来恢复帖子内容
 
上一个 下一个