夜间模式
  • 685763阅读
  • 984回复

【沈院设计五湖四季】小三房也有大幸福 [复制链接]

上一主题 下一主题
美女离线夏未
发帖
702
昆币
779 枚
390楼 发表于: 2021-04-25 , 来自:江苏省0==
今天把瓷砖的尾款交清了,商家根据图纸一块一块数的

爆料有奖!关注昆山论坛抖音号,抖音搜索“昆山论坛”,或搜索抖音号:ksbbs
 
美女离线夏未
发帖
702
昆币
779 枚
391楼 发表于: 2021-04-25 , 来自:江苏省0==
楼上是墙砖和地砖
爆料有奖!关注昆山论坛抖音号,抖音搜索“昆山论坛”,或搜索抖音号:ksbbs
 
离线willingme
发帖
1083
昆币
1236 枚
392楼 发表于: 2021-04-25 , 来自:江苏省0==
棒棒哒,持续关注啦
爆料有奖!关注昆山论坛抖音号,抖音搜索“昆山论坛”,或搜索抖音号:ksbbs
 
离线daisy-q
级别: 昆山新人
发帖
310
昆币
482 枚
393楼 发表于: 2021-04-25 , 来自:江苏省0==
沈院:关于床的尺寸问题,这并不是什么高深的学问。我们平时所说的1.5米/1.8米/2米的床,指的是床垫尺寸,楼上这位同行说的其实是床架尺寸,一般会比床垫宽10厘米-20厘米之间(具体看床的风格根款式)。同理,1350mm宽度同样也能买到合适的床。这一点,我们随意找一家家具经销商他们都 .. (2021-04-25 13:56) 

也许你根本没发现,也许是我多虑了,别的我没有去细看,市面上床有1200/1350/1500/1800/2000的,当然你还可以非标定制,你自己都说这是床垫尺寸,你没发现自己隔墙是1350吗,难道床架不突出来吗?图纸我还没想过,至于工艺实木博古架都可以做,费用到位只要天下有没有办不到的,我只是想说任何设计离不开尺寸以及工程学
爆料有奖!关注昆山论坛抖音号,抖音搜索“昆山论坛”,或搜索抖音号:ksbbs
 
美女离线夏未
发帖
702
昆币
779 枚
394楼 发表于: 2021-04-25 , 来自:江苏省0==
daisy-q:也许你根本没发现,也许是我多虑了,别的我没有去细看,市面上床有1200/1350/1500/1800/2000的,当然你还可以非标定制,你自己都说这是床垫尺寸,你没发现自己隔墙是1350吗,难道床架不突出来吗?图纸我还没想过,至于工艺实木博古架都可以做,费用到位只要天下有没有办不到的, .. (2021-04-25 22:33) 

我找到了这个。
爆料有奖!关注昆山论坛抖音号,抖音搜索“昆山论坛”,或搜索抖音号:ksbbs
 
美女离线夏未
发帖
702
昆币
779 枚
395楼 发表于: 2021-04-25 , 来自:江苏省0==
我可太牛了
爆料有奖!关注昆山论坛抖音号,抖音搜索“昆山论坛”,或搜索抖音号:ksbbs
 
美女离线夏未
发帖
702
昆币
779 枚
396楼 发表于: 2021-04-25 , 来自:江苏省0==
你们两个设计师,难道不知道有无靠背床以及床头定制吗?而且,我2009年就买过1.8米宽床头的床了还是在第六空间买的。非标尺寸我可是特别厉害。我就是想看你俩battle
爆料有奖!关注昆山论坛抖音号,抖音搜索“昆山论坛”,或搜索抖音号:ksbbs
 
离线daisy-q
级别: 昆山新人
发帖
310
昆币
482 枚
397楼 发表于: 2021-04-26 , 来自:江苏省0==
夏未:你们两个设计师,难道不知道有无靠背床以及床头定制吗?而且,我2009年就买过1.8米宽床头的床了还是在第六空间买的。[表情]非标尺寸我可是特别厉害。我就是想看你俩battle (2021-04-25 23:04) 

楼主是个细心以及追求高品质的人,也是偶然看到你的帖子也许标题效应,每个设计师每个人都有擅长的,你不知道任何东西都有误差,店家也注明了,两个卧室床都被柜子顶死,如果没有空隙量一定放不进去,就好比买油烟机尺寸900但实际可能905/895,台盆柜800实际不止800,比如一个女生男生胸围88/94,如果按这个尺寸做衣服肯定穿不进去的,这就是工程学,另外马桶离台盆很近,不知道你了解不,常规台盆柜柜门很可能打不开,另外马桶离台盆只有30厘米左右,洗脸刷牙是否舒服,你自己也找到一张图要有生活经验的设计,设计师不做家务没有家庭很多细节是不知道的,比如橱柜设计如果做调味篮放哪一边都要考虑的,要是碰到17年认识的唐老师,他那性格有可能骂人扔图纸,所以任何设计离不开尺寸和工程学,祝你一切顺利!早日乔迁,发现问题不要紧,关键自己有预案就行!楼主你很棒!给你点赞!
本帖评分记录
故事不是吹牛 昆币 +1 我很赞同 2021-04-26
1条评分昆币+1
爆料有奖!关注昆山论坛抖音号,抖音搜索“昆山论坛”,或搜索抖音号:ksbbs
 
美女离线夏未
发帖
702
昆币
779 枚
398楼 发表于: 2021-04-26 , 来自:江苏省0==
daisy-q:楼主是个细心以及追求高品质的人,也是偶然看到你的帖子也许标题效应,每个设计师每个人都有擅长的,你不知道任何东西都有误差,店家也注明了,两个卧室床都被柜子顶死,如果没有空隙量一定放不进去,就好比买油烟机尺寸900但实际可能905/895,台盆柜800实际不止800,比如一个女 .. (2021-04-26 08:53) 

那张如何找设计师的图是我做的
爆料有奖!关注昆山论坛抖音号,抖音搜索“昆山论坛”,或搜索抖音号:ksbbs
 
美女离线夏未
发帖
702
昆币
779 枚
399楼 发表于: 2021-04-26 , 来自:江苏省0==
daisy-q:楼主是个细心以及追求高品质的人,也是偶然看到你的帖子也许标题效应,每个设计师每个人都有擅长的,你不知道任何东西都有误差,店家也注明了,两个卧室床都被柜子顶死,如果没有空隙量一定放不进去,就好比买油烟机尺寸900但实际可能905/895,台盆柜800实际不止800,比如一个女 .. (2021-04-26 08:53) 

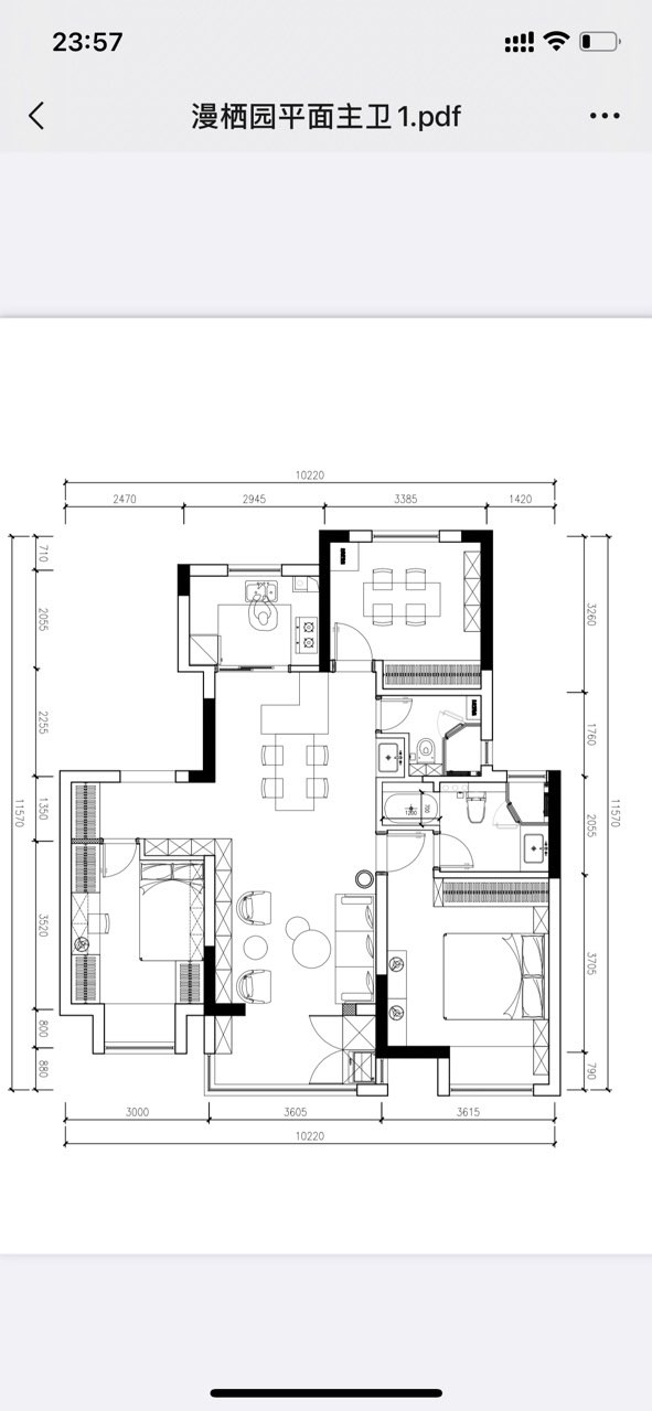
主卫方案改了
爆料有奖!关注昆山论坛抖音号,抖音搜索“昆山论坛”,或搜索抖音号:ksbbs
 
快速回复
限76 字节
如果您在写长篇帖子又不马上发表,建议存为草稿
 
上一个 下一个