夜间模式
  • 726973阅读
  • 984回复

【沈院设计五湖四季】小三房也有大幸福 [复制链接]

上一主题 下一主题
美女离线夏未
发帖
702
昆币
779 枚
260楼 发表于: 2021-04-08 , 来自:江苏省0==
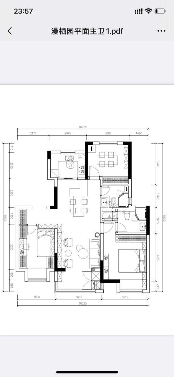
原本我打算在网上采购浴缸,老沈的方案也是根据我的浴缸尺寸定的。但昨天何工(水电)让我问浴缸具体的安装方法,他才好预留水电,我在某宝问,结果客服说不清。
我赶紧问老沈咋整,没想到老沈今天拿出来一张新的针对主卫的布局图(图1)。这个布局可是比之前的布局,让主卫感觉大了不少呀。很开心。
然而,水电何工表示,除了浴缸,主卫其他的水电已经做好了。
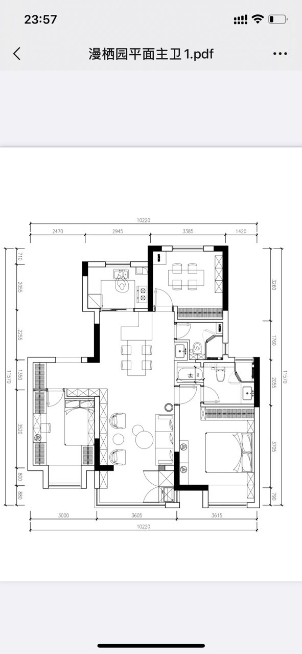
心力交瘁,我只能让老沈和宋工沟通返工的工费了,太贵的话就不改了,还用我原方案(图2)。

爆料有奖!关注昆山论坛抖音号,抖音搜索“昆山论坛”,或搜索抖音号:ksbbs
 
美女离线夏未
发帖
702
昆币
779 枚
261楼 发表于: 2021-04-08 , 来自:江苏省0==
七月海棠红:开槽很工整,做工不错[表情]  (2021-04-07 16:23) 

这次的装修队说实话超出我意料之外。我以为能找到2009年那样水平的装修队就很好了,没想到这次比那次还好。
爆料有奖!关注昆山论坛抖音号,抖音搜索“昆山论坛”,或搜索抖音号:ksbbs
 
美女离线夏未
发帖
702
昆币
779 枚
262楼 发表于: 2021-04-08 , 来自:江苏省0==
刚确认了,用新的主卫方案。这样主卫一下子不拥挤了。
爆料有奖!关注昆山论坛抖音号,抖音搜索“昆山论坛”,或搜索抖音号:ksbbs
 
美女离线夏未
发帖
702
昆币
779 枚
263楼 发表于: 2021-04-08 , 来自:江苏省0==
在横塘的红星美凯龙定了尚高的1.2米浴缸(带龙头),2个壁挂马桶,2个台下盆,2套淋浴器,2套台盆水龙头。





爆料有奖!关注昆山论坛抖音号,抖音搜索“昆山论坛”,或搜索抖音号:ksbbs
 
美女离线夏未
发帖
702
昆币
779 枚
264楼 发表于: 2021-04-08 , 来自:江苏省0==
话说横塘红星美凯龙的尚高蒋阿姨,人很热情。
爆料有奖!关注昆山论坛抖音号,抖音搜索“昆山论坛”,或搜索抖音号:ksbbs
 
美女离线夏未
发帖
702
昆币
779 枚
265楼 发表于: 2021-04-08 , 来自:江苏省0==
好不容易找到的小浴缸。1.2米0.75米,可以做嵌入式。
爆料有奖!关注昆山论坛抖音号,抖音搜索“昆山论坛”,或搜索抖音号:ksbbs
 
美女离线夏未
发帖
702
昆币
779 枚
266楼 发表于: 2021-04-08 , 来自:江苏省0==
话说地暖我又加上了,威能的炉子。感觉宋工快被我变来变去的决定搞疯了。
爆料有奖!关注昆山论坛抖音号,抖音搜索“昆山论坛”,或搜索抖音号:ksbbs
 
帅哥离线沈院
级别: 昆山过客
发帖
11
昆币
11 枚
267楼 发表于: 2021-04-08 , 来自:浙江0==
夏未:话说地暖我又加上了,威能的炉子。感觉宋工快被我变来变去的决定搞疯了。 (2021-04-08 18:14) 

你满意就好
爆料有奖!关注昆山论坛抖音号,抖音搜索“昆山论坛”,或搜索抖音号:ksbbs
 
美女离线夏未
发帖
702
昆币
779 枚
268楼 发表于: 2021-04-08 , 来自:江苏省0==
今天返工了,图是水电何工发来的现场照片。




爆料有奖!关注昆山论坛抖音号,抖音搜索“昆山论坛”,或搜索抖音号:ksbbs
 
帅哥离线今日歇业
级别: 初来乍到
发帖
1
昆币
1 枚
269楼 发表于: 2021-04-08 , 来自:江苏省0==
给邻居点个赞
你这个才是装修 好细致啊
我那边装修就是吓唬闹
爆料有奖!关注昆山论坛抖音号,抖音搜索“昆山论坛”,或搜索抖音号:ksbbs
 
快速回复
限76 字节
如果您提交过一次失败了,可以用”恢复数据”来恢复帖子内容
 
上一个 下一个