夜间模式
  • 664018阅读
  • 778回复

【薇薇家居全案软装】携手云时代,小家开始装修 [复制链接]

上一主题 下一主题
离线cloudevent
发帖
1246
昆币
1553 枚
50楼 发表于: 2020-08-29 , 来自:上海市0==
和装修公司设计师沟通施工交底
爆料有奖!关注昆山论坛抖音号,抖音搜索“昆山论坛”,或搜索抖音号:ksbbs
 
离线cloudevent
发帖
1246
昆币
1553 枚
51楼 发表于: 2020-08-29 , 来自:上海市0==
部分施工要求

爆料有奖!关注昆山论坛抖音号,抖音搜索“昆山论坛”,或搜索抖音号:ksbbs
 
离线willingme
发帖
1083
昆币
1236 枚
52楼 发表于: 2020-08-29 , 来自:江苏省0==
自己不懂的找个监理倒也是不错的(*╰╯`)
爆料有奖!关注昆山论坛抖音号,抖音搜索“昆山论坛”,或搜索抖音号:ksbbs
 
离线cloudevent
发帖
1246
昆币
1553 枚
53楼 发表于: 2020-08-29 , 来自:上海市0==
回 willingme 的帖子
willingme:自己不懂的找个监理倒也是不错的(*╰╯`) (2020-08-29 21:08)

是的,有监理还是不错的。
爆料有奖!关注昆山论坛抖音号,抖音搜索“昆山论坛”,或搜索抖音号:ksbbs
 
离线cloudevent
发帖
1246
昆币
1553 枚
54楼 发表于: 2020-08-29 , 来自:上海市0==
今天进一步了解了云时代。
不说别的,至少装修施工的标准还是很好的。第三方监理的要求,基本上都是他们现行的标准,对监理的要求没有什么异议。
值得赞扬。
爆料有奖!关注昆山论坛抖音号,抖音搜索“昆山论坛”,或搜索抖音号:ksbbs
 
离线cloudevent
发帖
1246
昆币
1553 枚
55楼 发表于: 2020-08-30 , 来自:上海市0==
今天收到了监理的报告,房子的整体情况还是很不错的,就只有几个小地方有些空鼓。看来开发商还是不错的。
爆料有奖!关注昆山论坛抖音号,抖音搜索“昆山论坛”,或搜索抖音号:ksbbs
 
离线cloudevent
发帖
1246
昆币
1553 枚
56楼 发表于: 2020-08-30 , 来自:上海市0==

北边房间的面积小,不到6平方。
这个房间的方案还在讨论之中,设计师给了三个方案。还在消化和讨论中。
爆料有奖!关注昆山论坛抖音号,抖音搜索“昆山论坛”,或搜索抖音号:ksbbs
 
离线cloudevent
发帖
1246
昆币
1553 枚
57楼 发表于: 2020-08-30 , 来自:上海市0==
方案二



爆料有奖!关注昆山论坛抖音号,抖音搜索“昆山论坛”,或搜索抖音号:ksbbs
 
离线cloudevent
发帖
1246
昆币
1553 枚
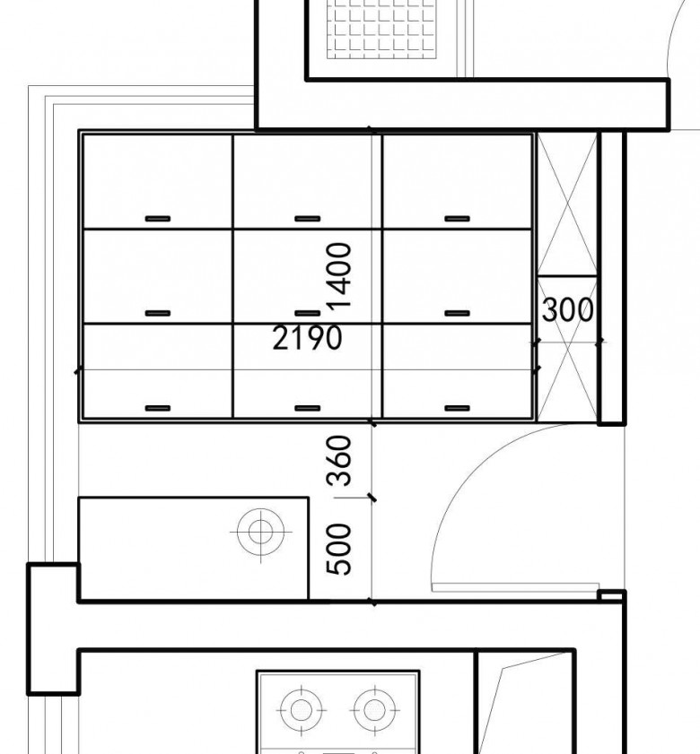
58楼 发表于: 2020-08-30 , 来自:上海市0==
方案三
爆料有奖!关注昆山论坛抖音号,抖音搜索“昆山论坛”,或搜索抖音号:ksbbs
 
离线cloudevent
发帖
1246
昆币
1553 枚
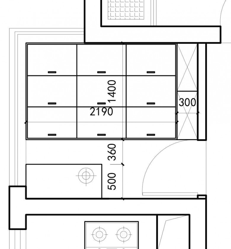
59楼 发表于: 2020-08-30 , 来自:上海市0==
方案三
爆料有奖!关注昆山论坛抖音号,抖音搜索“昆山论坛”,或搜索抖音号:ksbbs
 
快速回复
限76 字节
批量上传需要先选择文件,再选择上传
 
上一个 下一个