夜间模式
打赏中心
每日签到
幸运转盘
论坛帮助
活动聚焦
手机客户端
道具中心
商家认证
勋章中心
诚信认证
快捷通道
关闭
您还没有登录,快捷通道只有在登录后才能使用。
立即登录
还没有帐号? 赶紧
注册一个
论坛首页
论坛导航
商家
招聘
装修
昆山优选
小红娘
分类信息
二手房
昆山视窗
登录
注册
找回密码
帖子
用户
版块
帖子
搜索
论坛首页
>
论坛导航
>
酸甜苦辣话装修
>
【薇薇家居全案软装】装修话辛酸,说说自家装修的那些事
发帖
回复
返回列表
上一页
1...
70
71
72
73
74
...86
下一页
到第
页
确认
新帖
358748
阅读
859
回复
【薇薇家居全案软装】装修话辛酸,说说自家装修的那些事
[复制链接]
扫描到手机
论坛小编教你如何扫二维码
上一主题
下一主题
美女离线
小妹妹j
UID:774917
注册时间
2017-03-02
最后登录
2022-12-24
发帖
1111
搜Ta的帖子
精华
0
昆币
1796
访问TA的空间
加好友
用道具
级别:
昆山普通市民
发帖
1111
昆币
1796 枚
加关注
发消息
只看该作者
710楼
发表于: 2020-12-31
,
来自:江苏省
0==
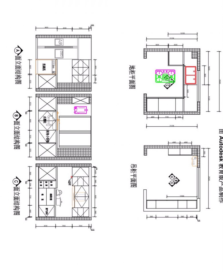
北边次卧衣柜
内容来自 iPhone 手机客户端
本帖评分记录
共
条评分
爆料有奖!关注昆山论坛抖音号,抖音搜索“昆山论坛”,或搜索抖音号:ksbbs
引用
举报
美女离线
小妹妹j
UID:774917
注册时间
2017-03-02
最后登录
2022-12-24
发帖
1111
搜Ta的帖子
精华
0
昆币
1796
访问TA的空间
加好友
用道具
级别:
昆山普通市民
发帖
1111
昆币
1796 枚
加关注
发消息
只看该作者
711楼
发表于: 2020-12-31
,
来自:江苏省
0==
衣柜的结构全是我想的
内容来自 iPhone 手机客户端
本帖评分记录
共
条评分
爆料有奖!关注昆山论坛抖音号,抖音搜索“昆山论坛”,或搜索抖音号:ksbbs
引用
举报
美女离线
小妹妹j
UID:774917
注册时间
2017-03-02
最后登录
2022-12-24
发帖
1111
搜Ta的帖子
精华
0
昆币
1796
访问TA的空间
加好友
用道具
级别:
昆山普通市民
发帖
1111
昆币
1796 枚
加关注
发消息
只看该作者
712楼
发表于: 2020-12-31
,
来自:江苏省
0==
4门的衣柜北边
内容来自 iPhone 手机客户端
本帖评分记录
共
条评分
爆料有奖!关注昆山论坛抖音号,抖音搜索“昆山论坛”,或搜索抖音号:ksbbs
引用
举报
美女离线
小妹妹j
UID:774917
注册时间
2017-03-02
最后登录
2022-12-24
发帖
1111
搜Ta的帖子
精华
0
昆币
1796
访问TA的空间
加好友
用道具
级别:
昆山普通市民
发帖
1111
昆币
1796 枚
加关注
发消息
只看该作者
713楼
发表于: 2020-12-31
,
来自:江苏省
0==
厨房
内容来自 iPhone 手机客户端
本帖评分记录
共
条评分
爆料有奖!关注昆山论坛抖音号,抖音搜索“昆山论坛”,或搜索抖音号:ksbbs
引用
举报
美女离线
小妹妹j
UID:774917
注册时间
2017-03-02
最后登录
2022-12-24
发帖
1111
搜Ta的帖子
精华
0
昆币
1796
访问TA的空间
加好友
用道具
级别:
昆山普通市民
发帖
1111
昆币
1796 枚
加关注
发消息
只看该作者
714楼
发表于: 2020-12-31
,
来自:江苏省
0==
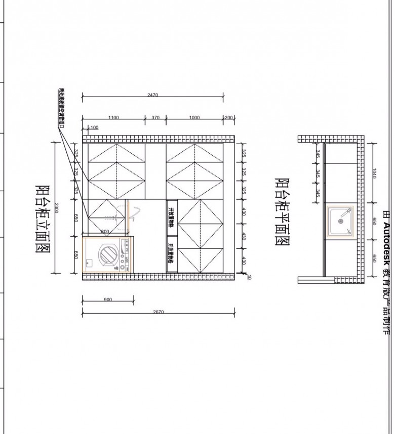
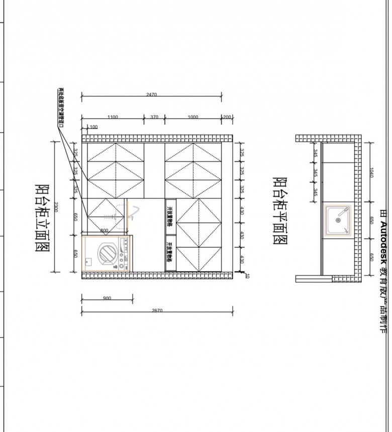
阳台的柜子
内容来自 iPhone 手机客户端
本帖评分记录
共
条评分
爆料有奖!关注昆山论坛抖音号,抖音搜索“昆山论坛”,或搜索抖音号:ksbbs
引用
举报
美女离线
小妹妹j
UID:774917
注册时间
2017-03-02
最后登录
2022-12-24
发帖
1111
搜Ta的帖子
精华
0
昆币
1796
访问TA的空间
加好友
用道具
级别:
昆山普通市民
发帖
1111
昆币
1796 枚
加关注
发消息
只看该作者
715楼
发表于: 2020-12-31
,
来自:江苏省
0==
阳台蛮大的柜子
内容来自 iPhone 手机客户端
本帖评分记录
共
条评分
爆料有奖!关注昆山论坛抖音号,抖音搜索“昆山论坛”,或搜索抖音号:ksbbs
引用
举报
美女离线
小妹妹j
UID:774917
注册时间
2017-03-02
最后登录
2022-12-24
发帖
1111
搜Ta的帖子
精华
0
昆币
1796
访问TA的空间
加好友
用道具
级别:
昆山普通市民
发帖
1111
昆币
1796 枚
加关注
发消息
只看该作者
716楼
发表于: 2020-12-31
,
来自:江苏省
0==
4个衣柜,一个鞋柜,一个餐边柜、一个书柜,一个阳台柜
内容来自 iPhone 手机客户端
本帖评分记录
共
条评分
爆料有奖!关注昆山论坛抖音号,抖音搜索“昆山论坛”,或搜索抖音号:ksbbs
引用
举报
美女离线
小妹妹j
UID:774917
注册时间
2017-03-02
最后登录
2022-12-24
发帖
1111
搜Ta的帖子
精华
0
昆币
1796
访问TA的空间
加好友
用道具
级别:
昆山普通市民
发帖
1111
昆币
1796 枚
加关注
发消息
只看该作者
717楼
发表于: 2020-12-31
,
来自:江苏省
0==
全是我一个人想的,因为装修以来我最在乎的就是柜子的收纳,所以看了很多关于柜子的结构图
内容来自 iPhone 手机客户端
本帖评分记录
共
条评分
爆料有奖!关注昆山论坛抖音号,抖音搜索“昆山论坛”,或搜索抖音号:ksbbs
引用
举报
美女离线
小妹妹j
UID:774917
注册时间
2017-03-02
最后登录
2022-12-24
发帖
1111
搜Ta的帖子
精华
0
昆币
1796
访问TA的空间
加好友
用道具
级别:
昆山普通市民
发帖
1111
昆币
1796 枚
加关注
发消息
只看该作者
718楼
发表于: 2020-12-31
,
来自:江苏省
0==
大家看过我前面发的那些参考图就知道,我自己认真的画了很久图,尺寸都是根据我自己惯来画的。
内容来自 iPhone 手机客户端
本帖评分记录
共
条评分
爆料有奖!关注昆山论坛抖音号,抖音搜索“昆山论坛”,或搜索抖音号:ksbbs
引用
举报
美女离线
小妹妹j
UID:774917
注册时间
2017-03-02
最后登录
2022-12-24
发帖
1111
搜Ta的帖子
精华
0
昆币
1796
访问TA的空间
加好友
用道具
级别:
昆山普通市民
发帖
1111
昆币
1796 枚
加关注
发消息
只看该作者
719楼
发表于: 2020-12-31
,
来自:江苏省
0==
衣柜能多挂衣服就尽量挂起来,尽量不要叠衣服
内容来自 iPhone 手机客户端
本帖评分记录
willingme
昆币
+1
-来自
昆山论坛APP
2020-12-31
共
1
条评分
,
昆币
+1
爆料有奖!关注昆山论坛抖音号,抖音搜索“昆山论坛”,或搜索抖音号:ksbbs
引用
举报
发帖
回复
返回列表
上一页
1...
70
71
72
73
74
...86
下一页
到第
页
确认
https://bbs.kshot.com
访问内容超出本站范围,不能确定是否安全
继续访问
取消访问
快速回复
限76 字节
如果您提交过一次失败了,可以用”恢复数据”来恢复帖子内容
您目前还是游客,请
登录
或
注册
进入高级模式
文字颜色
发 布
回复后跳转到最后一页
上一个
下一个
隐藏
快速跳转
社会民生
聚焦昆山
立法直通车
昆山分类信息
昆山市教育局
昆山公交集团
昆山市交通运输局
消费维权
美丽昆山
昆山百事通
文明昆山
全民反诈
城市生活
玉山广场
昆友圈
走遍天下
昆山招聘
KBS车友会
昆山体育
房产装修
房产大家谈
房产租售
酸甜苦辣话装修
生活资讯
家有儿女
美食天地
花草宠物
交友婚恋
闲花文字
数码摄影
认证商家
论坛商家
昆山商情
社区站务
论坛事务
删帖声明
关闭
关闭
选中
1
篇
全选
喜欢就打赏个小红包吧
请选择打赏金额
1元
5元
10元
30元
100元
200元
您是游客,登陆后可以使用赏金钱包
赏金钱包支付
微信扫码支付
赏
我要提现
用微信扫描二维码完成支付
电话:0512-57993030
工作日 8:30-17:00在线
广告热线:18012662666
紧急联系:18888186330