夜间模式
  • 221815阅读
  • 129回复

装修就要踏踏实实走好每一步,期待新家的模样! [复制链接]

上一主题 下一主题
离线ksrlty
级别: 昆山新人
发帖
142
昆币
189 枚
10楼 发表于: 2019-07-23 , 来自:江苏省0==


华为•海令 智能家居 5G开启您的智慧生活新体验
欢迎各位业主 地产酒店工程商 装修装饰渠道商 体验
体验厅地址:昆山市建筑设计院
                        祖冲之南路1666号清华科技园11栋



爆料有奖!关注昆山论坛抖音号,抖音搜索“昆山论坛”,或搜索抖音号:ksbbs
 
帅哥离线lu811001
发帖
531
昆币
399 枚
11楼 发表于: 2019-07-23 , 来自:江苏省0==
叶子环保除甲醛
爆料有奖!关注昆山论坛抖音号,抖音搜索“昆山论坛”,或搜索抖音号:ksbbs
 
帅哥离线印象水仙设计
级别: 家装商家
发帖
11315
昆币
19371 枚
12楼 发表于: 2019-07-24 , 来自:江苏省0==
wenshi641:今天来更新更新,聊聊家里的装修,我没想到自己一开帖子能有这么多朋友支持,感谢感谢。开工当天我们到房子里之前,师傅就把家里的地面、门保护已经做好,不得不说好感不错;
[图片]
....... (2019-07-23 10:28) 

今天继续啊,师傅热的把衣服都脱了,不过还是为辛苦的师傅点赞!
本帖评分记录
wenshi641 昆币 +1 -来自昆山论坛APP 2019-07-25
1条评分昆币+1
爆料有奖!关注昆山论坛抖音号,抖音搜索“昆山论坛”,或搜索抖音号:ksbbs
 
离线wenshi641
级别: 昆山新人
发帖
370
昆币
473 枚
13楼 发表于: 2019-07-25 , 来自:江苏省0==
印象水仙设计:今天继续啊,师傅热的把衣服都脱了[表情],不过还是为辛苦的师傅点赞!
[图片] (2019-07-24 10:37) 

哈哈 给力
爆料有奖!关注昆山论坛抖音号,抖音搜索“昆山论坛”,或搜索抖音号:ksbbs
 
离线wenshi641
级别: 昆山新人
发帖
370
昆币
473 枚
14楼 发表于: 2019-07-25 , 来自:江苏省0==
老板娘朱朱在工地专业指挥

老板金钟带头跟工人讨论工艺

群里聊家里装修事宜不间断更新

感谢大热天,你们对我们家的支持,没有看错人!




爆料有奖!关注昆山论坛抖音号,抖音搜索“昆山论坛”,或搜索抖音号:ksbbs
 
离线小团长
级别: 昆山新人
发帖
201
昆币
249 枚
15楼 发表于: 2019-07-27 , 来自:江苏省0==
wenshi641:老板娘朱朱在工地专业指挥
老板金钟带头跟工人讨论工艺
群里聊家里装修事宜不间断更新
....... (2019-07-25 16:17) 

这才是负责人该有的样子
爆料有奖!关注昆山论坛抖音号,抖音搜索“昆山论坛”,或搜索抖音号:ksbbs
 
离线激情上演
级别: 昆山新人
发帖
202
昆币
413 枚
16楼 发表于: 2019-07-28 , 来自:江苏省0==
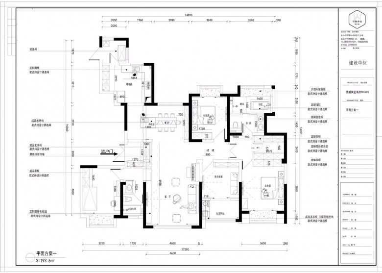
楼主 你们家户型图发出来看看
本帖评分记录
wenshi641 昆币 +1 -来自昆山论坛APP 2019-07-29
1条评分昆币+1
爆料有奖!关注昆山论坛抖音号,抖音搜索“昆山论坛”,或搜索抖音号:ksbbs
 
离线wenshi641
级别: 昆山新人
发帖
370
昆币
473 枚
17楼 发表于: 2019-07-29 , 来自:江苏省0==
激情上演:楼主 你们家户型图发出来看看 (2019-07-28 14:38) 

问的好,正想补发,邻居们看过来,我们家平面可是我花半个月的时间跟设计师沟通的。

爆料有奖!关注昆山论坛抖音号,抖音搜索“昆山论坛”,或搜索抖音号:ksbbs
 
离线wenshi641
级别: 昆山新人
发帖
370
昆币
473 枚
18楼 发表于: 2019-07-30 , 来自:江苏省0==
趁我有空的时候,多来更新更新,这是明智的。

朱朱视察工地,发来工地照,辛苦各位师傅们了。



爆料有奖!关注昆山论坛抖音号,抖音搜索“昆山论坛”,或搜索抖音号:ksbbs
 
离线想两按
级别: 昆山新人
发帖
208
昆币
280 枚
19楼 发表于: 2019-07-31 , 来自:江苏省0==
wenshi641:老板娘朱朱在工地专业指挥
老板金钟带头跟工人讨论工艺
群里聊家里装修事宜不间断更新
....... (2019-07-25 16:17) 

本职工作要做好!
爆料有奖!关注昆山论坛抖音号,抖音搜索“昆山论坛”,或搜索抖音号:ksbbs
 
快速回复
限76 字节
如果您提交过一次失败了,可以用”恢复数据”来恢复帖子内容
 
上一个 下一个