夜间模式
  • 82435阅读
  • 32回复

与大慈的修仙路——从小白到大仙 [复制链接]

上一主题 下一主题
帅哥离线百晓声
级别: 昆山过客
发帖
51
昆币
295 枚
只看楼主 使用道具 电梯直达
楼主  发表于: 2019-06-18 , 来自:上海市0==
家装日记
小区: 花桥裕花园
套内面积: 85 (平米)
预算: 10 万
开工日期: 2019-06-22
装修风格: 简约
装修方式: 全包
装修公司: 大慈装饰
开篇:从家装小白,逐渐通过网络、朋友、同事、装修设计师的经验传授,慢慢逆袭为装修大仙,在此开帖,以作纪念。
本帖评分记录
中行装修贷 昆币 +1 -来自昆山论坛APP 2019-06-28
昆山封阳台 昆币 +1 -来自昆山论坛APP 2019-06-19
爱丁伯格家具 昆币 +1 -来自昆山论坛APP 2019-06-19
昆山伟宏门窗 昆币 +1 - 2019-06-18
百晓声 昆币 +1 -来自昆山论坛APP 2019-06-18
5条评分昆币+5
爆料有奖!关注昆山论坛抖音号,抖音搜索“昆山论坛”,或搜索抖音号:ksbbs
 
帅哥离线百晓声
级别: 昆山过客
发帖
51
昆币
295 枚
沙发  发表于: 2019-06-18 , 来自:上海市0==
      引子:装修毁健康,装修闹离婚,装修跑断腿,装修愁白发,装修加项套路多等等弥漫着网络。因此装修路漫漫,不亚于修仙之路,历经门派(装修公司风格)的选折,水电劫,瓦木漆劫,电器家具劫等等才能修成正果。装修没有后悔药,最好先吃点核桃补补脑,磕着瓜子看我的装修日记,幸灾乐祸其他家的失败案例……

      修行之道,始于门派选折。得益于房地产的发达,装修公司如雨后春笋一般冒出来。但在昆山这个江湖中,朗通是老牌扛霸子,早期装修利润可观,亲戚伙计们纷纷出来单干。所以现在装修公司的报价看起来就像一个师傅教出来的。在这些新装修公司中,大慈是后来居上的一匹黑马。早期我的第一选折就是朗通,只可惜缘分没到,自己在某些材料型号选折上比较偏执,但自己的选折,跪着也得走完。为什么大慈逆袭了,在这先卖一个关子。
[ 此帖被百晓声在2019-06-18 16:37重新编辑 ]
本帖评分记录
百晓声 昆币 +1 -来自昆山论坛APP 2019-06-18
1条评分昆币+1
爆料有奖!关注昆山论坛抖音号,抖音搜索“昆山论坛”,或搜索抖音号:ksbbs
 
帅哥离线百晓声
级别: 昆山过客
发帖
51
昆币
295 枚
板凳  发表于: 2019-06-18 , 来自:上海市0==
废话不多说,来几张装修思维导图扫扫盲
本帖评分记录
百晓声 昆币 +1 -来自昆山论坛APP 2019-06-18
1条评分昆币+1
爆料有奖!关注昆山论坛抖音号,抖音搜索“昆山论坛”,或搜索抖音号:ksbbs
 
帅哥离线百晓声
级别: 昆山过客
发帖
51
昆币
295 枚
地板  发表于: 2019-06-18 , 来自:上海市0==
装修方式篇:整装、全包、半包、清包

内容
设计
主材
辅材
施工
软装
家电
优点
缺点
注意事项
1
整装

省事,匹配度高

套餐产品种类品质有限制

识别套餐是否适合自己
2
全包



省心

报价单猫腻多

选口碑好信誉高靠谱的装修公司
3
半包





主材更经济变化更灵活

花时间挑选材料

做好功课,识别材料
4
清包






主动权大

耗费心力

确认自己的装修经验够用


首选全包,省时省心省力。初看价格高点,但选一家靠谱全包公司最终也相差无几。居于向下兼容,建议先从全包开始,时间充裕可以半包。
[ 此帖被百晓声在2019-06-18 16:38重新编辑 ]
本帖评分记录
百晓声 昆币 +1 -来自昆山论坛APP 2019-06-18
1条评分昆币+1
爆料有奖!关注昆山论坛抖音号,抖音搜索“昆山论坛”,或搜索抖音号:ksbbs
 
帅哥离线百晓声
级别: 昆山过客
发帖
51
昆币
295 枚
4楼 发表于: 2019-06-18 , 来自:上海市0==
装修公司选折篇:

看工地
/
查口碑
/



报价

对比报价
/
记录优势布局材料
③获得设计师权限底价④统一布局
材料方案
/
选二竞价
⑤对比报价
/
获得店长特批
⑥签订效果图纸合同
|
3K
⑦确认效果图和最终报价
⑧签订装修工程合同

③报价单价和人工费都是公司规定的数值,设计师改不了,设计师的权限可以减少设计费管理费,最多再给你些赠品,当然在数量可以适当扣除点,比如柜子多了,少点地板和油漆。
⑤店长或主管有更多的权限,当他们觉得这单买卖符合利润(比如≥1K每平),且你要和竞争对手签单了,会给你一个底价;
⑥别着急签工程合同,先付3K买个效果和施工图纸,如果合适3K抵工程款,不合适就当付3K买个图纸,回头用这图纸找个靠谱的施工队也肯定划算。


看到这里,可能很多装修老板会很崩溃,净暴露潜规则,这让我们怎么活了。没办法呀,主要是有些装修公司太狡猾了,买个房已经不容易,装修不想凑合又想能省钱,唉!穷是硬伤,土豪忽略!



本帖评分记录
百晓声 昆币 +1 -来自昆山论坛APP 2019-06-18
1条评分昆币+1
爆料有奖!关注昆山论坛抖音号,抖音搜索“昆山论坛”,或搜索抖音号:ksbbs
 
帅哥离线百晓声
级别: 昆山过客
发帖
51
昆币
295 枚
5楼 发表于: 2019-06-18 , 来自:上海市0==
好了,现在揭露我为什么选大慈了,主要是大慈美女总裁胡总很给力,特批了个终极修仙价,让我这个被汽车行业耽误的装修大仙好好修行,当个客座长老,介绍修士加入大慈门派,直通修仙价。加我微信:LZHOU63  备注:修仙,成功了咱们平分修行资源。当然想加入朗通门派也行,俞总也被我圈粉了。
本帖评分记录
百晓声 昆币 +1 -来自昆山论坛APP 2019-06-18
1条评分昆币+1
爆料有奖!关注昆山论坛抖音号,抖音搜索“昆山论坛”,或搜索抖音号:ksbbs
 
帅哥离线百晓声
级别: 昆山过客
发帖
51
昆币
295 枚
6楼 发表于: 2019-06-18 , 来自:上海市0==
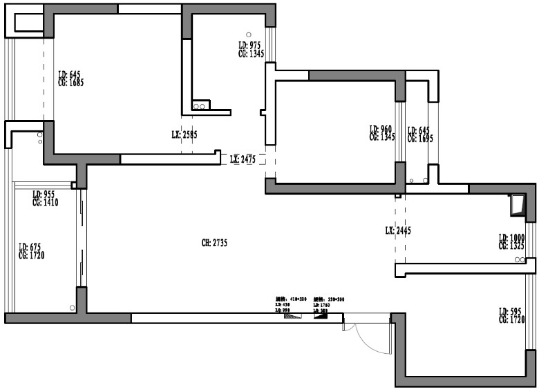
按照惯例,先传下图纸



本帖评分记录
百晓声 昆币 +1 -来自昆山论坛APP 2019-06-18
1条评分昆币+1
爆料有奖!关注昆山论坛抖音号,抖音搜索“昆山论坛”,或搜索抖音号:ksbbs
 
帅哥离线百晓声
级别: 昆山过客
发帖
51
昆币
295 枚
7楼 发表于: 2019-06-18 , 来自:上海市0==
第一次效果3D图
https://[url][urlend6]/t/9dvknefhz1b?from=singlemessage&isappinstalled=0
本帖评分记录
jims 昆币 +1 -来自昆山论坛APP 2019-06-19
百晓声 昆币 +1 -来自昆山论坛APP 2019-06-18
2条评分昆币+2
爆料有奖!关注昆山论坛抖音号,抖音搜索“昆山论坛”,或搜索抖音号:ksbbs
 
帅哥离线百晓声
级别: 昆山过客
发帖
51
昆币
295 枚
8楼 发表于: 2019-06-18 , 来自:上海市0==
6.22开工,目前蹭6.18在京东买电器着……
本帖评分记录
百晓声 昆币 +1 -来自昆山论坛APP 2019-06-18
1条评分昆币+1
爆料有奖!关注昆山论坛抖音号,抖音搜索“昆山论坛”,或搜索抖音号:ksbbs
 
离线朗通装饰
级别: 家装商家

发帖
17088
昆币
14403 枚
9楼 发表于: 2019-06-18 , 来自:江苏省0==
回 百晓声 的帖子
百晓声:      引子:装修毁健康,装修闹离婚,装修跑断腿,装修愁白发,装修加项套路多等等弥漫着网络。因此装修路漫漫,不亚于修仙之路,历经门派(装修公司风格)的选折,水电劫,瓦木漆劫,电器家具劫等等才能修成正果。装修没有后悔药,最好先吃点核桃补 .. (2019-06-18 16:25)

感谢楼主第一时间选择信任朗通装饰,虽然最后没有合作成功。后续楼主装修有什么问题还可以继续咨询我们。
朗通会一直关注您的帖子,楼主后续多上传美图哦
爆料有奖!关注昆山论坛抖音号,抖音搜索“昆山论坛”,或搜索抖音号:ksbbs
 
快速回复
限76 字节
如果您提交过一次失败了,可以用”恢复数据”来恢复帖子内容
 
上一个 下一个