夜间模式
  • 356495阅读
  • 286回复

【1918设计】140平小复式,依旧简约日式、原木色的家 [复制链接]

上一主题 下一主题
美女离线7号傀儡师
级别: 昆山新人
发帖
151
昆币
324 枚
90楼 发表于: 2019-06-10 , 来自:上海市0==
周末准备去看看上海有一家浴室地垫实体施工店家
然后去nitori看看桌子和沙发
再去实地看看地板
我头晕眼花
[ 此帖被7号傀儡师在2019-06-10 17:06重新编辑 ]
爆料有奖!关注昆山论坛抖音号,抖音搜索“昆山论坛”,或搜索抖音号:ksbbs
 
美女离线7号傀儡师
级别: 昆山新人
发帖
151
昆币
324 枚
91楼 发表于: 2019-06-10 , 来自:上海市0==
前段时间朋友介绍的(她买过)X宝卖日本建材的,去他仓库看了下,东西蛮多的,
但是很多都是包起来看不到样貌,只能先拍个型号回去研究下


这是我们确定要的门和浴室整体镜


最后折叠门确定要三协的了
和KYY的比较:
1是没有排风口
2是门相对窄一点
3价格少个几百







[ 此帖被7号傀儡师在2019-06-10 17:14重新编辑 ]
爆料有奖!关注昆山论坛抖音号,抖音搜索“昆山论坛”,或搜索抖音号:ksbbs
 
美女离线7号傀儡师
级别: 昆山新人
发帖
151
昆币
324 枚
92楼 发表于: 2019-06-10 , 来自:上海市0==
前面和1918讨论了隔音棉的做法
因为我们要刷硅藻泥
所以成品棉墙就不能用了
正好他们之前做过,好像还不错

(这是许工发的案例)

爆料有奖!关注昆山论坛抖音号,抖音搜索“昆山论坛”,或搜索抖音号:ksbbs
 
美女离线7号傀儡师
级别: 昆山新人
发帖
151
昆币
324 枚
93楼 发表于: 2019-06-10 , 来自:上海市0==
说到隔音棉。。。忽然想起来忘记贴,上上次家博会就定好的
四国化成的硅藻泥


因为少爷抽烟,它能吸味吸音防火,肌理质感也很喜欢,就定下来了

我的房间要了一个粉粉的(现场照片有色差)



爆料有奖!关注昆山论坛抖音号,抖音搜索“昆山论坛”,或搜索抖音号:ksbbs
 
美女离线7号傀儡师
级别: 昆山新人
发帖
151
昆币
324 枚
94楼 发表于: 2019-06-10 , 来自:上海市0==
前面整理建材照片,竟然发现宜家一款只有27cm深的洗手柜
还自带储物空间,那就可以替代之前那款日本洗手池啦
毕竟多储物空间肯定是更好的!

而且好像之前那款只有洗手槽的款要埋墙官道
这个只要在柜子里面走管道就可以被遮挡住了
棒!

安装后尺寸
宽度: 62 厘米
洗脸池柜宽度: 60 厘米
深度: 27 厘米
高度: 88 厘米






[ 此帖被7号傀儡师在2019-06-10 18:24重新编辑 ]
爆料有奖!关注昆山论坛抖音号,抖音搜索“昆山论坛”,或搜索抖音号:ksbbs
 
美女离线7号傀儡师
级别: 昆山新人
发帖
151
昆币
324 枚
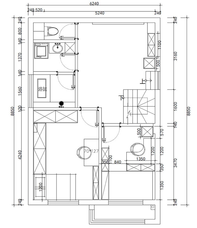
95楼 发表于: 2019-06-10 , 来自:上海市0==
来了来了
2楼定稿图
少爷终于纠结好了

这样卫浴恢复了宽敞的空间
少爷房间做榻榻米地台当床
影音室也宽敞了

一些定下来的家具都是按照实际尺寸来改图的
所以才磨合了这么久,辛苦小刘设计了




爆料有奖!关注昆山论坛抖音号,抖音搜索“昆山论坛”,或搜索抖音号:ksbbs
 
离线大地
发帖
4303
昆币
6092 枚
96楼 发表于: 2019-06-11 , 来自:江苏省0==
想问下,二楼卫生间改位置

下水管怎么改造走法?
爆料有奖!关注昆山论坛抖音号,抖音搜索“昆山论坛”,或搜索抖音号:ksbbs
 
离线Edwin9903
发帖
1332
昆币
1485 枚
97楼 发表于: 2019-06-11 , 来自:江苏省0==
爆料有奖!关注昆山论坛抖音号,抖音搜索“昆山论坛”,或搜索抖音号:ksbbs
 
离线Edwin9903
发帖
1332
昆币
1485 枚
98楼 发表于: 2019-06-11 , 来自:江苏省0==
好细致专业
爆料有奖!关注昆山论坛抖音号,抖音搜索“昆山论坛”,或搜索抖音号:ksbbs
 
美女离线7号傀儡师
级别: 昆山新人
发帖
151
昆币
324 枚
99楼 发表于: 2019-06-11 , 来自:上海市0==
回 大地 的帖子
大地:想问下,二楼卫生间改位置
下水管怎么改造走法? (2019-06-11 08:57)

不难的,我们上一套房子也是改了马桶位置,就是接个管道
这个慢点开始动工的时候详细拍照吧
爆料有奖!关注昆山论坛抖音号,抖音搜索“昆山论坛”,或搜索抖音号:ksbbs
 
快速回复
限76 字节
如果您在写长篇帖子又不马上发表,建议存为草稿
 
上一个 下一个