夜间模式
  • 184749阅读
  • 623回复

【寅盛杯装修日记大赛】我的北欧混搭,感觉自己棒棒的 [复制链接]

上一主题 下一主题
美女离线也许有一天mm
发帖
3225
昆币
3959 枚
90楼 发表于: 2019-03-26 , 来自:江苏省0==
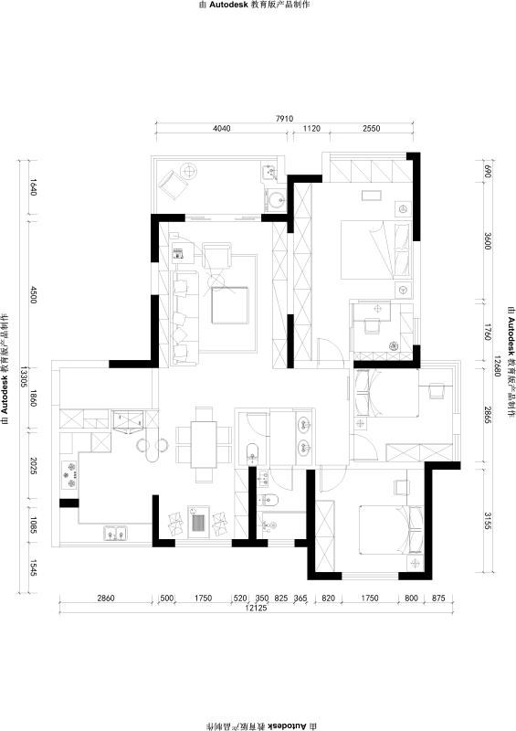
3/10,华庭看简易版效果图,水位,插座,开关,灯源确认。初版,带确认

爆料有奖!关注昆山论坛抖音号,抖音搜索“昆山论坛”,或搜索抖音号:ksbbs
 
帅哥离线ks家装小机灵
发帖
2108
昆币
2363 枚
91楼 发表于: 2019-03-26 , 来自:江苏省0==
爆料有奖!关注昆山论坛抖音号,抖音搜索“昆山论坛”,或搜索抖音号:ksbbs
 
帅哥离线ks家装小机灵
发帖
2108
昆币
2363 枚
92楼 发表于: 2019-03-26 , 来自:江苏省0==
挺详细的~
爆料有奖!关注昆山论坛抖音号,抖音搜索“昆山论坛”,或搜索抖音号:ksbbs
 
美女离线也许有一天mm
发帖
3225
昆币
3959 枚
93楼 发表于: 2019-03-26 , 来自:江苏省0==
关于插座的补充:
1厨房水槽底下 建议预留3个五孔插,净水器、垃圾处理器、备用。万一哪天想提升幸福感呢。
2.冰箱单独拉一路线。
3.烤箱蒸箱单独拉一路线,4平。
4.厨房小家电众多,台面上要分段配插座,避开灶头和计划挂杆的位置。规划好各小家电的摆放位置,结合使用惯,预留插座。(洗碗机,电饭煲不能放在橱柜下面,微波炉,面包机,多士炉,榨汁机,小烤箱(若未装大烤箱),电水壶)
5.每个卫生间和阳台水,若非循环水,最好装个小厨宝,留插座,插座位置不要正对下水,或左或右偏开。
6.每个马桶边预留插座,买带防水盖那种。
7.卫生间镜边至少留2~3个插座,什么充电牙刷,电吹风都是要充电,电热毛巾架。
8.写字桌建议桌面以上高度预留两个高位插座,桌脚离地30公分预留两个低位插座。
9.每个房间窗台下和进门电视机柜无遮挡区域应各备一个插座,夏天电吹风,冬天加湿器,还有有线吸尘器都会用到,要考虑多个角度。这个很重要,电风扇应该是放在窗户边对着房间吹,最有效降温。
10.电视机后面,要预留至少五个插座,电视机,有线电视盒,音响,天猫投射,备用  
11.玄关处,有家庭使用烘鞋器的,可以考虑留个低位插座
12.阳台若按照电动晾衣架的,也要考虑预留的。
13.若有安装投影仪的计划,记得预留投影和幕布的插座
14.其他家电预留,空调,洗衣机烘干机,吸尘器,熨烫机等


爆料有奖!关注昆山论坛抖音号,抖音搜索“昆山论坛”,或搜索抖音号:ksbbs
 
美女离线也许有一天mm
发帖
3225
昆币
3959 枚
94楼 发表于: 2019-03-26 , 来自:江苏省0==
关于灯

注意点,厨房除了主光源,最好在洗切区再装个辅光源。我时刻提醒自己别忘记这个。只有天天做饭的人才深有体会无辅助光的难处。

不差米的可以选择实体店入,预算比较紧张的或者想省点米的可以网购,然后实体店入光源。

之前关注的一个公众号推荐的几个淘宝灯具店铺,反反复复看,比较中意几款。但是又担心自己的搭配功底,担心配到一起成灾难,头疼。

不能全部都选择有个性,或者颜值太出众的。总归需要一些平淡的简洁大方的款式衬托的。这个后面再取舍吧。独立空间,比如卧室内,倒是可以都特别点。客厅和餐厅就要考量搭配了。
不懂得搭配的,还是选择吸顶灯吧。来来来,一起看看吧





爆料有奖!关注昆山论坛抖音号,抖音搜索“昆山论坛”,或搜索抖音号:ksbbs
 
美女离线也许有一天mm
发帖
3225
昆币
3959 枚
95楼 发表于: 2019-03-26 , 来自:江苏省0==
还有一些,颜值高的


爆料有奖!关注昆山论坛抖音号,抖音搜索“昆山论坛”,或搜索抖音号:ksbbs
 
美女离线yangyang_84
发帖
2877
昆币
5457 枚
96楼 发表于: 2019-03-26 , 来自:江苏省0==
也许有一天mm:原来帖子还能合并啊!KB真强大 (2019-03-25 14:49) 

怎么合并两个帖子?我也想重新开个贴参加比赛了
爆料有奖!关注昆山论坛抖音号,抖音搜索“昆山论坛”,或搜索抖音号:ksbbs
 
美女离线也许有一天mm
发帖
3225
昆币
3959 枚
97楼 发表于: 2019-03-26 , 来自:江苏省0==
yangyang_84:怎么合并两个帖子?我也想重新开个贴参加比赛了[表情] (2019-03-26 20:39) 

我能说我不会么?论坛家装君帮忙的
爆料有奖!关注昆山论坛抖音号,抖音搜索“昆山论坛”,或搜索抖音号:ksbbs
 
离线娥姐
级别: 昆山新人
发帖
407
昆币
547 枚
98楼 发表于: 2019-03-27 , 来自:江苏省0==
爆料有奖!关注昆山论坛抖音号,抖音搜索“昆山论坛”,或搜索抖音号:ksbbs
 
发帖
1128
昆币
1048 枚
99楼 发表于: 2019-03-27 , 来自:江苏省0==
爆料有奖!关注昆山论坛抖音号,抖音搜索“昆山论坛”,或搜索抖音号:ksbbs
 
快速回复
限76 字节
如果您提交过一次失败了,可以用”恢复数据”来恢复帖子内容
 
上一个 下一个