l 协进瓷砖进场
终于要到了瓷砖进场的时候了,隆重介绍一下我选的瓷砖---协进陶瓷。如果你没有在红星、月星之类的大卖场里看到过这个牌子,那是很正常的,因为这一家走的路线就是不进大卖场!价格不玩噱头(吊牌好几百,打个4、5折这样的套路)!
他们家店就开在朝阳路大润发的斜对面马路边。店老板是一对亲切可人的兄妹(不是老板老板娘!)----刚总和Lisa美女,下面图片中的铁骑就是刚总送砖专骑~
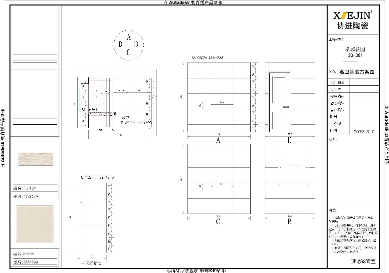
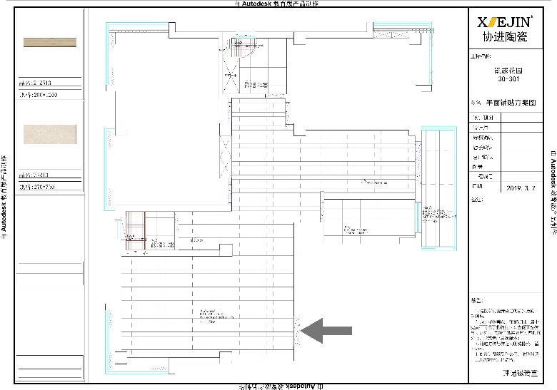
送过来的砖,都是按照设计铺设图纸进行过免费加工的(切割、修边、淋浴房地砖拉槽)。、
另外说一句,协进陶瓷现在也是论坛的入驻商家了。论坛上装修的小伙伴需要瓷砖的不妨去看一看、比一比~



