夜间模式
  • 432739阅读
  • 408回复

【寅盛杯装修日记大赛】 一次装修就是一次人生历练,搭一个简约舒适的港湾 [复制链接]

上一主题 下一主题
帅哥离线老麻子
发帖
5875
昆币
10802 枚
100楼 发表于: 2019-04-01 , 来自:上海市0==
l   总有一些是要浪费的
       由于是二手房,原本房东办公用改造的和原结构有点出入。刚开始量尺寸和出设计图是,没有想到这一个区域不是室内的面积,而是室外的设备间。导致原本设计的冰箱位置没有了,厨房的门洞也缩小了,从移门改为普通的开门了。
          
       冰箱的位置的重新确定一度让人异常烦恼。
       一个方案是在厨房和书房的墙上打个洞,把冰箱嵌在里面。而且也动手开始敲墙了,敲一半发现地上居然有20多厘米高的地梁不能动,这样冰箱的位置抬得太高,使用太不方便,只能又把敲掉的墙有重新用砖砌好(双倍的钱~)。
        
       也考虑过把冰箱放在客厅的角落里,倒是不碍事,但是里厨房和餐厅太远,被否决了。
       最后几经考虑,在门口的墙上打了一大排柜子,把冰箱放在靠近餐厅墙上,牺牲了原设计效果图的吧台,又多打了一整排的柜子。这个方案得到了领导的首肯(她最主要是觉得柜子越多越好,历史经验告诉我们,家里再多的柜子都会被塞满,都会嫌不够放)!
爆料有奖!关注昆山论坛抖音号,抖音搜索“昆山论坛”,或搜索抖音号:ksbbs
 
美女离线网红小姐姐

发帖
2926
昆币
6896 枚
101楼 发表于: 2019-04-01 , 来自:江苏省0==
回 老麻子 的帖子
老麻子:l   总有一些是要浪费的       由于是二手房,原本房东办公用改造的和原结构有点出入。刚开始量尺寸和出设计图是,没有想到这一个区域不是室内的面积,而是室外的设备间。导致原本设计的冰箱位置没有了,厨房的门洞也缩小了,从移门 .. (2019-04-01 09:18)

家里大领导还是非常有见地的  同意她的说法
爆料有奖!关注昆山论坛抖音号,抖音搜索“昆山论坛”,或搜索抖音号:ksbbs
 
美女离线宝货
发帖
5728
昆币
9522 枚
102楼 发表于: 2019-04-01 , 来自:江西省0==
同意!!柜子必须多多多!!!
本帖评分记录
老麻子 昆币 +1 我很赞同 2019-04-02
1条评分昆币+1
爆料有奖!关注昆山论坛抖音号,抖音搜索“昆山论坛”,或搜索抖音号:ksbbs
 
帅哥离线老麻子
发帖
5875
昆币
10802 枚
103楼 发表于: 2019-04-02 , 来自:上海市0==
回 宝货 的帖子
宝货:同意!!柜子必须多多多!!![表情] (2019-04-01 15:33)

推荐日剧《我的家里空无一物》
光柜子多不够
还要断舍离
爆料有奖!关注昆山论坛抖音号,抖音搜索“昆山论坛”,或搜索抖音号:ksbbs
 
帅哥离线老麻子
发帖
5875
昆币
10802 枚
104楼 发表于: 2019-04-02 , 来自:上海市0==
回 网红小姐姐 的帖子
网红小姐姐:家里大领导还是非常有见地的  同意她的说法 (2019-04-01 11:38)


凡是领导肯定的都是对的
凡是领导反对的都是错的
本帖评分记录
网红小姐姐 昆币 +1 -来自昆山论坛APP 2019-04-03
1条评分昆币+1
爆料有奖!关注昆山论坛抖音号,抖音搜索“昆山论坛”,或搜索抖音号:ksbbs
 
离线天意118
级别: 昆山新人
发帖
199
昆币
379 枚
105楼 发表于: 2019-04-03 , 来自:江苏省0==
同意,多些柜子总归好的
本帖评分记录
老麻子 昆币 +1 我很赞同 2019-04-03
1条评分昆币+1
爆料有奖!关注昆山论坛抖音号,抖音搜索“昆山论坛”,或搜索抖音号:ksbbs
 
美女离线宝货
发帖
5728
昆币
9522 枚
106楼 发表于: 2019-04-03 , 来自:江西省0==
回 老麻子 的帖子
老麻子:[表情]
凡是领导肯定的都是对的
凡是领导反对的都是错的 (2019-04-02 10:23)

这句话,是真理!!!!
[ 此帖被宝货在2019-04-03 15:33重新编辑 ]
本帖评分记录
老麻子 昆币 +1 我很赞同 2019-04-04
1条评分昆币+1
爆料有奖!关注昆山论坛抖音号,抖音搜索“昆山论坛”,或搜索抖音号:ksbbs
 
美女离线网红小姐姐

发帖
2926
昆币
6896 枚
107楼 发表于: 2019-04-03 , 来自:未知0==
老麻子:[表情]
凡是领导肯定的都是对的
凡是领导反对的都是错的 (2019-04-02 10:23) 

马屁拍的可以,我挺你
爆料有奖!关注昆山论坛抖音号,抖音搜索“昆山论坛”,或搜索抖音号:ksbbs
 
帅哥离线老麻子
发帖
5875
昆币
10802 枚
108楼 发表于: 2019-04-04 , 来自:上海市0==
回 网红小姐姐 的帖子
网红小姐姐:马屁拍的可以,我挺你[表情] (2019-04-03 17:48)


都是同道中人
爆料有奖!关注昆山论坛抖音号,抖音搜索“昆山论坛”,或搜索抖音号:ksbbs
 
帅哥离线老麻子
发帖
5875
昆币
10802 枚
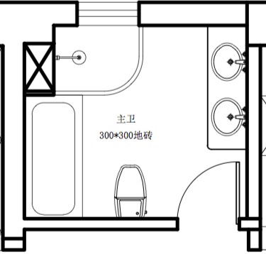
109楼 发表于: 2019-04-04 , 来自:上海市0==
l   浴缸----最有可能后悔和被诟病的选择
       看过很多人的装修攻略、日志,浴缸被评为装了之后就后悔无比的是一个排名非常靠前的选择项!
      
       可是我再三犹豫之后,还是选在在主卫装了一个浴缸(哪怕只是最小小的1.5米的浴缸),要说原因,最主要可能是两个:
      
1.   收日式装饰的影响,在日本不论再小的酒店(大众民宿除外)、家庭,几乎都会安装有浴缸(一般日本新建筑都是分离式、整体浴室),我再日本旅游的时候,也很喜欢在每天暴走之后,好好的泡在浴缸里放松一下自己;
2.   家里的两个娃也是泡澡爱好者,虽然孩子她妈一再用每次用完需要她们自己负责打扫卫生来要求她们,也没有挡住她们要求装浴缸的期待。
       最后,要感谢领导在这个事情上的宽容,她自己本身是一个不怎么爱泡浴缸的人,可也满足了我们爷几个“无理”的要求。然后希望以后如果有一天,浴缸沦为大的洗衣盆、宠物洗澡盆的时候,请不要翻“旧账”哦……

爆料有奖!关注昆山论坛抖音号,抖音搜索“昆山论坛”,或搜索抖音号:ksbbs
 
快速回复
限76 字节
如果您提交过一次失败了,可以用”恢复数据”来恢复帖子内容
 
上一个 下一个