夜间模式
  • 12115阅读
  • 9回复

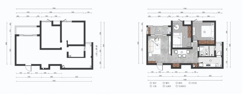
[装修]加成花园 | 87m2 I 二手房翻新简约风格 [复制链接]

上一主题 下一主题
美女离线吴江一野设计
级别: 初来乍到
发帖
4
昆币
41 枚
只看楼主 使用道具 电梯直达
楼主  发表于: 2018-08-04 , 来自:江苏省0==




加成花园 & 书香学府
小巧的空间里面五脏俱全

二手房每次的改造都是属于新生的开始
空间色彩带给人的感受
比任何单个的物体都要真实
浓烈艳丽的色彩直白而强势
它的意义一目了然
让人无法忽视
但越是简单的、平凡无奇的颜色
越能诠释复杂深邃的生活意义






整体空间基调以白色为主
投射的光线,明亮的灯光等
都在视觉上放大了空间
运用开放性设计手法,令空间开阔统一,洋溢出年轻化气息








明亮纯净的空间
相互制约、相互抵消
轻描淡写的述说着清新优雅
弱化边缘的柔和氛围

温柔高级的灵动质感














在这个黑白简约的精致空间里


每个单品的选择都是质感且时髦






因为室内空间面积并不是很开阔
在满足各个功能区的同时也要保证整个空间的行走动线是流畅
电视背景墙用瓷砖铺贴,而中间部分镂空

拉伸视觉感的同时使空间更加通透








开放式的布局让室内更加通透明亮
各个功能区的联系也显得更加紧密
定制的整面餐边储物柜满足了储物需求
结合造型简洁而优雅的皮革餐椅搭配大理石餐桌,
提升了整个空间的质感。
客餐厅呈狭长式布局,在立面与吊顶连接处,融入黑色金属嵌条
既起到明确吊顶、墙面、地面三者关系的作用,又增加整体层次感
木质背景墙的暗门设计,保证了视觉一体呈现

柔和的色调让人卸下疲惫,进而营造出轻松、惬意的气氛








洗浴室的墙地满贴米灰色砂岩砖
而镜柜和浴室柜也具有丰富的储物功能
黑白灰经典色系的穿插,依旧可以营造出空间的利落清爽




由于卧室是睡眠区域
设计师则以柔和的灰色调子进行呼应
精心挑选的装饰画也迎合了整体色系

旨在达到屋主对艺术追求的同时,保证家应有的舒适度与温馨感。














本帖评分记录
昆山伟宏门窗 昆币 +1 - 2018-08-05
奋斗诠释梦想 昆币 +1 -来自昆山论坛APP 2018-08-04
alvinsu 昆币 +1 -来自昆山论坛APP 2018-08-04
纸哒煮 昆币 +1 -来自昆山论坛APP 2018-08-04
4条评分昆币+4
爆料有奖!关注昆山论坛抖音号,抖音搜索“昆山论坛”,或搜索抖音号:ksbbs
 
帅哥离线小满5
发帖
530
昆币
804 枚
沙发  发表于: 2018-08-04 , 来自:江苏省0==
坚定拥护党的领导,向警察大哥致以最崇高的敬意,支持昆山经济蓬勃发展!
爆料有奖!关注昆山论坛抖音号,抖音搜索“昆山论坛”,或搜索抖音号:ksbbs
 
美女离线纸哒煮
级别: 昆山名人
发帖
48764
昆币
110742 枚
板凳  发表于: 2018-08-04 , 来自:江苏省0==
不错不错
爆料有奖!关注昆山论坛抖音号,抖音搜索“昆山论坛”,或搜索抖音号:ksbbs
 
美女离线纸哒煮
级别: 昆山名人
发帖
48764
昆币
110742 枚
地板  发表于: 2018-08-04 , 来自:江苏省0==
不错不错
爆料有奖!关注昆山论坛抖音号,抖音搜索“昆山论坛”,或搜索抖音号:ksbbs
 
美女离线纸哒煮
级别: 昆山名人
发帖
48764
昆币
110742 枚
4楼 发表于: 2018-08-04 , 来自:江苏省0==
不错不错
爆料有奖!关注昆山论坛抖音号,抖音搜索“昆山论坛”,或搜索抖音号:ksbbs
 
帅哥离线旭日装饰
级别: 禁止发言
管辖: 旭日装饰

发帖
7177
昆币
9071 枚
5楼 发表于: 2018-08-04 , 来自:江苏省0==
用户被禁言,该主题自动屏蔽!
[ 此帖被妖夭的小清新在2018-08-06 09:24重新编辑 ]
爆料有奖!关注昆山论坛抖音号,抖音搜索“昆山论坛”,或搜索抖音号:ksbbs
 
级别: 家装商家

发帖
21325
昆币
22262 枚
6楼 发表于: 2018-08-04 , 来自:浙江0==
  
爆料有奖!关注昆山论坛抖音号,抖音搜索“昆山论坛”,或搜索抖音号:ksbbs
 
电话:13912674136   微信账号:13912674136 QQ:2993026895  公司地址:张浦镇学士路35号          
美女离线吴江一野设计
级别: 初来乍到
发帖
4
昆币
41 枚
7楼 发表于: 2018-08-05 , 来自:江苏省0==
回 纸哒煮 的帖子
纸哒煮:不错不错 (2018-08-04 12:14)

感谢关注,


爆料有奖!关注昆山论坛抖音号,抖音搜索“昆山论坛”,或搜索抖音号:ksbbs
 
美女离线吴江一野设计
级别: 初来乍到
发帖
4
昆币
41 枚
8楼 发表于: 2018-08-05 , 来自:江苏省0==
苏州一野设计  家装 / 软装 / 商业空间设计  
专业室内设计
12年  纯设计

园区店:苏州工业园区星湖街1211号仁恒park A座301

吴江店:吴江吾悦广场F009号


欢迎进店了解!


[ 此帖被妖夭的小清新在2018-08-06 09:37重新编辑 ]
爆料有奖!关注昆山论坛抖音号,抖音搜索“昆山论坛”,或搜索抖音号:ksbbs
 
发帖
11508
昆币
15076 枚
9楼 发表于: 2018-08-06 , 来自:江苏省0==
照片好看的,清清爽爽非常棒,夏天住这样的房子,是不是空调费都能省了
爆料有奖!关注昆山论坛抖音号,抖音搜索“昆山论坛”,或搜索抖音号:ksbbs
 
快速回复
限76 字节
如果您提交过一次失败了,可以用”恢复数据”来恢复帖子内容
 
上一个 下一个