夜间模式
  • 20163阅读
  • 8回复

[装修]2018实景作品 | 你家房子里藏满了你的人生态度,认真生活的人最可爱 [复制链接]

上一主题 下一主题
帅哥离线印象水仙设计
级别: 家装商家
发帖
11382
昆币
19485 枚
只看楼主 使用道具 电梯直达
楼主  发表于: 2018-08-03 , 来自:江苏省0==


'ABOUT THE HOUSE'

装修风格:北欧风
装修面积:127㎡
装修户型:四室两厅一厨两卫


客户需求

在业主看来,家应该是基于一套充满爱的房子,简洁、明亮、有质感;爸爸妈妈、哥哥妹妹在这里填充欢声笑语、幸福美好;等到姐姐弟弟长大成人闯荡世界的时候,这里将是他们的童年回忆,所以每一个物件都值得用心挑选。

设计方案


设计师整体优化室内流动线,迎合主人公的需求,三室改四室,使布局更合理;考虑到女主人的生活需求,从而打造出一个衣帽间;考虑到家里有两个小朋友,设计师设计了两间独立的儿童房,同时这两个房间书桌的设计,都考虑到了每个孩子的喜好;选材和用色上巧用心思,使整个家里光线充盈,温馨如画。


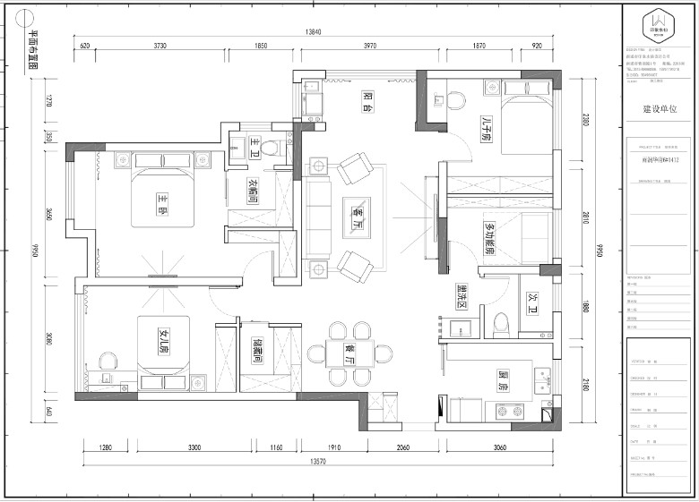
平面方案及全景三维图展示



客厅



餐厅



厨房



主卧



书房




Sitting Room





北欧风向来都是最为自由的,从不拘泥于某一种固定的装饰;以一抹视感温和而饱满的黄棕色与黑白灰进行配比,打造理性而不失温度的现代空间;从丝绒、布艺沙发到墙上的壁画、灯饰,从浅灰色简洁的背景墙到富有光泽的地砖,经典色调的几经变换,优雅质感由内而发。



Dining Room



餐厅与客厅的配色相呼应,使客餐厅看起来连成一体,给人一种空间开阔之感;同时,设计师在两边的墙面和装饰柜上增添了很多色彩鲜艳的小摆件,打破了白色、灰色带来的过于单调,使之大气稳重却不失活力。



Kitchen



业主爱美食,也爱烹饪;清爽大气的厨房自然是心头爱;当烟雾升腾,又瞬间被风吹散;满目的素色中,漂浮的打卤香使人陶醉;厨房的设计从颜色到橱柜用具更加简约,为业主营造了一个干净整洁清爽的下厨环境。


Master Bedroom



本案中设计师大量运用简洁直线条,采用原木材质搭配菱形壁画,以简易吊灯做点缀,营造出温暖干练的氛围;主卧设计出一个衣帽间,这是女主人的最爱;软装上采用木色与绿色混搭,营造生机盎然的室内空间;没有繁冗的手笔,一切皆是恰到好处。


Children's Bedroom



女儿房以粉色和白色为主,选用木质家具使房间更自然舒适;抛开了复杂的小摆件,只添置了必要的家具,使房间更加空旷,让孩子可以感受到房间的轻松、温暖。



Children's Bedroom


男孩房的设计主要体现在软装上,卡通飞机模型的吊灯设计,就带着别具一格的时尚感; 书桌的设计,只为给孩子一个好的学空间;选用饱和度较低的蓝色为主色调,辅以白色、木色搭配,给孩子全方位的守护;床饰中的星河闪耀着孩子的梦。


School Room




书房是设计师根据主家的需求设计出来的,风格上,与整体配色保持一致,以白色和原木色为主色调,干净明朗。

Rest Room



大面积的亮白色使卫生间看起来宽敞通透、整洁又清爽;卫生间做了干湿分离的处理,实用却不影响采光;干区统一采用沉稳的木色调作为基调,明亮的白色作为辅助,即使在燥热的夏天也能让人无比舒心。

装修咨询,电话、微信:15962697359


[ 此帖被印象水仙设计在2018-08-03 17:58重新编辑 ]
爆料有奖!关注昆山论坛抖音号,抖音搜索“昆山论坛”,或搜索抖音号:ksbbs
 
离线jiaokan37
级别: 昆山新人
发帖
175
昆币
232 枚
沙发  发表于: 2018-08-04 , 来自:江苏省0==
黄色好多
爆料有奖!关注昆山论坛抖音号,抖音搜索“昆山论坛”,或搜索抖音号:ksbbs
 
离线嗨妞妞
级别: 昆山新人
发帖
194
昆币
278 枚
板凳  发表于: 2018-08-04 , 来自:江苏省0==
这家好看
爆料有奖!关注昆山论坛抖音号,抖音搜索“昆山论坛”,或搜索抖音号:ksbbs
 
离线juben973516
级别: 昆山新人
发帖
177
昆币
198 枚
地板  发表于: 2018-08-04 , 来自:江苏省0==
我喜欢卫生间这边的设计,把洗手台放外面了
爆料有奖!关注昆山论坛抖音号,抖音搜索“昆山论坛”,或搜索抖音号:ksbbs
 
离线pazhang44
级别: 昆山新人
发帖
352
昆币
413 枚
4楼 发表于: 2018-08-04 , 来自:江苏省0==
沙发不喜欢
爆料有奖!关注昆山论坛抖音号,抖音搜索“昆山论坛”,或搜索抖音号:ksbbs
 
帅哥离线印象水仙设计
级别: 家装商家
发帖
11382
昆币
19485 枚
5楼 发表于: 2018-08-04 , 来自:江苏省0==
pazhang44:沙发不喜欢[表情] (2018-08-04 17:47) 

业主比较喜欢这种样式的,而且也是他们自己亲自挑选的哦,只能说每个人的眼光不一样而已。
爆料有奖!关注昆山论坛抖音号,抖音搜索“昆山论坛”,或搜索抖音号:ksbbs
 
离线linmu1695
级别: 昆山新人
发帖
245
昆币
295 枚
6楼 发表于: 2018-08-05 , 来自:江苏省0==
印象水仙设计:业主比较喜欢这种样式的,而且也是他们自己亲自挑选的哦,只能说每个人的眼光不一样而已。[表情] (2018-08-04 17:57) 

业主眼光真独特
爆料有奖!关注昆山论坛抖音号,抖音搜索“昆山论坛”,或搜索抖音号:ksbbs
 
级别: 昆山新人
发帖
396
昆币
477 枚
7楼 发表于: 2018-08-05 , 来自:江苏省0==
喜欢女儿房的设计
爆料有奖!关注昆山论坛抖音号,抖音搜索“昆山论坛”,或搜索抖音号:ksbbs
 
离线jiyan50045
级别: 昆山新人
发帖
463
昆币
796 枚
8楼 发表于: 2018-08-05 , 来自:江苏省0==
三维图上的沙发好看的
爆料有奖!关注昆山论坛抖音号,抖音搜索“昆山论坛”,或搜索抖音号:ksbbs
 
快速回复
限76 字节
如果您提交过一次失败了,可以用”恢复数据”来恢复帖子内容
 
上一个 下一个