夜间模式
  • 6383308阅读
  • 4105回复

《公益开帖八年专注户型解析》★★上传您的户型图★★为您的户型做深度解析★ [复制链接]

上一主题 下一主题
帅哥在线kunshanbzl
发帖
1999
昆币
3356 枚
3680楼 发表于: 2021-10-17 , 来自:未知0==
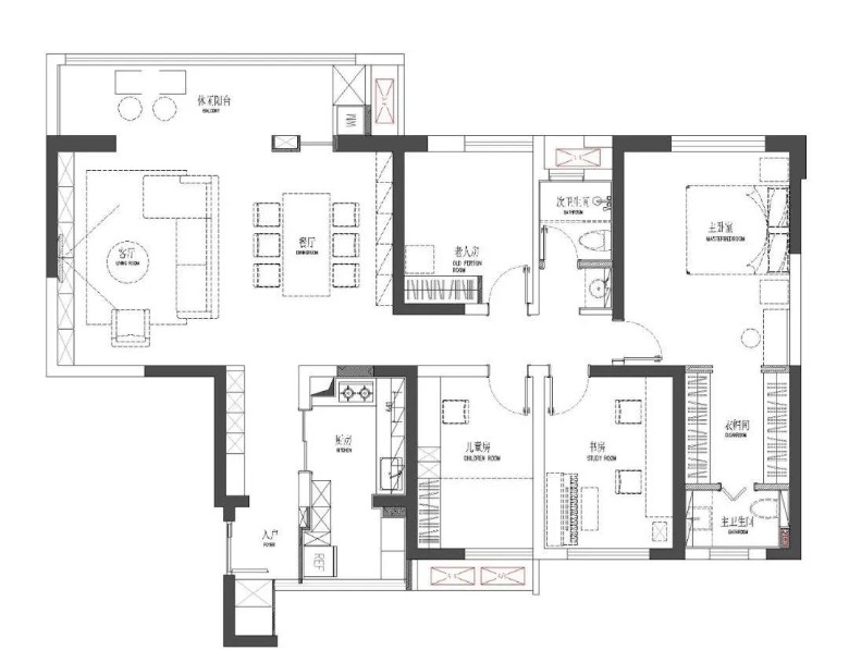
帮分析户型
爆料有奖!关注昆山论坛抖音号,抖音搜索“昆山论坛”,或搜索抖音号:ksbbs
 
离线朗通装饰
级别: 家装商家

发帖
17081
昆币
14390 枚
3681楼 发表于: 2021-10-18 , 来自:江苏省0==
回 kunshanbzl 的帖子
kunshanbzl:帮分析户型
[图片] (2021-10-17 12:30)

您好,这个户型三间朝南,南北通透的户型,整体格局不需大改。这个是一梯一户户型吗?可以利用电梯井旁边完善入户的功能性,并提高空间体验。
在卫生间的那面墙做玄关设计。
客餐厅采用一体化的结构设计,通风效果佳。
具体风格可以根据喜好而设计,当下会比较流行现代现代风格,现代复古风格。

爆料有奖!关注昆山论坛抖音号,抖音搜索“昆山论坛”,或搜索抖音号:ksbbs
 
离线朗通装饰
级别: 家装商家

发帖
17081
昆币
14390 枚
3682楼 发表于: 2021-10-20 , 来自:江苏省0==
天气变冷,大家记得添衣哦
爆料有奖!关注昆山论坛抖音号,抖音搜索“昆山论坛”,或搜索抖音号:ksbbs
 
美女离线刘旦
级别: 昆山过客
发帖
49
昆币
92 枚
3683楼 发表于: 2021-10-21 , 来自:江苏省0==
回 kunshanbzl 的帖子
kunshanbzl:帮分析户型
[图片] (2021-10-17 12:30)

户型蛮好的
爆料有奖!关注昆山论坛抖音号,抖音搜索“昆山论坛”,或搜索抖音号:ksbbs
 
离线朗通装饰
级别: 家装商家

发帖
17081
昆币
14390 枚
3684楼 发表于: 2021-10-23 , 来自:江苏省0==
回 刘旦 的帖子
刘旦:户型蛮好的[表情] (2021-10-21 11:10)

是的,整体还是不错的,在设计风格多用点心会很不错的呢
爆料有奖!关注昆山论坛抖音号,抖音搜索“昆山论坛”,或搜索抖音号:ksbbs
 
离线朗通装饰
级别: 家装商家

发帖
17081
昆币
14390 枚
3685楼 发表于: 2021-10-24 , 来自:江苏省0==
今天周末正常上班哦,欢迎大家上门咨询
爆料有奖!关注昆山论坛抖音号,抖音搜索“昆山论坛”,或搜索抖音号:ksbbs
 
离线朗通装饰
级别: 家装商家

发帖
17081
昆币
14390 枚
3686楼 发表于: 2021-10-25 , 来自:江苏省0==
[font=punctuation,  ]走进装修施工现场,了解施工工艺与装修材料,
[font=punctuation,  ]资深设计师王工现场陪同讲解水电工艺,装修细节,
[font=punctuation,  ]解答装友装修疑问,
[font=punctuation,  ]业主都在细心倾听讲解并认真做好记录。
[font=punctuation,  ]

[font=punctuation,  ]

[font=punctuation,  ]

[font=punctuation,  ]

[font=punctuation,  ]

[font=punctuation,  ]

爆料有奖!关注昆山论坛抖音号,抖音搜索“昆山论坛”,或搜索抖音号:ksbbs
 
离线朗通装饰
级别: 家装商家

发帖
17081
昆币
14390 枚
3687楼 发表于: 2021-10-27 , 来自:江苏省0==
今天分享的是一套147㎡案例,业主需要两个卧室,书房,储物空间一定要多,下面我们就一起来看看设计方案吧。



[ 此帖被朗通装饰在2021-10-27 10:15重新编辑 ]
爆料有奖!关注昆山论坛抖音号,抖音搜索“昆山论坛”,或搜索抖音号:ksbbs
 
级别: 昆山新人
发帖
484
昆币
527 枚
3688楼 发表于: 2021-10-28 , 来自:江苏省0==
回 朗通装饰 的帖子
朗通装饰:走进装修施工现场,了解施工工艺与装修材料,
资深设计师王工现场陪同讲解水电工艺,装修细节,
解答装友装修疑问,
业主都在细心倾听讲解并认真做好记录。
[图片]
....... (2021-10-25 10:33)

不错,这种活动业主还是蛮受益的
爆料有奖!关注昆山论坛抖音号,抖音搜索“昆山论坛”,或搜索抖音号:ksbbs
 
离线朗通装饰
级别: 家装商家

发帖
17081
昆币
14390 枚
3689楼 发表于: 2021-10-29 , 来自:江苏省0==
回 秋天的枫叶2 的帖子
秋天的枫叶2:不错,这种活动业主还是蛮受益的[表情] (2021-10-28 09:52)

是的,业主看工地,学装修知识,都在很认真的记笔记
爆料有奖!关注昆山论坛抖音号,抖音搜索“昆山论坛”,或搜索抖音号:ksbbs
 
快速回复
限76 字节
如果您提交过一次失败了,可以用”恢复数据”来恢复帖子内容
 
上一个 下一个