夜间模式
  • 6383875阅读
  • 4105回复

《公益开帖八年专注户型解析》★★上传您的户型图★★为您的户型做深度解析★ [复制链接]

上一主题 下一主题
离线朗通装饰
级别: 家装商家

发帖
17081
昆币
14390 枚
3420楼 发表于: 2020-11-15 , 来自:江苏省0==
回 心情yijiu 的帖子
心情yijiu:
小编帮我看看这个户型你们有做过吗?
[图片]


这个户型我们目前做了好几套哦!最近刚设计一套美式的风格,可以发您参考下:
您可以加公司QQ:923095691.设计师了解一下您的需求,根据您的需求而设计!








爆料有奖!关注昆山论坛抖音号,抖音搜索“昆山论坛”,或搜索抖音号:ksbbs
 
离线牧之
级别: 昆山新人
发帖
429
昆币
430 枚
3421楼 发表于: 2020-11-16 , 来自:江苏省0==
回 朗通装饰 的帖子
朗通装饰:这个户型我们目前做了好几套哦!最近刚设计一套美式的风格,可以发您参考下:
您可以加公司QQ:923095691.设计师了解一下您的需求,根据您的需求而设计!
[图片]
....... (2020-11-15 10:19)

喜欢这个风格
爆料有奖!关注昆山论坛抖音号,抖音搜索“昆山论坛”,或搜索抖音号:ksbbs
 
离线朗通装饰
级别: 家装商家

发帖
17081
昆币
14390 枚
3422楼 发表于: 2020-11-17 , 来自:江苏省0==
回 牧之 的帖子
牧之:喜欢这个风格[表情] (2020-11-16 09:41)

是吧!美式风格还是很受大众业主喜爱的
爆料有奖!关注昆山论坛抖音号,抖音搜索“昆山论坛”,或搜索抖音号:ksbbs
 
离线朗通装饰
级别: 家装商家

发帖
17081
昆币
14390 枚
3423楼 发表于: 2020-11-19 , 来自:江苏省0==
欢迎大家关注朗通装饰
爆料有奖!关注昆山论坛抖音号,抖音搜索“昆山论坛”,或搜索抖音号:ksbbs
 
离线朗通装饰
级别: 家装商家

发帖
17081
昆币
14390 枚
3424楼 发表于: 2020-11-20 , 来自:江苏省0==
今天天气转凉,大家记得保暖哦
爆料有奖!关注昆山论坛抖音号,抖音搜索“昆山论坛”,或搜索抖音号:ksbbs
 
离线朗通装饰
级别: 家装商家

发帖
17081
昆币
14390 枚
3425楼 发表于: 2020-11-21 , 来自:江苏省0==
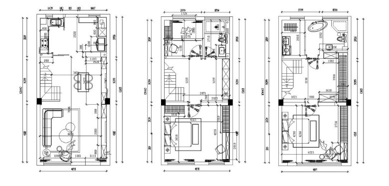
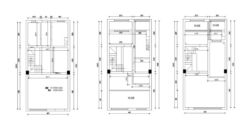
万科万悦花园别墅案例分析
▃▃▃▃▃▃▃
户型改造:
Type transform

◑入户区满足日常收纳需求,定做收纳柜,安置换鞋凳,入户也显得宽敞舒适;
◑客厅用大落地窗封闭起来,引景入室,客厅整体阳光通透;
◑打开厨房,设置成开放式西厨,设计了吧台立柜连接餐厅餐桌,扩大使用空间,也利于日常烹饪互动;
◑主卧门移动位置,让整个空间显得大气,也为室内腾出更多空间作整墙收纳,起居动线更顺畅。
▃▃▃▃▃▃▃







爆料有奖!关注昆山论坛抖音号,抖音搜索“昆山论坛”,或搜索抖音号:ksbbs
 
离线bubby
级别: 昆山新人
发帖
291
昆币
306 枚
3426楼 发表于: 2020-11-22 , 来自:江苏省0==
回 朗通装饰 的帖子
朗通装饰:万科万悦花园别墅案例分析
▃▃▃▃▃▃▃
户型改造:
Type transform

....... (2020-11-21 10:24)

看着不错哦
爆料有奖!关注昆山论坛抖音号,抖音搜索“昆山论坛”,或搜索抖音号:ksbbs
 
离线朗通装饰
级别: 家装商家

发帖
17081
昆币
14390 枚
3427楼 发表于: 2020-11-23 , 来自:江苏省0==
回 bubby 的帖子
bubby:看着不错哦[表情] (2020-11-22 09:50)

欢迎关注哦
爆料有奖!关注昆山论坛抖音号,抖音搜索“昆山论坛”,或搜索抖音号:ksbbs
 
离线朗通装饰
级别: 家装商家

发帖
17081
昆币
14390 枚
3428楼 发表于: 2020-11-25 , 来自:江苏省0==
天气变凉,大家出门记得保暖哦
爆料有奖!关注昆山论坛抖音号,抖音搜索“昆山论坛”,或搜索抖音号:ksbbs
 
离线冷曦
级别: 昆山新人
发帖
189
昆币
226 枚
3429楼 发表于: 2020-11-26 , 来自:江苏省0==
踩踩
爆料有奖!关注昆山论坛抖音号,抖音搜索“昆山论坛”,或搜索抖音号:ksbbs
 
快速回复
限76 字节
如果您提交过一次失败了,可以用”恢复数据”来恢复帖子内容
 
上一个 下一个