夜间模式
打赏中心
每日签到
幸运转盘
论坛帮助
活动聚焦
手机客户端
道具中心
商家认证
勋章中心
诚信认证
快捷通道
关闭
您还没有登录,快捷通道只有在登录后才能使用。
立即登录
还没有帐号? 赶紧
注册一个
论坛首页
论坛导航
商家
招聘
装修
昆山优选
小红娘
分类信息
二手房
昆山视窗
登录
注册
找回密码
帖子
用户
版块
帖子
搜索
论坛首页
>
论坛导航
>
酸甜苦辣话装修
>
【寅盛潮流设计】2020装修风格都在这了,点击查看
发帖
回复
返回列表
上一页
1...
49
50
51
52
53
...101
下一页
到第
页
确认
新帖
1009427
阅读
1009
回复
【寅盛潮流设计】2020装修风格都在这了,点击查看
[复制链接]
扫描到手机
论坛小编教你如何扫二维码
上一主题
下一主题
离线
寅盛装饰设计
UID:632972
注册时间
2014-04-24
最后登录
2023-06-29
发帖
6918
搜Ta的帖子
精华
0
昆币
6420
访问TA的空间
加好友
用道具
级别:
昆山高级市民
发帖
6918
昆币
6420 枚
加关注
发消息
只看该作者
500楼
发表于: 2019-08-29
,
来自:江苏省
0==
【户型】两室一厅一卫
【设计风格】美式风格
【施工小区】裕景园
【设计师】王凤娟
【毕业学院】哈尔滨师范大学
[font=Tahoma, Simsun, ]【设计理念】:
持之以恒的学习是设计的来源
责任感是设计的原创,而灵感是设计的升华。
图片:
本帖评分记录
共
条评分
爆料有奖!关注昆山论坛抖音号,抖音搜索“昆山论坛”,或搜索抖音号:ksbbs
引用
举报
离线
寅盛装饰设计
UID:632972
注册时间
2014-04-24
最后登录
2023-06-29
发帖
6918
搜Ta的帖子
精华
0
昆币
6420
访问TA的空间
加好友
用道具
级别:
昆山高级市民
发帖
6918
昆币
6420 枚
加关注
发消息
只看该作者
501楼
发表于: 2019-08-30
,
来自:江苏省
0==
【户型】三室两厅两卫
【设计风格】潮流混搭风
【施工小区】昆玉九里
【设计解析】
设计师:岑成
毕业学院;南京艺术学院
设计理念:
室内是建筑的灵魂,是人与环境的联系
是人类艺术与物质文明的结合。
本帖评分记录
共
条评分
爆料有奖!关注昆山论坛抖音号,抖音搜索“昆山论坛”,或搜索抖音号:ksbbs
引用
举报
离线
寅盛装饰设计
UID:632972
注册时间
2014-04-24
最后登录
2023-06-29
发帖
6918
搜Ta的帖子
精华
0
昆币
6420
访问TA的空间
加好友
用道具
级别:
昆山高级市民
发帖
6918
昆币
6420 枚
加关注
发消息
只看该作者
502楼
发表于: 2019-08-31
,
来自:江苏省
0==
本帖评分记录
共
条评分
爆料有奖!关注昆山论坛抖音号,抖音搜索“昆山论坛”,或搜索抖音号:ksbbs
引用
举报
离线
寅盛装饰设计
UID:632972
注册时间
2014-04-24
最后登录
2023-06-29
发帖
6918
搜Ta的帖子
精华
0
昆币
6420
访问TA的空间
加好友
用道具
级别:
昆山高级市民
发帖
6918
昆币
6420 枚
加关注
发消息
只看该作者
503楼
发表于: 2019-09-02
,
来自:江苏省
0==
【户型】三室两厅两卫
【设计风格】现代简约
【施工小区】中大未来城
【设计师】王凤娟
【毕业学院】哈尔滨师范大学
[font=Tahoma, Simsun, ]【设计理念】:
持之以恒的学习是设计的来源
责任感是设计的原创,而灵感是设计的升华。
本帖评分记录
共
条评分
爆料有奖!关注昆山论坛抖音号,抖音搜索“昆山论坛”,或搜索抖音号:ksbbs
引用
举报
离线
寅盛装饰设计
UID:632972
注册时间
2014-04-24
最后登录
2023-06-29
发帖
6918
搜Ta的帖子
精华
0
昆币
6420
访问TA的空间
加好友
用道具
级别:
昆山高级市民
发帖
6918
昆币
6420 枚
加关注
发消息
只看该作者
504楼
发表于: 2019-09-03
,
来自:江苏省
0==
姓名
:
石春游
毕业学校
:
江苏省连云港市淮海工学院
工作年限
:
5年
设计理念
:
用心观察生活
,感悟人生真谛,让设计与生活互动
设计作品
:
九方城、
21世纪绿地新城、公元壹号、中南世纪城、中航城等
本帖评分记录
共
条评分
爆料有奖!关注昆山论坛抖音号,抖音搜索“昆山论坛”,或搜索抖音号:ksbbs
引用
举报
离线
寅盛装饰设计
UID:632972
注册时间
2014-04-24
最后登录
2023-06-29
发帖
6918
搜Ta的帖子
精华
0
昆币
6420
访问TA的空间
加好友
用道具
级别:
昆山高级市民
发帖
6918
昆币
6420 枚
加关注
发消息
只看该作者
505楼
发表于: 2019-09-04
,
来自:江苏省
0==
本帖评分记录
共
条评分
爆料有奖!关注昆山论坛抖音号,抖音搜索“昆山论坛”,或搜索抖音号:ksbbs
引用
举报
离线
寅盛装饰设计
UID:632972
注册时间
2014-04-24
最后登录
2023-06-29
发帖
6918
搜Ta的帖子
精华
0
昆币
6420
访问TA的空间
加好友
用道具
级别:
昆山高级市民
发帖
6918
昆币
6420 枚
加关注
发消息
只看该作者
506楼
发表于: 2019-09-05
,
来自:江苏省
0==
本帖评分记录
共
条评分
爆料有奖!关注昆山论坛抖音号,抖音搜索“昆山论坛”,或搜索抖音号:ksbbs
引用
举报
离线
寅盛装饰设计
UID:632972
注册时间
2014-04-24
最后登录
2023-06-29
发帖
6918
搜Ta的帖子
精华
0
昆币
6420
访问TA的空间
加好友
用道具
级别:
昆山高级市民
发帖
6918
昆币
6420 枚
加关注
发消息
只看该作者
507楼
发表于: 2019-09-06
,
来自:江苏省
0==
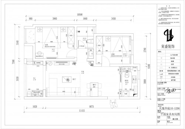
项目|Project:宇业.天逸华庭
面积|Square Meters:85m2
风格|Style:北欧极简
设计师|Designer:康田
北欧风格是简约,
崇尚自然,尊重传统,配色纯净
,
犹如从童话里走出,
家具细节无不体现设计师的工匠精神,
打造出完美用户体验
,
又包含了设计师的小心思
,
透露出暖意的人性化。
餐厅运用的是卡座形式,合理运用空间,在整体色调上和客厅互相辉映。所使用的元素要环保、简洁、极尽原本的色彩和构造
北欧风格通常线条简单,富含设计但是并不会夸张,以少即是多的空间概念,没有多余的装饰,让生活在其中的人非常自然舒适。
本帖评分记录
共
条评分
爆料有奖!关注昆山论坛抖音号,抖音搜索“昆山论坛”,或搜索抖音号:ksbbs
引用
举报
离线
寅盛装饰设计
UID:632972
注册时间
2014-04-24
最后登录
2023-06-29
发帖
6918
搜Ta的帖子
精华
0
昆币
6420
访问TA的空间
加好友
用道具
级别:
昆山高级市民
发帖
6918
昆币
6420 枚
加关注
发消息
只看该作者
508楼
发表于: 2019-09-07
,
来自:江苏省
0==
本帖评分记录
共
条评分
爆料有奖!关注昆山论坛抖音号,抖音搜索“昆山论坛”,或搜索抖音号:ksbbs
引用
举报
离线
寅盛装饰设计
UID:632972
注册时间
2014-04-24
最后登录
2023-06-29
发帖
6918
搜Ta的帖子
精华
0
昆币
6420
访问TA的空间
加好友
用道具
级别:
昆山高级市民
发帖
6918
昆币
6420 枚
加关注
发消息
只看该作者
509楼
发表于: 2019-09-09
,
来自:江苏省
0==
本帖评分记录
共
条评分
爆料有奖!关注昆山论坛抖音号,抖音搜索“昆山论坛”,或搜索抖音号:ksbbs
引用
举报
发帖
回复
返回列表
上一页
1...
49
50
51
52
53
...101
下一页
到第
页
确认
https://bbs.kshot.com
访问内容超出本站范围,不能确定是否安全
继续访问
取消访问
快速回复
限76 字节
批量上传需要先选择文件,再选择上传
您目前还是游客,请
登录
或
注册
进入高级模式
文字颜色
发 布
回复后跳转到最后一页
上一个
下一个
隐藏
快速跳转
社会民生
聚焦昆山
立法直通车
昆山分类信息
昆山市教育局
昆山公交集团
昆山市交通运输局
消费维权
美丽昆山
昆山百事通
文明昆山
全民反诈
城市生活
玉山广场
昆友圈
走遍天下
昆山招聘
KBS车友会
昆山体育
房产装修
房产大家谈
房产租售
酸甜苦辣话装修
生活资讯
家有儿女
美食天地
花草宠物
交友婚恋
闲花文字
数码摄影
认证商家
论坛商家
昆山商情
社区站务
论坛事务
删帖声明
关闭
关闭
选中
1
篇
全选
喜欢就打赏个小红包吧
请选择打赏金额
1元
5元
10元
30元
100元
200元
您是游客,登陆后可以使用赏金钱包
赏金钱包支付
微信扫码支付
赏
我要提现
用微信扫描二维码完成支付
电话:0512-57993030
工作日 8:30-17:00在线
广告热线:18012662666
紧急联系:18888186330