夜间模式
  • 9259348阅读
  • 3457回复

[商家活动]【朗通装饰】囊括昆山各大小区、各种户型、不同风格的经典设计案例 [复制链接]

上一主题 下一主题
离线朗通装饰
级别: 家装商家

发帖
17096
昆币
14417 枚
2570楼 发表于: 2020-12-12 , 来自:江苏省0==
回 牧之 的帖子
牧之:大气[表情] (2020-12-11 09:56)

小编也这样觉得
爆料有奖!关注昆山论坛抖音号,抖音搜索“昆山论坛”,或搜索抖音号:ksbbs
 
离线朗通装饰
级别: 家装商家

发帖
17096
昆币
14417 枚
2571楼 发表于: 2020-12-13 , 来自:江苏省0==
欢迎大家关注朗通装饰哦
爆料有奖!关注昆山论坛抖音号,抖音搜索“昆山论坛”,或搜索抖音号:ksbbs
 
离线朗通装饰
级别: 家装商家

发帖
17096
昆币
14417 枚
2572楼 发表于: 2020-12-14 , 来自:江苏省0==
简约叠墅,探寻沉静的艺术!

▃▃▃▃

房屋信息
HOME PROFILE
【所在小区】:万科万悦花园
【装修花费】:35万
【房屋面积】:140平方联排别墅
【装修风格】:现代风格
【设计团队】:朗通空间设计

【施工团队】:朗通施工团队业主信息业主职业:企业老板家庭成员:4人业主要求:业主对生活品质有一定的追求,同时希望自己的新家要简洁,时尚,通透。

设计理念
Design concept

本案设计,业主的日常生活规律又简单。在与他们的几次交谈中发现,他们对生活空间追求从简的同时,也渴望生活过得精致又不失品质,这不正是当下大都市里很多人的状态吗?他们内心保持着对生活简单的向往,同时也希望忙碌了一天之后,能有个地方,可以卸掉盔甲,好好的享受一下生活里的甜。

















爆料有奖!关注昆山论坛抖音号,抖音搜索“昆山论坛”,或搜索抖音号:ksbbs
 
离线1982hani
级别: 昆山新人
发帖
136
昆币
137 枚
2573楼 发表于: 2020-12-15 , 来自:江苏省0==
好看
爆料有奖!关注昆山论坛抖音号,抖音搜索“昆山论坛”,或搜索抖音号:ksbbs
 
离线朗通装饰
级别: 家装商家

发帖
17096
昆币
14417 枚
2574楼 发表于: 2020-12-17 , 来自:江苏省0==
回 1982hani 的帖子
1982hani:好看[表情] (2020-12-15 10:21)

小编也是这样觉得哦
爆料有奖!关注昆山论坛抖音号,抖音搜索“昆山论坛”,或搜索抖音号:ksbbs
 
离线朗通装饰
级别: 家装商家

发帖
17096
昆币
14417 枚
2575楼 发表于: 2020-12-18 , 来自:江苏省0==
美式风格享受清新优雅的诗意栖居
【装修花费】:18万
【房屋面积】:140平方
【装修风格】:美式风格
【设计团队】:朗通空间设计
【施工团队】:朗通施工团队









爆料有奖!关注昆山论坛抖音号,抖音搜索“昆山论坛”,或搜索抖音号:ksbbs
 
离线朗通装饰
级别: 家装商家

发帖
17096
昆币
14417 枚
2576楼 发表于: 2020-12-19 , 来自:江苏省0==
又是一个周末啦
爆料有奖!关注昆山论坛抖音号,抖音搜索“昆山论坛”,或搜索抖音号:ksbbs
 
离线朗通装饰
级别: 家装商家

发帖
17096
昆币
14417 枚
2577楼 发表于: 2020-12-20 , 来自:江苏省0==
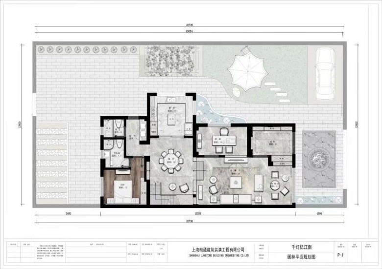
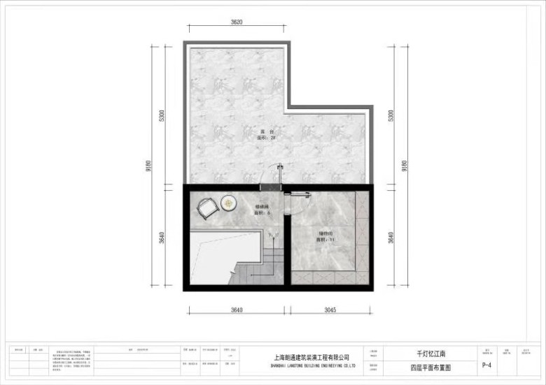
现代新中式,呈现新颖的空间体验


【所在小区】:千灯忆江南
【装修花费】:55万
【房屋面积】:330平方
【装修风格】:新中式风格
【设计团队】:朗通空间设计
【施工团队】:朗通施工团队






































爆料有奖!关注昆山论坛抖音号,抖音搜索“昆山论坛”,或搜索抖音号:ksbbs
 
离线朗通装饰
级别: 家装商家

发帖
17096
昆币
14417 枚
2578楼 发表于: 2020-12-21 , 来自:江苏省0==
今日冬至丨冬已至,朗通愿您幸福如约而至!

冬至到,人生始圆满。

惟愿时光能缓,愿故人不散。

愿您惦念的人能和您道早安,愿您独闯的日子里不觉得孤单;

愿您有人疼也有人爱,每一天都充满温暖。

今日冬至,朗通祝您冬至快乐,阖家欢乐团圆,健康幸福美满!
爆料有奖!关注昆山论坛抖音号,抖音搜索“昆山论坛”,或搜索抖音号:ksbbs
 
帅哥离线京汉
级别: 昆山新人
发帖
214
昆币
511 枚
2579楼 发表于: 2020-12-23 , 来自:江苏省0==
关注下
爆料有奖!关注昆山论坛抖音号,抖音搜索“昆山论坛”,或搜索抖音号:ksbbs
 
快速回复
限76 字节
如果您提交过一次失败了,可以用”恢复数据”来恢复帖子内容
 
上一个 下一个