夜间模式
  • 394097阅读
  • 143回复

开帖记录自己第一次参与家里装修的全过程,世贸东一号 [复制链接]

上一主题 下一主题
离线激情上演
级别: 昆山新人
发帖
202
昆币
413 枚
只看楼主 使用道具 电梯直达
楼主  发表于: 2020-09-17 , 来自:江苏省0==
家装日记
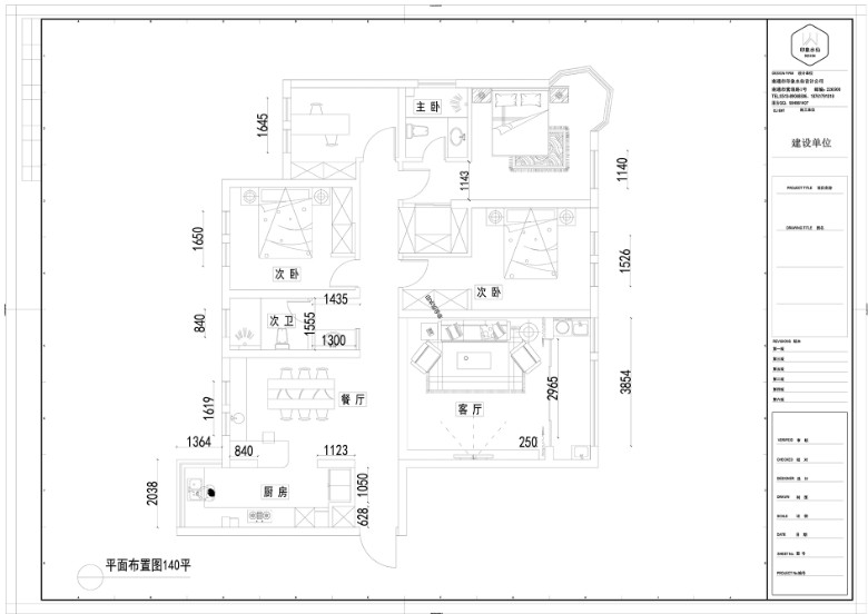
小区: 世贸东一号
套内面积: 140 (平米)
预算: 总 45万内 万
开工日期: 2020-06-25
装修风格: 简约
装修方式: 半包
装修公司: 印象水仙室内设计
先说说我喜欢的风格:现代简约带点北欧风,觉得这种风格清爽、简约大方,不过不想要很普通的现代北欧风,装修之前半年期间看过很多效果图,不过一直感觉不太真实,后来看小红书感觉风格太网红了,实用性等都欠缺一些,一直找不到自己喜欢的风格,后来是认识的一中介,我们平时关系也不错,介绍的印象水仙设计,我才开始关注他们公司的完工案例,一开始中桥花苑的完工实景让我挺心动的,不过很多细节点跟我想的不一样,毕竟不是自己家,后来跟朱朱详细聊了之后,她根据我描述的喜好,找了很多其他家的完工案例给我看,说实话在设计上我看了越来越喜欢。反正这个房子我也算打算好好装修的,设计肯定不能马虎。所以最终确定了他们公司设计。








关于施工部分我后面再跟大家讲,中午了我要吃饭去了,先发几张家里的施工照片吧。







金总来工地很频繁的嘛,我喜欢。







本帖评分记录
艹大神 昆币 +1 -来自昆山论坛APP 2020-12-22
刚毅小梅 昆币 +1 -来自昆山论坛APP 2020-12-01
黑白嘟世界 昆币 +1 -来自昆山论坛APP 2020-11-30
隐形的种子 昆币 +1 -来自昆山论坛APP 2020-11-02
荣盛门窗 昆币 +1 -来自昆山论坛APP 2020-09-24
wujun101 昆币 +1 -来自昆山论坛APP 2020-09-18
阿炳来了 昆币 +1 -来自昆山论坛APP 2020-09-17
昆山伟宏门窗 昆币 +1 -来自昆山论坛APP 2020-09-17
倾城风雪 昆币 +1 -来自昆山论坛APP 2020-09-17
随性 昆币 +1 -来自昆山论坛APP 2020-09-17
12
14条评分昆币+14
爆料有奖!关注昆山论坛抖音号,抖音搜索“昆山论坛”,或搜索抖音号:ksbbs
 
美女离线昆山和美门窗
级别: 禁止发言
发帖
7597
昆币
22038 枚
沙发  发表于: 2020-09-17 , 来自:江苏省0==
用户被禁言,该主题自动屏蔽!
爆料有奖!关注昆山论坛抖音号,抖音搜索“昆山论坛”,或搜索抖音号:ksbbs
 
离线绯雨丸
级别: 昆山新人
发帖
319
昆币
513 枚
板凳  发表于: 2020-09-17 , 来自:江苏省0==
户型很不错
爆料有奖!关注昆山论坛抖音号,抖音搜索“昆山论坛”,或搜索抖音号:ksbbs
 
离线学无止尽
发帖
5409
昆币
6406 枚
地板  发表于: 2020-09-17 , 来自:江苏省0==
经典南三房,卫生间瓷砖是小块的还是大块上的花纹?看了有些密集恐惧。阳台下水管挡着边门什么鬼?
爆料有奖!关注昆山论坛抖音号,抖音搜索“昆山论坛”,或搜索抖音号:ksbbs
 
离线学无止尽
发帖
5409
昆币
6406 枚
4楼 发表于: 2020-09-17 , 来自:江苏省0==
内阳台就是没阳台,不说3面透光最起码2面透光吧!其实就是在房间里隔一堵墙充阳台。
爆料有奖!关注昆山论坛抖音号,抖音搜索“昆山论坛”,或搜索抖音号:ksbbs
 
离线oo0
发帖
2359
昆币
4225 枚
5楼 发表于: 2020-09-17 , 来自:江苏省0==
学无止尽:经典南三房,卫生间瓷砖是小块的还是大块上的花纹?看了有些密集恐惧。阳台下水管挡着边门什么鬼? (2020-09-17 14:03) 

可能楼主把原来的空调机位占了...
爆料有奖!关注昆山论坛抖音号,抖音搜索“昆山论坛”,或搜索抖音号:ksbbs
 
帅哥离线fezhurenge
发帖
17194
昆币
23556 枚
6楼 发表于: 2020-09-17 , 来自:未知0==
瓷砖选的不咋地,又没波导线!
本帖评分记录
柠檬baby 昆币 +1 -来自昆山论坛APP 2020-09-17
1条评分昆币+1
爆料有奖!关注昆山论坛抖音号,抖音搜索“昆山论坛”,或搜索抖音号:ksbbs
 
美女离线春暖花开99
发帖
14069
昆币
7445 枚
7楼 发表于: 2020-09-17 , 来自:江苏省0==
这墙上瓷砖确实不好看。
本帖评分记录
草莓宝贝 昆币 +1 -来自昆山论坛APP 2021-07-31
柠檬baby 昆币 +1 -来自昆山论坛APP 2020-09-17
2条评分昆币+2
爆料有奖!关注昆山论坛抖音号,抖音搜索“昆山论坛”,或搜索抖音号:ksbbs
 
美女离线装修版客服
发帖
10174
昆币
22137 枚
8楼 发表于: 2020-09-17 , 来自:江苏省0==
恭喜楼主开工,可以报名参加本次的装修日记大赛哦,7999元现金奖等你来拿
爆料有奖!关注昆山论坛抖音号,抖音搜索“昆山论坛”,或搜索抖音号:ksbbs
 
帅哥离线picaiyunman
发帖
1175
昆币
1006 枚
9楼 发表于: 2020-09-17 , 来自:江苏省0==
多少钱哈哈哈哈哈哈哈
爆料有奖!关注昆山论坛抖音号,抖音搜索“昆山论坛”,或搜索抖音号:ksbbs
 
快速回复
限76 字节
如果您提交过一次失败了,可以用”恢复数据”来恢复帖子内容
 
上一个 下一个